Как из двухкомнатной квартиры сделать трехкомнатную. Сделать из двушки трешку
- Как из двухкомнатной квартиры сделать трехкомнатную. Сделать из двушки трешку
- Двухкомнатная или трехкомнатная квартира. Купить двух- или трехкомнатную квартиру?
- Перепланировка 2-х комнатной квартиры в панельном доме. Дизайн двухкомнатной квартиры: оптимизация пространства с помощью зонирования и перепланировки
- Как из двушки 60 квадратов сделать трешку. Перенос кухонной зоны
- Перепланировка двухкомнатной хрущевки. Перепланировка 2-комнатной квартиры в хрущевке
- Из двушки распашонки в трешку. Перепланировка недели: как из двушки сделать трёшку
- Видео как из "двушки" сделать "трешку"?
Как из двухкомнатной квартиры сделать трехкомнатную. Сделать из двушки трешку
Имея двухкомнатную квартиру часто хочется сделать из нее трехкомнатную. В предложенном ниже варианте дальняя длиннаяи узкая комната с встроенным шкафом разделена на две. Причем перегородка сделана нелинейной, что дало возможность организовать два шкафа для хранения одежды.

Сделать из 2-комнатной квартиры 3-комнатную
Также переделки затронули зону санузла. Он увеличен за счет коридора. Площадь стала практически в два раза больше, что позволило установить стиральную машину. Так как вход в кухню из коридора оказался перекрыт, его сделали из гостиной.
Другой тип исходной планировки и другой подход. Строго говоря, комнат осталось две, но появилось две зоны — гостиная и столовая. В результате комнаты оказались обособленными и обе могу использоваться как спальни — одна для взрослых, вторая — для детей. При этом у семьи будет просторное помещение, где могут собираться все.

Из двухкомнатной сделать трехкомнатную
Плюс этого плана переделки двухкомнатной квартиры еще и в том, что в обоих комнатах есть возможность сделать стенные шкафы.
Еще один вариант планировки с далеко разнесенными комнатами. Задача та же: иметь три выделенные комнаты. Если не связываться с глобальным переносом кухни и ванной, то есть два возможных варианта.

Не самая удобная квартира для переделки
В первом случае убирают перегородку, отделяющую коридор и образовавшееся пространство делят перегородками (синий цвет) или полупрозрачными перегородками (зеленый). В дальней комнате выделяется шкаф. Второй способ более очевидный — делят большую комнату на две маленьких, разделяя выход на балкон.
Двухкомнатная или трехкомнатная квартира. Купить двух- или трехкомнатную квартиру?

Существует несколько важных моментов, на которые следует ориентироваться при выборе.
Кто будет жить в квартире? Для супружеских пар, семей с одним ребенком обычно хватает 2 комнат. Для семей с двумя детьми (особенно если они разного пола) лучше купить трешку. Каковы индивидуальные потребности жильцов? Например, купить трехкомнатную квартиру в Адмиралтейском районе Санкт-Петербурга можно с тем расчетом, что одно помещение будет оборудовано под рабочий кабинет, детскую, мастерскую и т.п.
Какая стоимость приобретаемой жилплощади и ваши финансовые возможности? В разных районах Санкт-Петербурга стоимость аналогичных по площади и планировки квартир может существенно отличаться. Порой двушка в центральной части обойдется дороже трешки на периферии.
Какова планировка, общая площадь покупаемой недвижимости? Иногда трешка имеет меньшую площадь по сравнению с двушкой.
Важен ли вам размер комнат или большее значение имеет их количество? Планировка также играет значение. Будут ли это проходные комнаты или же в каждую будет отдельный вход из коридора?
Чем хороша трехкомнатная квартира?
Основное преимущество – наличие достаточного количества помещения для размещения всех членов семьи. Здесь больше пространства для приема гостей и родственников. Здесь можно воплотить различные дизайнерские проекты. Имеется простор для воплощения различных творческих задумок и экспериментов.
Дополнительным плюсом является то, что стоимость 1 кв. м здесь будет дешевле, чем в двухкомнатной квартире в том же районе и том же типе постройки.
Недостатки трехкомнатных квартир
За счет того, что жилье, как правило, имеет большую площадь, размер коммунальных платежей будет высоким. Кроме того, существенных вложений потребует и обслуживание такого жилья, особенно в случае проведения ремонта. Для уборки такого пространства также необходимо будет потратить больше времени.
Еще одной сложностью может оказаться последующая продажа трехкомнатной квартиры или передача ее в аренду.
Плюсы двухкомнатных квартир
Такое жилье считается универсальным. Коммунальные платежи за него будут ниже, чем в случае 3-х комнатной квартиры. В настоящее время имеется большой выбор планировок, особенно в новостройках. Отличный вариант «кухня-студия» + спальня. При желании можно зонировать пространство. Продать такую квартиру будет проще, чем трешку.
Минусы двухкомнатных квартир
Нехватка жизненного пространства и конфликт интересов жильцов. Особенно остро это ощущается при наличии разных жизненных ритмов и графиков. Так же дискомфорт может ощущаться, если в доме проживает более двух поколений. Кроме того детям разного пола нужны отдельные комнаты.
Квартиру любой площади и с любым количеством комнат можно приобрести как на вторичном, так и на первичном рынке. Преимуществом последнего варианта является то, жилье будет стоить дешевле (особенно если приобретается на «стадии котлована»). Вся недвижимость будет юридически чистой. Кроме того можно приобрести квартиры как с отделкой, так и без нее. Это позволяет сделать интерьер именно таким, как нужно вам, не затрачивая время на ликвидацию ремонта от предыдущих жильцов. Для новостроек доступна система рассрочки, ипотека.
Если приобретается квартира в новостройке уже в благоустроенном районе, например, на Московском проспекте (ЖК «Времена года»), то инфраструктура здесь уже будет развитой, а транспортная сеть хорошо развитой.
Перепланировка 2-х комнатной квартиры в панельном доме. Дизайн двухкомнатной квартиры: оптимизация пространства с помощью зонирования и перепланировки
Двухкомнатные предложения всегда будут востребованы, поскольку в относительно недорогой квартире может комфортно проживать один владелец и небольшая семья. Дизайн-проект двухкомнатной квартиры лучше заказать у специалиста. Но, ознакомившись с удачными примерами, можно попытаться самостоятельно воплотить мечту об идеальном жилье, хотя это представление у каждого свое. Практика показывает, что на стыке нескольких чужих идей рождается эксклюзив, особенно если воспользоваться советами именитых дизайнеров.

В относительно недорогой квартире может комфортно проживать один владелец и небольшая семья

Двухкомнатные квартиры очень востребованы на рынке

Дизайн такой квартиры лучше заказывать у специалиста
Как спланировать пространство двухкомнатной квартиры?
Размышляя о выборе дизайна интерьера двухкомнатной квартиры, важно учитывать все «плюсы» и «минусы» небольшой жилплощади. Тут особо «не разгуляешься», приходится в каждом помещении совмещать функциональность разных комнат.
С другой стороны, компактное жилье – меньше затрат на ремонт и отопление. На основе этой экономии можно позволить себе покупку более дорогих отделочных материалов и встроенную мебель по индивидуальному заказу. Это позволит оптимизировать каждый сантиметр полезной площади.
При перепланировке и реорганизации пространства у дизайн-проекта двухкомнатной квартиры должны быть обозначены все основополагающие функциональные зоны (с вариантами):

При создании дизайна стоит учитывать все недостатки малой площади

Компактное жилье – меньше затрат на ремонт и отопление
ТАБЛИЦА
1. | Прихожая | Отдельное помещение, часть коридора с раздевалкой и зеркалами (2-3 метра у входной двери), объединенное пространство без перегородки с гостиной |
2. | Гигиенические комнаты | Объединенный санузел, душевая с поддоном без ванны + отдельный туалет, раздел условной перегородкой санузла, блок стирки в туалете, ванная с раковиной |
3. | Зона сна и отдыха | Полноценная спальня, отделена часть гостиной + детская, 1 спальное место в кухне на раскладном диване, большой диван с раскладкой в гостиной |
4. | Рабочее место | Многофункциональный компьютерный (рабочий) стол, легкие стеллажи с откидной столешницей по ноутбук, угол с полками за обеденным столом |
5. | Пищевой блок | Полноценная кухня, демонтаж перегородки между кухней и гостиной с разделом барной стойкой или тыльной стороной дивана с высокой спинкой, небольшой блок кухонной техники в столовой зоне |
6. | Столовая зона | Часть кухни с компактным кухонным уголком, полноценный обеденный гарнитур в гостиной (стол + стулья), объединенная кухня с утепленной лоджией |
7. |
Как из двушки 60 квадратов сделать трешку. Перенос кухонной зоны
Трёхкомнатная квартира может получиться из двухкомнатной в том случае, если сделать перенос кухонной зоны в холл или коридор. Можно также снести кладовку или гардеробную комнату, за счёт этого произойдёт увеличение площади такой совмещенной зоны.

План переноса кухни в комнату 2Б в угол, где есть электрический стояк
Совет. Такой перенос лучше всего делать в том случае, если коридор или холл находится на расстоянии не более чем 4-5 м от основного газового стояка. В противном случае, на эти действия могут не дать разрешение.
Вместо кухни, таким образом, появится ещё одна комната, которая будет иметь свое окно. Также стоит предварительно оценить площадь такого будущего помещения. Если она мала, и не может вместить в себя кухню и гостиную, то будет рационально перенести межкомнатную перегородку бывшей гостиной на 1,5-2 м вглубь квартиры.
Очень часто для перепланировки двухкомнатной квартиры в трёхкомнатную применяется именно этот вариант. Только в таком случае лучше остановить свой выбор не на газовой, а на электрической варочной поверхности. Она не вредит здоровью человека.
Электрическая плита
Необходимо продумать систему вентиляции в новой кухонной зоне. Её можно организовать установкой вытяжки над печкой, а можно прорубить дополнительные отверстия, которые будут выходить на шахту с вентиляционными трубами. Ещё можно будет установить в стене, которая соприкасается с санитарной зоной вентилятор небольшого размера. Он будет затягивать воздух из холла и переносить его в ванную комнату. Оттуда воздушные массы свободно будут уходить в вентиляционные каналы.
Совет. Мебель для такой зоны можно будет использовать только небольшого размера, чтобы она не загромождала пространство.
Перепланировка двухкомнатной хрущевки. Перепланировка 2-комнатной квартиры в хрущевке
Двухкомнатные хрущевки, в большинстве своем, имеют множество перегородок, ниш, кладовых, которые «крадут» квадратные метры полезной площади. При этом комнаты не могут похвастаться удобной планировкой и выгодным метражом. Зачастую перепланировать и расширить пространство не так уж просто. Одним из выгодных вариантов изначальной планировки квартиры остается так называемая «распашонка», где комнаты расположены по обе стороны от кухни и не являются проходными. Но и перестроить площадь таким образом, чтобы получить третью комнату, не удастся. Даже разделив одну из комнат перегородкой, мы получим два помещения, одно из которых будет без окон, а во второе нужно будет организовать вход с территории и без того маленькой кухни. Поэтому такие квартиры, чаще всего, оставляют в первозданном виде.
Проект 1
Как мы уже говорили, наличие ниш и кладовых вполне можно использовать для увеличения площади. Например, как показано на фото, владельцы одной из квартир решили вопрос расширения кухни за счет смещения санузла в сторону кладовой. При данной планировке можно запросто объединить кухню с прилежащей комнатой и даже прихожей, в результате чего получится просторный зал. Однако нужно учитывать, что, если в квартире проживает полноценная семья с детьми, такая перепланировка окажется не целесообразной, лишая кого-либо из домочадцев личного пространства.


Проект 2
Один из самых неудобных проектов двухкомнатных квартир, именуемый «книжкой», предполагает наличие двух небольших смежных комнат, одна из которых проходная. В данном случае перепланировать обстановку таким образом, чтобы получить две отдельные комнаты, не получится без потери полезной площади одной из них. Здесь оптимальным вариантом выступает продление коридора за счет уменьшения площади проходной комнаты. В то же время, в комнате остается балкон, который можно утеплить и присоединить к полезной площади.


Проект 3
Квартиры типа «трамвай» также подразумевают наличие смежных комнат, но здесь можно разделить их, сохранив большее количество жилой площади. Один из вариантов предлагает попросту продлить коридор, обустроив в тупике гардеробную или кладовую. В таком случае сооружается дополнительная перегородка с дверью, которая отделит комнату. Второй вариант – продлить коридор только до конца дверного проема, ведущего в правую комнату. В данном случае необходимо будет соорудить две небольшие перегородки – одна будет тупиком коридора, а вторая – отделять комнату справа.


Из двушки распашонки в трешку. Перепланировка недели: как из двушки сделать трёшку
Сегодня мы решили рассмотреть серию И-522А, которая является типичным представителем городской застройки конца 70-х — начала 80-х годов прошлого столетия. Ни один из новых микрорайонов, которые активно строились вокруг крупных городов, не обходится без домов этой серии.
Отличительной чертой серии является узнаваемый вид и возможности перепланировки: внутри квартир не проходят капитальные стены, а это позволяет применить самые смелые планировочные решения. Именно поэтому сегодня мы на примере двухкомнатной квартиры попробуем организовать трёх- и даже четырёхкомнатную.
Квартира общей площадью 53,3 кв. метра состоит из двух жилых комнат, кухни, двух санузлов, прихожей и двух лоджий. В квартире четыре окна, которые выходят на три стороны света. Квартира не газифицирована (редко встречаются четырёхэтажные дома серии И-522а, которые газифицированы), в ней проходят две вентиляционные шахты, которые категорически недопустимо демонтировать.
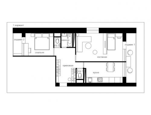
Первый вариант: без перепланировки
В этой квартире можно и без перепланировки организовать второе спальное место. Для этого потребуется большую комнату разделить на две зоны с помощью открытого стеллажа, который разграничит пространство и позволит создать гостиную и спальню. Во второй комнате мы организовали спальню с большой двуспальной кроватью и поместили рабочий стол, столешница которого заменила подоконник, увеличив полезную площадь.
В каждом санузле мы добавили небольшие рукомойники. Пространство большой прихожей позволило организовать в нём места для хранения и шкафы для одежды.
Оборудование кухни, размещённое вдоль стены, позволило найти место и для холодильника, и для посудомоечной машины. Также в кухне нашлось место для обеденного стола на четыре персоны.
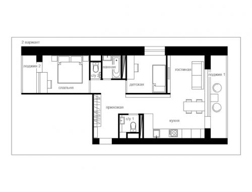
Второй вариант: третья комната
Когда квартира не газифицирована, то можно смело объединять кухню с жилой комнатой. А если нет капитальных внутриквартирных стен, то такое решение напрашивается само собой.
Во втором варианте мы демонтировали перегородки и возвели новые, которые позволили организовать отдельную комнату, обозначенную как "детская". Также важно обратить внимание на то, что по жилищному законодательству жилая комната должна быть с окном, и в нашем случае это правило соблюдено.
Объединённое пространство кухни и гостиной получилось светлым. Вход в лоджию ради удобства использования был перенесён в зону кухни. На лоджии можно организовать зону для отдыха. Для этого можно разместить там пару кресел и столик или повесить гамак — выбирайте сами. Конфигурация новых стен позволила вписать мебель, которая не будет мешать при передвижении.
Санузел, что возле кухни, был увеличен за счёт прихожей, что допустимо. Расширять санузел за счёт кухни или жилой комнаты незаконно, а вот за счёт коридора — расширение допустимо, и эту перепланировку можно легко согласовать.
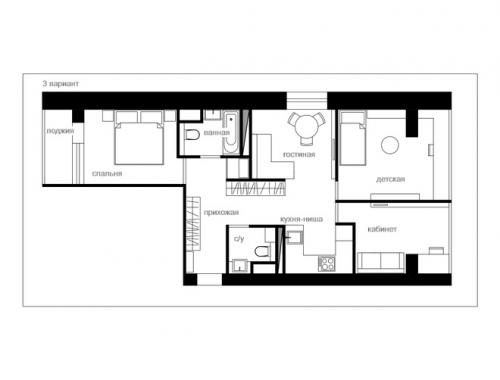
Третий вариант: четырёхкомнатная вместо двушки
Третий вариант — это как раз доказательство того, что мы можем превратить двухкомнатную в четырёхкомнатную, и при этом квартира не превратится в "уплотнённую коммуналку". Делимся секретом волшебства.
Во-первых, нужно знать своды правил и отлично разбираться в строительном регламенте, а также обладать талантом проектировщика. Однако если нет времени на изучение всего вышеперечисленного, то можете смело воспользоваться нашим вариантом, поскольку он абсолютно допустим и не нарушает жилищного законодательства.
Теперь подробнее. Для того чтобы увеличить площадь комнат, мы объединили лоджию с комнатой и бывшей кухней. Комната, организованная на месте кухни, не может быть жилой (поскольку в многоквартирных домах запрещено размещать жилые комнаты под мокрыми зонами). Однако если на экспликации обозначить её как нежилую, например, как кабинет или гардеробную, то такую перепланировку согласуют. В кабинете можно расположить раскладной диван, который выполнит функцию места для сна припозднившихся гостей.
Вместо привычной кухни мы организовали удобную кухню-нишу. Оборудование же не переносили за пределы площади прежней кухни.
Санузел увеличен за счёт прихожей, что допустимо. Также мы организовали небольшую постирочную в бывшем коридоре. В ней можно разместить стиральную машину, а сверху — сушильный шкаф. Теперь проблема размещения оборудования для стирки решена, а подключить стиральную машинку к воде и канализации можно от смежной ванной комнаты.
Любая переделка и перепланировка квартиры должна улучшать качество жизни, и на примере квартиры в серии И-522а мы доказали, что нет предела совершенству и можно изменять квартиру в зависимости от условий: если ваша семья растёт, то данная квартира тоже способна расти.


