Объединение гостиной и кухни. Дизайн кухни-гостиной в маленькой квартире
- Объединение гостиной и кухни. Дизайн кухни-гостиной в маленькой квартире
- Объединение кухни и гостиной перепланировка. Необходимые бумаги
- Объединение кухни и гостиной с газовой плитой. Основные требования к переустройству, перепланировке
- Объединение кухни и гостиной в хрущевке. Как узаконить объединение кухни с гостиной в хрущевке?
- Объединение кухни и гостиной согласование. Способы объединения помещений
- Объединение кухни с газом и гостиной. Перепланировка кухни в хрущевке
- Видео объединяем кухню с гостиной
Объединение гостиной и кухни. Дизайн кухни-гостиной в маленькой квартире
Перепланировка малогабаритной квартиры с последующим объединением кухни и гостиной может совершенно преобразить жилье, сделать его более комфортным и стильным. Но, поскольку общая площадь все равно ограничена, в обстановке необходимо руководствоваться чувством меры и по возможности максимально «облегчать» дизайн.
Цвета
Как известно, неброские светлые тона визуально расширяют пространство, а темные и насыщенные — уменьшают. Это значит, что оптимальным решением для маленькой кухни-гостиной станут молочно-белые, серые, бежевые, нежные пастельные краски. А вот резких цветовых контрастов, пестроты и чрезмерной яркости в деталях желательно избегать.


Текстуры
Углубить перспективу в небольшой комнате помогут гладкие светоотражающие поверхности. Это может быть отполированный до блеска камень светлых оттенков (либо искусственный аналог), глянцевая плитка, лакированные или ламинированные пвх-пленкой фасады кухонного гарнитура, хромированная техника и аксессуары.
Но и здесь важно не перестараться, чтобы оформленная таким образом кухня-гостиная не превратилась в зеркальный лабиринт.


Пропорции
Объем и очертания каждого предмета, особенно крупногабаритной мебели, значительно влияют на интерьер компактной студии. Так, если нужно зрительно поднять выше потолок, стоит акцентировать внимание на вертикальных элементах: высоких узких шкафах, узорных бордюрах и рисунках, декоративных колоннах, металлических трубах, шторах во всю длину. Горизонтального объема помещению придадут фотообои с реалистичной перспективой, удлиненные диваны, столы, широкие открытые полки.

Объединение кухни и гостиной перепланировка. Необходимые бумаги
Оформление перепланировки квартиры с объединением кухни и комнаты сопровождается не только сложным ремонтом, который должен соответствовать всем требованиям законодательства, но подразумевает сбор и предоставление документов в жилищную инспекцию. Основной документацией является проект, который необходимо заказывать в организации, занимающейся подобным родом деятельности.
Перепланировка всегда подразумевает проектную документацию, если ремонт включает в себя изменение конфигурации квартиры. Если планируются несложные работы в виде демонтажа части стены и оборудование проема смещающейся перегородкой, то проектировщику достаточно плана квартиры, чтобы составить все необходимые изменения.
При сложной перепланировке со смещением инженерных сетей, сносом стены, ликвидацией стандартного проема и т.д. рекомендуется вызвать специалиста в квартиру. Проектировщик на месте максимально точно составит план будущего проекта, что исключит несоответствие изменений в будущем.
Порядок оформления перепланировки квартиры регулируется ЖК РФ и другими законодательными актами.
Как получить согласие собственников многоквартирного дома на перепланировку — мы расскажем .
Также для объединения кухни и комнаты потребуется вся документация на квартиру и личные данные собственника:
- техпаспорт на жилплощадь;
- право собственности;
- проект;
- паспорт собственника;
- согласие всех остальных собственников, если их несколько;
- согласие соседей на перепланировку, если процесс затрагивает их интересы;
- согласие жильцов дома, если ремонт затрагивает общедомовую площадь;
- экспертиза стены на принадлежность несущего характера и возможность демонтажа.
Бумаги предоставляются в БТИ для рассмотрения. При необходимости могут потребоваться дополнительные документы, о чем рекомендуется поинтересоваться заранее.


Объединение кухни и гостиной с газовой плитой. Основные требования к переустройству, перепланировке
Существует определенный список того, что во время перепланировки делать можно и нельзя, в целях безопасности собственной и других жильцов.

Без разрешения на перепланировку вы можете столкнуться с серьезными проблемами в дальнейшем
Чего нельзя делать ни в коем случае:
- полностью удалять несущую стену, если не возведены опоры – грозит обрушением;
- значительно увеличивать допустимые нагрузки на капитальные конструкции;
- переносить любые «водные» элементы в комнату, но допустимо перемещать их в пределах кухонного пространства;
- уменьшать, демонтировать вентиляционные короба;
- при наличии газовой плиты, водонагревателя подобной конструкции, кухня должна иметь площадь не менее пяти квадратных метров, размещаться за перегородкой, иметь двери;
- если дом является «историческим памятником», объектом «культурного наследия» перепланировку сделать не разрешат.

Демонтировать легкую перегородку между кухней и гостиной возможно, а вот перенести её в сторону комнаты уже нельзя – размещение кухни над жилыми помещениями соседей снизу запрещено соответствующими нормативными документами
Что делать разрешено:
- разработать подходящий проект;
- выполнить проем в любом месте капитальной стены;
- организовать слияние кухне-гостиного помещения с балконом;
- перенести кухню в другое место квартиры;
- монтировать отдельную электропроводку от щита в подъезде, если общая мощность электросети дома это позволяет;
- демонтировать подоконники, делая вместо них столешницы.

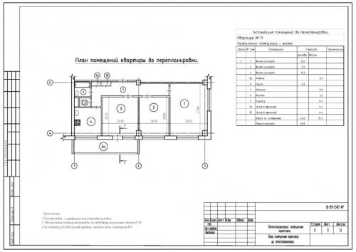
Перепланировка кухни с газовой плитой в кухню-гостиную – план квартиры до переделки

Перепланировка кухни с газовой плитой в кухню-гостиную – план квартиры после переделки
Нелегальная, то есть несогласованная с органами БТИ перепланировка, незаконна, потому уполномоченные органы имеют право обязать привести квартиру в исходное состояние. Также незаконное переоборудование помещения неизбежно вызовет проблемы при попытке продажи жилого помещения.
Объединение кухни и гостиной в хрущевке. Как узаконить объединение кухни с гостиной в хрущевке?
Перепланировка в хрущевке, связанная с объединением кухни и гостиной в единое пространство, имеет свои особенности. Владельцам квартир следует знать, что согласно нормативной документации, это возможно при отсутствии в кухонной зоне:
- действующего газового оборудования, в противном случае нормативные документы требуют установки между помещениями перегородки и глухой двери;
- несущей стены между помещениями.
Кроме того в рамках капитального ремонта необходимо будет решить вопрос с организацией хорошей вентиляции и установкой эффективной вытяжки, чтобы решить задачу по вентилированию помещения большей площади, чем было ранее, а также понизить степень воздействия влаги и пара из кухни на отделочные материалы и мебель в гостиной.

Использование полок на перегородках позволит украсить интерьер дополнительными аксессуарами визуально отделить кухонную зону.
К сожалению, газовые плиты и колонки присутствуют во всех хрущевках. Но, ни для кого не секрет, что, несмотря на запрет, объединение пространства кухни и гостиной весьма популярный способ расширения пространства. Это действительно возможно в 2-х, 3-х или 4-хкомнатных квартирах при формальном отнесении площади бывшей гостиной к кухне. Стоит заметить, что получить разрешение на такие действия в однокомнатной квартире с газовым оборудованием не получится.
Для справки: расширение пространства кухни за счет бывшего зала не грозит владельцам никакими дополнительными платежами впоследствии и даже не усложнит процедуры продажи квартиры, если возникнет такая необходимость. Но для совершения с такой недвижимостью любых сделок важно, чтобы перепланировка была узаконена заранее.
Помимо традиционной перепланировки с устранением стены-перегородки есть еще один вариант объединения пространства, упрощающий процесс получения соответствующего разрешения, который может быть реализован и в однокомнатных квартирах.

Арка между кухней и гостиной с раздвижными дверьми
Дизайн совмещенной кухни и гостиной в хрущевке нередко предполагает создание между помещениями широкой арки с раздвижными дверями. По факту они могут закрываться лишь в случае необходимости, но их наличие позволит владельцам избежать лишних нареканий со стороны регистрирующих и контролирующих организаций. Подробнее с этим способом можете познакомиться в нашей статье «Арка между кухней и гостиной» .
Объединение кухни и гостиной согласование. Способы объединения помещений
Объединение кухни с гостиной может быть выполнено различными способами, которые зависят от необходимости сноса стен и перегородок в многоквартирных домах. Демонтаж может быть частичным или полным, в последнем случае потребуется обязательное согласование ремонтных работ с надзорными органами. Жилищная инспекция, руководствуясь нормами СНИПов и прочих регламентов, выдает разрешение на проведение перепланировки и после этого можно переходить к делу.
В современных квартирах-студиях, где изначально отсутствуют перегородки, объединение кухни и гостиной своими руками не требует официального согласования с контролирующими инстанциями.
При частичном или полном сносе стен существуют требования техники безопасности, игнорировать которые нельзя:
- несущие стены трогать нельзя, они выполняют функцию каркаса здания;
- объединять помещения можно лишь при наличии электрической плиты, если установлена газовая модель, о перепланировке лучше забыть;
- Переносить на другое место рабочего участка хозяйки (варочная панель – мойка – посудомоечная техника) нельзя, эти объекты должны оставаться на месте первоначального размещения кухонного пространства по плану на недвижимость.
Важно: категорический запрет второго пункта можно обойти, если установить между гостиной и кухней распашные двери. Но тогда резонно встает вопрос: зачем было объединять?
Зато в новом просторном помещении можно свободно расставить шкафы и мебель по своему усмотрению, не оглядываясь на нормативные акты и запреты.
Варианты совмещения комнаты с кухней
Чтобы понять, как объединить кухню и гостиную, важно изучить все имеющиеся способы. Вариантов решения задачи – 2. В первом случае стена демонтируется полностью и в итоге получается просторное помещение с новыми квадратными метрами. Ненужную дверь при этом можно капитально замуровать (это проход из коридора), сверху покрыв отделочным материалом.

Кухня, совмещённая с гостиной-столовой
Образовавшийся новый участок – отличное место для холодильника или буфета. Но в таком случае нужно быть готовым к тому, что попасть в кухню можно будет лишь из жилых комнат.
Еще один нюанс: гостиная, объединенная с кухней, нуждается в зонировании – визуальном отделении зоны отдыха от рабочего пространства, где готовится пища. Ведь иногда одним домочадцам хочется покоя и тишины, а около газовой плиты постоянно все бурлит, жарится и парится. Разграничение этих двух зон должно быть почти неприметным, но ощутимым.
Вторым вариантом совмещения комнаты и кухни является снос определенного участка стены. С помощью такого очень широкого проема необходимость в делении объединенной кухни отпадает сама собой.

Кухня-гостиная разделённая перегородкой
Та часть стены, которая осталась, может быть использована в декоративных целях. Многие мастера уделяют этому участку повышенное внимание, стараясь реализовать какие-то смелые и оригинальные идеи. При умелом подходе и наличии специальных навыков в области декора оставшийся кусок стены может стать ключевым акцентом всего интерьера объединенного помещения.
Объединение кухни с газом и гостиной. Перепланировка кухни в хрущевке
Существует несколько интересных способов перепланировки кухни в хрущёвке. Рассмотрим их прямо сейчас.
-  Снос стены между кухней в хрущёвке и гостиной 
 Так вы сможете в разы увеличить пространство своей кухни. В этом случае помещение делится на зоны: кухонная, которая, собственно, и будет использоваться по прямому назначению – в ней будет готовиться еда, и столовая, иными словами - «зона для приема пищи». Разграничить пространство между кухней и гостиной можно разными способами:– установить на них разное напольное покрытие, обозначив тем самым две зоны; Разграничить пространство между кухней и гостиной можно разными способами:– установить на них разное напольное покрытие, обозначив тем самым две зоны;
 – установить на этих зонах барную стойку, трансформирующуюся при необходимости в стол;
 – установить ширму-перегородку;
 – полностью снести стену, разделяющую кухню и гостиную. Минусы: Минусы:
 – в одной комнате вы будете и есть, и спать, да еще и газовая плита с холодильником в придачу;
 – запахи приготовления пищи по помещению будут разноситься молниеносно, потому вам придется потратиться на приобретение и установку хорошей вытяжки;
 – но даже вытяжка не подстрахует вас от насаждения бытовой грязи и жира, а также запах гари и копоти.
 Потому будьте готовы к частым косметическим ремонтам и регулярной стирке штор.
-  Объединение кухни и балкона (или перепланировка балкона) 
 Очень симпатичный и наименее проблематичный хрущевский вариант перепланировки. Вам понадобится для этого хорошенько утеплить балкон, вынести на него стол и стулья, а зону приготовления пищи оставить на кухне. Минус: Минус:
 Большие денежные траты на капитальное утепление лоджии или балкона.
-  Сдвиг кухонной стены 
 Если вам не принципиально важен размер соседствующей с кухней комнаты, то можно увеличить кухонное пространство за счет уменьшения площади прилежащей комнаты путем его переноса. Способ, когда перепланировка кухни выполняется в хрущевке таким способом, усложняется тем, что необходимо будет получить на перепланировку разрешение в соответствующих органах. Вам попросту могут отказать, если таковое посчитают нужным. Недостатки этого способа: Недостатки этого способа:
 – как уже писалось выше – стену просто так не снесешь, необходимо специальное на то разрешение;
 – процесс этот довольно долгий и технически непростой, влекущий за собой большое количество строительного мусора, грязи и пыли;
 – самый затратный с материальной точки зрения способ.
-  Визуальное увеличение пространства посредством эргономики и хитрых дизайнерских приёмов 
 Достаточно провести ревизию на своей кухне. Наверняка за последние годы у вас скопилось много ненужных уже вещей, но дорогих вашему сердцу. Сейчас как раз нашелся хороший способ избавиться от всякого старья и хлама – глядишь, и перепланировка кухни не понадобится!
 Разграничить пространство между кухней и гостиной можно разными способами:– установить на них разное напольное покрытие, обозначив тем самым две зоны;
Разграничить пространство между кухней и гостиной можно разными способами:– установить на них разное напольное покрытие, обозначив тем самым две зоны; Минусы:
Минусы: Минус:
Минус: Недостатки этого способа:
Недостатки этого способа: