Фото красивой планировки однокомнатной квартиры. Планировка однокомнатной квартиры: тонкости создания идеального дизайн-проекта, фото, схемы, идеи
- Фото красивой планировки однокомнатной квартиры. Планировка однокомнатной квартиры: тонкости создания идеального дизайн-проекта, фото, схемы, идеи
- Планировка однокомнатной квартиры 40 кв м. Особенности
- Планировка однокомнатной квартиры 36 кв-м. Дизайн однокомнатной квартиры площадью 36 кв.м
- Дизайн однокомнатной квартиры с отдельной кухней. Проекты однокомнатных квартир с отдельной кухней - 3 проекта с примерами планировок
- План однокомнатной квартиры. Лучшие варианты планов однокомнатной квартиры: уют и комфорт на 40 метрах
- Планировка однокомнатной квартиры 30 кв м. Светлая квартира для студентки
- Современный дизайн однокомнатной квартиры. Планировки однокомнатной квартиры
- Планировка однокомнатной квартиры с размерами. Какую планировку выбрать
Фото красивой планировки однокомнатной квартиры. Планировка однокомнатной квартиры: тонкости создания идеального дизайн-проекта, фото, схемы, идеи
Самым востребованным объектом на рынке жилой недвижимости однокомнатные квартиры являются в силу целого ряда причин. Подобный вариант подходит как молодежи, так и пожилым людям для постоянного проживания, а также служит выгодным способом вложения денежных средств в силу своей высокой ликвидности.

Несмотря на ограниченную площадь, однокомнатная квартира при грамотном подходе может стать весьма комфортным и функциональным местом для жизни. Варианты планировки однокомнатной квартиры от опытных дизайнеров предусматривают вкусы владельцев, количество проживающих, а также основные типы подобной жилой площади.

Основные принципы планировки «однушки»
На этапе планирования потребуется учесть размеры планировки однокомнатной квартиры, а также количество лиц, постоянно проживающих на данной площади.

В случае, когда в квартире будет проживать больше двух человек, следует ориентироваться на стили, исключающие большое количество декоративных деталей. В условиях ограниченной площади загромождение пространства неуместно.

Серьезного подхода потребует зонирование квартиры, а также подбор мебели. Предметы меблировки должны быть функциональны, иметь возможность трансформации. Это позволит создать дополнительное свободное пространство.

Особое внимание рекомендуется уделить организации качественного освещения в квартире.

В качестве основных недостатков типовых однокомнатных квартир следует перечислить:
- маленькую жилую площадь (нередко она меньше 32 кв. м.);
- небольшой размер кухни и санузла;
- низкие потолки в помещении;
- узкий коридор;
- отсутствие антресолей.

Кроме того, подобные объекты жилой недвижимости нередко не имеют лоджии или балкона.

К преимуществам «однушек» относят их размещение в середине дома, что делает квартиру теплой, исключает чрезмерную сырость и холод от торцевых стен.

Типовая однокомнатная квартира
Среди самых распространенных вариантов встречается:
- прямоугольная;
- квадратная;
- угловая планировка.

Прямоугольная форма наиболее удобна для зонирования помещения. Место для приема гостей или семейных посиделок, как и рабочий уголок разумно обустроить у окна, выделив для сна другие функциональные части комнаты. Для деления помещения на зоны можно применить стеллажи, барные стойки или стеклянные перегородки.

К минусам прямоугольных квартир относят отсутствие балконов, а также низкую звукоизоляцию.
Планировка однокомнатной квартиры в хрущевке чаще всего отличается квадратной формой. Обычно размеры такой жилой площади не более 30 кв. м.

Рассматривая варианты рационального использования пространства, рекомендуется использовать встроенную мебель, а также использовать проект квартиры-студии. Грамотный подход к зонированию позволит создать комфортное жилое помещение даже в условиях ограниченной площади.
К преимуществам угловых «однушек» относят хорошую освещенность за счет торцевых окон. С недостатками угловых квартир несложно справиться при помощи современных отделочных материалов, позаботившись о хорошем утеплении и звукоизоляции.
Для такой планировки идеальным способом организации пространства послужит объединение кухни с комнатой. А отдельное помещение разумно использовать для спальни. При этом встроенную кухню обычно вписывают в одну прямую, что позволяет исправить геометрию пространства.

Оформление
Для маленьких помещений выбор цветовой гаммы и стиля оформления имеет огромное значение. Правильный подход дает возможность визуально подкорректировать геометрию пространства, а также его площадь.

В перечень базовых приемов, позволяющих зрительно увеличить помещение, входят:
- светлая цветовая палитра;
- качественное многоуровневое освещение;
- применение современной мебели с возможностью трансформации;

Выбор дизайн-проекта зависит от вкуса владельца помещения. Разнообразные фото планировки однокомнатной квартиры помогут определиться со стилевым направлением.
Планировка однокомнатной квартиры 40 кв м. Особенности
Начнем с того, что практически все однокомнатные квартиры, даже те, что располагаются в домах постройки середины прошлого века, оснащены балконами или вместительными лоджиями. Объединение балкона с комнатой или кухней давно уже стало обычной практикой при внесении изменений в первоначальную планировку квартиры. Тем более наличие дополнительной площади в виде нескольких (иногда до десяти) квадратных метров – весьма важный аргумент при выборе однокомнатной квартиры.
Балкон в XXI веке не просто место хранения сезонных вещей и старого хлама, но, в первую очередь, дополнительное пространство для оригинальных дизайнерских и даже архитектурных решений.
Другая особенность однокомнатных квартир общей площадью сорок метров – достаточно большая комната. Ведь она единственная в квартирах такого типа, а это значит, что спальня, столовая, игровая комната и рабочий кабинет должны каким-то образом уместиться в одной комнате и это реально. Нужно понимать, что в малогабаритных квартирах ключевую роль играет не площадь, а объем. В единственной комнате вполне реально разместить все необходимое для комфортного проживания семьи из трех и даже четырех человек, не говоря уже о паре – нужно только внимательно относиться к мелочам и научиться выигрывать пространство там, где это кажется маловероятным.
Проект удобной и вместительной однокомнатной квартиры – непростая задача, к которой следует подходить основательно, используя советы профессионалов. Ниже будут перечислены самые важные аспекты, которые нужно учитывать при реализации проекта оформления однокомнатной квартиры.


Несмотря на то что однокомнатные квартиры малой площади достаточно однотипны, каждую из них можно сделать своего рода уникальным проектом для комфортного проживания.
Планировка однокомнатной квартиры 36 кв-м. Дизайн однокомнатной квартиры площадью 36 кв.м

Если площадь квартиры не очень большая, то это вовсе не значит, что не нужно продумывать ее дизайн. Как раз наоборот, владельцы скромных однокомнатных квартир как никто другой знают, насколько важно грамотно составить проект помещения. Ведь от него напрямую зависит то, насколько уютно будет в доме. А также и то, как будет использован каждый сантиметр драгоценного пространства. Сегодня мы подробно поговорим об особенностях дизайна современной квартиры площадью 36 кв. м.


Какой стиль подойдет для малогабаритного пространства?
Разумеется, вас никто не ограничивает в выборе направления дизайна. Вы можете создать дома маленький дворец в стиле барокко. Или же уютный провансальский интерьер. Однако независимо от того, какой вариант вы выберете, важно помнить, что лучше иметь отсылку к минимализму. Ведь если и без того небольшое пространство будет заставлено громоздкой мебелью или многочисленными декоративными предметами, едва ли кто-то сможет там долго комфортно находиться.
Какая должна быть мебель?
Идеальным решением для квартиры площадью 36 квадратных метров станет мебель-трансформер. Это может быть все, что угодно. Например, шкаф, который раскладывается и превращается в кровать. Или же диван, который заменит кровать. Также очень рекомендуем вам обратить внимание на столы-книжки или откидывающиеся столешницы. Они станут отличным решением как для столовой, так и для кабинета, если таковой вам необходим.
На кухне не должно быть габаритных гарнитуров, к которым все так привыкли. Кстати, многие вместо обеденного стола и рабочей поверхности используют барную стойку, если хотят сэкономить пространство.


Как разделить пространство на зоны?
Главное, что нужно помнить при оформлении малогабаритной квартиры – ее дизайн должен быть легким и воздушным. Поэтому для разделения пространства на несколько функциональных зон следует использовать тонкие матовые полупрозрачные перегородки. Чаще всего они выполняются из ударопрочных материалов. Таким образом вы получите легкую, но при этом довольно надежную стену. Также отличной идеей для эффективного зонирования квартиры может стать игра света или подходящая цветовая гамма.
К примеру, если пол в и стены в кухонной зоне будут выполнены из материала другого цвета и фактуры, нежели основная часть квартиры. Или даже потолок в этих зонах будет отличаться по своему оформлению.


Еще можно разграничить отдельные области при помощи яркости освещения или различных осветительных приборов. Кстати, отличным решением для функционального разделения пространства станет использование стеллажа или шкафа. С его помощью вы не только эффективно разграничите комнаты, но и сможете использовать мебель по назначению. Обязательно возьмите на заметку такой совет, если хотите как можно рациональней обставить свою небольшую квартиру.
Какая цветовая гамма подойдет лучше всего?
Когда дело касается небольших квартир, то о темных оттенках лучше сразу забыть. Ведь ни для кого не секрет, что светлые тона визуально расширяют пространство. В то время как темные, наоборот, существенно скрадывают и без того драгоценные квадратные метры. Выберите основной светлый цвет и используйте его более темные вариации, чтобы расставить акценты или разделить площадь. Также можно сделать более темным пол.
Главное помнить, что абсолютно все выбранные вами цвета должны гармонично сочетаться между собой. Это касается всего: мебели, декора, текстиля и прочего.
Перечислим несколько полезных советов, которые помогут вам обставить малогабаритную квартиру наилучшим образом:
- Для визуального увеличения небольшого пространства используйте зеркала. Такой простой прием позволит эффективно расширить границы квартиры, сделать ее более легкой и просторной. К тому же благодаря данной хитрости помещение станет выглядеть более стильно и красиво.
- Используйте дверцы на рельсах, вместо традиционных распашных конструкций. Так вам не придется предусматривать дополнительное свободное пространство для открытия дверей, будь то створки шкафа или межкомнатные двери. К тому же в современных магазинах довольно большой выбор бюджетных и стильных шкафов-купе.
- Задействуйте пространство под потолком. Там, к примеру, можно удачно разметить телевизор или акустическую систему. Это очень удобно, и техника не будет занимать лишнего места.
- Откажитесь от массивных штор. Если в маленькой квартире повесить толстые занавески или тюль с объемным ламбрекеном, то интерьер от этого точно не выиграет. Гораздо разумнее предпочесть такому варианту современные и компактные римские шторы.
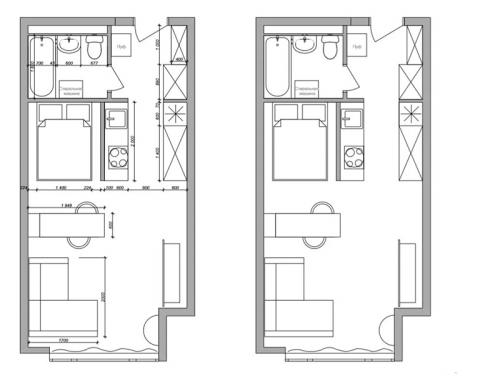
Дизайн однокомнатной квартиры с отдельной кухней. Проекты однокомнатных квартир с отдельной кухней - 3 проекта с примерами планировок
Всего двадцать лет назад все мы считали очевидным, что кухня в квартире – это то помещение, которое обязательно должно быть отделено и изолировано. Однако, в последние годы идеи объединения кухни и гостиной в общее пространство или размещать все зоны маленькой квартиры в рамках общего студийного пространства стала настолько популярной, что отдельная кухня встала редкостью.
На данной странице мы собрали несколько проектов «однушек», планировка которых предполагает отделение кухни в отдельную комнату. Причём в каждом конкретном проекте – эта задача реализована по-своему.
1. Однокомнатная квартира 38 кв. м, кухня отделена глухой перегородкой
В этой квартире поместилось очень много функций: прихожая, кухня, столовая, спальня, гостиная, рабочая зона для двоих, санузел и даже гардеробная комната.
Цветовая гама очень сдержанная., на стенах мы использовали декоративную штукатурку, которая приятно бликует на свету. Обилие природных фактур, таких как дерево и камень, в сочетании с синими акцентными элементами гармонично дополняют и подчеркивают друг друга, а тёмные детали придают графичности пространству.
.
План однокомнатной квартиры. Лучшие варианты планов однокомнатной квартиры: уют и комфорт на 40 метрах
В крошечной однокомнатной квартире надо разместить всю необходимую мебель. Кроме шкафов, кровати, обеденного стола нужно комфортное рабочее место с компьютером. На кухне должно быть удобно готовить. Надо найти место для холодильника, духовки, посудомойки. Где разместить стиральную машину с гладильной доской, вовсе непонятно.
Стесненные условия 1-комнатных квартир площадью до 40 м2 требуют от владельца большой изобретательности. Нужно решить множество противоречивых задач. Хочется выбрать дизайн, который хотя бы визуально расширит размеры комнат, даст ощущение домашнего уюта. Разберем, как выбрать оптимальный план однокомнатной квартиры, скомпоновать мебель, определиться с цветовой палитрой и стилем.

Особенности планировки квартиры с одной комнатой
Выбор подходящего дизайна изначально зависит от геометрии жилья. Подходящая для узкой длинной комнаты мебель совершенно неприемлема для квадратного помещения.

Наличие высокого потолка дает возможность обустройства дополнительных спальных мест. На импровизированном втором этаже разместятся редко используемые вещи. Под лестницей можно разместить холодильник или дополнительные шкафчики. Под каждой ступенькой встроены выдвижные ящики.

Огромное значение имеет размер окон, их количество, наличие балкона или лоджии, которые можно переоборудовать в отапливаемое помещение и объединить с комнатой. Подоконник вполне логично трансформируется в хорошо освещенное рабочее место.

Распространенной особенностью планировки однокомнатных квартир размером до 40 кв. метров является совмещенный санузел. Стремление к комфорту заставляет многих владельцев разделить его. Опыт показывает, что выгоднее убрать ванну. На освободившееся место встанут душевая кабина, стиральная машина и шкафчики над ней.

Виды планировок однокомнатных квартир
Ограниченность размеров малогабаритных квартир не позволяет архитекторам реализовать весь потенциал своего воображения, поэтому такое жилище многообразием форм не отличается. Можно выделить три самых распространенных вида квартир.

Типовая
Массовое панельное домостроение определило несколько стандартных вариантов планировки. Для пятиэтажных домов советской эпохи характерен компактный квадрат с крошечной прихожей, маленькой жилой комнатой, совмещенным санузлом, миниатюрной кухней, где тесно даже вдвоем.

Позднее появились девятиэтажные дома улучшенной планировки с большей полезной площадью и лоджией.

Нестандартная
Оригинальная планировка характерна для кирпичных домов различной этажности. Например, часто встречается комната с эркером, к которому может примыкать лоджия с дверью на кухне.

Квартира-студия
Такой тип обустройства получил распространение в начале прошлого века. Стремительный рост городского населения породил острый дефицит просторного жилья. Отсутствие перегородок позволило на небольшой площади получить достаточно места для проживания одного человека или небольшой семьи. До сих пор студии по-прежнему популярны из-за постоянного роста стоимости строительства.
Квартиры-студии обладают рядом дополнительных преимуществ:
- На небольшой площади, не ограниченной перегородками, больше возможностей организовать различные варианты комфортного жилья на любой вкус.
- Все пространство легко оформить в одном стиле, выделив зоны для работы, отдыха, приема гостей.
- Превосходная акустика порадует меломанов.
- Хороший вариант для творческой личности — мастерская объединена с жильем.
- Для малообеспеченной молодежи квартира-студия едва ли не единственная возможность обзавестись собственным жильем.

Способы оптимизации пространства
Для достижения максимального комфорта необходимо учитывать архитектурные особенности имеющейся жилой площади. Соотношение длины к ширине комнаты, высота потолков, количество окон, наличие балкона, лоджии, а также несущих стен в качестве внутриквартирных перегородок изначально задают направление поиска оптимального дизайна.

Нюансы перепланировки
Чтобы получить максимум свободного пространства, обычно сносят почти все перегородки. Нельзя этого делать только с несущими стенами. При крайней необходимости в них можно устроить дверной проем, но только после согласования с надзорными органами.

Перед началом проектирования желательно посоветоваться со специалистом, чтобы потом не возникло проблем при утверждении документации в архитектурном управлении. Надо учесть, что в зданиях, имеющих историческую ценность, запрещено делать перепланировку.
Кроме того, демонтаж стен повлечет удорожание ремонтных работ. Нужно будет заново прокладывать электропроводку, отопление, водопровод, канализацию. Обязательно необходимо предусмотреть дополнительную вытяжную вентиляцию над местом приготовления пищи, иначе стойкий кухонный запах вскоре насквозь пропитает квартиру.
Планировка однокомнатной квартиры 30 кв м. Светлая квартира для студентки
Начинаем со светлой и уютной однушки площадью 33 квадрата. Этот проект — отличный пример функционального дизайна для 1-2 человек. При этом, учитывая пожелания хозяйки, дизайнеры продумали планировку так, чтобы обустроить даже на такой небольшой площади место для приема гостей.
Входная зона получилась достаточно большой — почти 7 квадратов, но при этом узкой. Пространство условно разделили на две части: входная группа, состоящая из открытой вешалки, пуфика и лаконичного белого комода, и большая система хранения. Для этого выбрали вместительный шкаф, в котором удалось спрятать целый
Кухня площадью всего 5 квадратов оформлена в скандинавском стиле: светлый гарнитур, отделка в тон и деревянные элементы. Белая обеденная группа выделена светло-голубой настенной панелью, чтобы не сливаться с остальной отделкой. Из техники удалось разместить все необходимое, кроме посудомоечной машины — от нее было решено отказаться. Дом газифицирован, поэтому можно взять на вооружение такой дизайн однокомнатной квартиры 30 кв. м для хрущевки.
Идея на заметку: при входе на кухню на стене сделаны крепления, на которых держатся складные стулья для гостей. Очень интересное решение — одновременно практичное и эстетичное, поскольку красные стулья в собранном состоянии воспринимаются как элемент декора и яркий акцент.
Жилая комната играет роль и гостиной, и спальни одновременно. Центральная точка интерьера — и яркая картина над ним. По левой стене расположен большой шкаф во всю высоту помещения для хранения одежды. Напротив разместили телевизор и консоль, а у окна выделили пространство под полноценное рабочее место.
Санузел — всего 3 метра площадью. Чтобы помещение казалось просторнее, его оформили в белом цвете. В углу установили душевую кабину, по бокам от нее — туалет и раковину с глубокими ящиками и зеркалом.
Современный дизайн однокомнатной квартиры. Планировки однокомнатной квартиры
Чтобы при ремонте однокомнатной квартиры подобрать оптимальный дизайн, нужно учитывать и ее тип. На данный момент распространено несколько основных разновидностей, каждая из которых имеет свои характерные особенности:
- Хрущевка. Квартиры советской постройки, которым уже несколько десятков лет. Их отличительная особенность – крошечная площадь, часто она не превышает 30 квадратов. Небольшая кухня и комната, совмещенный санузел и прихожая в несколько квадратных метров. Тут очень важно продумать все до мелочей, использовать каждый доступный уголок для систем хранения. Планировка стандартная, каждое помещение нужно оформлять отдельно.

- Студия. Более современные решения с объединенным пространством, которые строятся не так давно, площадь на несколько метров больше, чем в хрущевках. Планировка более свободная, кухонная и жилая зоны чаще всего разделяются мебелью, чтобы не занимать пространство. Что касается расстановки, тут есть свобода выбора: проще всего посмотреть фото дизайна однокомнатных квартир-студий.

- Среднегабаритная квартира. Обычно площадь составляет около 40 квадратов, что обеспечивает намного больше возможностей при оформлении. Планировка чаще всего стандартная – прихожая, из которой двери идут в комнату, кухню, ванную и туалет. Нередко есть и достаточно большая ниша, в которой можно оборудовать гардероб или даже сделать спальное место. Расположение и компоновка помещения при этом могут быть разными.

- «Распашонка». Название обусловлено особенностями планировки. Обычно после входа есть коридор среднего размера, из которого в одну сторону расположена дверь в комнату, в другую – кухня, а спереди – туалет и ванна. Ширина помещений обычно не очень большая, что также является особенностью этого типа. Помещения длинные, что требует использования приемов по визуальному расширению пространства.

Есть квартиры в новостройках с площадью более 45 кв м. Это самые лучшие варианты, в которых места достаточно для воплощения любого замысла.
Планировка однокомнатной квартиры с размерами. Какую планировку выбрать
Уже при покупке квартиры и осмотре разных вариантов имеет смысл определиться, сколько человек будут в ней жить и смогут ли они делить одну спальню.
- Студия — это единое помещение, в котором размещают и кухню, и гостиную, и спальню. Отдельно в таких квартирах вынесен санузел, иногда кладовая или гардеробная.
- Однокомнатная квартира подразумевает отделенную стеной кухню, а также выделенный коридор и санузел.
- Евродвушка — это средний вариант между однокомнатной квартирой и двухкомнатной. Обычно кухня расширена таким образом, чтобы в нее поместилась и зона для отдыха или гостиная. Спальня при этом отделена стеной, но нередко по площади меньше, чем в однокомнатных квартирах. Санузел изолирован, а вот коридор может быть совмещен с общей зоной.
Важный момент при выборе планировки — назначение квартиры: будут ли жильцы в ней только ночевать, захватывая небольшой отрезок времени, или дома постоянно будет кто-то находиться, в том числе работать. Все это отразится на использовании пространства и тех зонах, которые необходимо будет выделить при ремонте и обустройстве.
Как правило, в однокомнатных квартирах необходимо иметь несколько ключевых зон:
- зона сна, которую можно совместить с зоной отдыха;
- зона приготовления и приема пищи — кухня и/или столовая;
- рабочая зона — место для стола или компьютера;
- зона хранения — шкафы и стеллажи.
Надежда Коркка, управляющий директор компании «Метриум» (участник партнерской сети CBRE):
— При покупке квартиры в первую очередь стоит обратить внимание на репутацию и реализованные проекты застройщика. Это позволит не приобрести потенциальный долгострой или вариант со значительным объемом недоделок.
Выбор планировки зависит от изначального запроса конкретного покупателя. Например, если он планирует жить один, то ему вполне достаточно классической однокомнатной квартиры или студии. В свою очередь, для пары или семьи с маленьким ребенком оптимальным вариантом будет евродвушка.