Какая планировка квартиры лучше линейка или распашонка. Распашонка или линейка – преимущества планировок
- Какая планировка квартиры лучше линейка или распашонка. Распашонка или линейка – преимущества планировок
- Планировка распашонка 3 комнатная. Перепланировка трёшки-распашонки 60 м в панельной хрущёвке: 5 схем (бесплатно)
- Однокомнатная квартира распашонка дизайн. Дизайн однокомнатной квартиры-распашонки 37,5 кв. м.
- Планировка распашонка 2 комнатной. Квартира-распашонка: что это?
- Двухкомнатная квартира распашонка планировка. Плюсы и минусы квартиры-распашонки
Какая планировка квартиры лучше линейка или распашонка. Распашонка или линейка – преимущества планировок
Понравилась статья ? Следите за новыми идеями из мира дизайна интерьеров, а так же полезных советов в нашем канале. Подписывайтесь на нас в Яндекс.Дзене . Подписаться.
На этапе планирования покупки квартиры, человек старается подобрать наиболее оптимальный вариант с точки зрения удобства, эргономики и комфорта. «Распашонки» и «линейки» – 2 самые часто встречающиеся планировки жилья, которые предлагают застройщики. Давайте выявим плюсы и минусы каждой из них, чтобы помочь определиться с выбором.

Преимущества «распашонки»
- Визуально большее пространство. При таком типе планировки окна выходят на противоположные стороны. И если учитывать, что вид из окна является одним из ключевых факторов в пользу того или иного жилья, распашонка дает возможность получить сразу 2 независимых обзорных вида.
- Приятный микроклимат. Это очень важно в жаркую погоду. Благодаря противоположным выходам квартира прекрасно проветривается и если одна сторона солнечная и теплая, другая определенно будет в тени с комфортной прохладой.
- Отсутствие проходных комнат, что актуально, когда каждый член семьи хочет сохранить ощущение приватности.
- Два балкона с обеих сторон. Это дополнительная площадь для оборудования под любые цели – место отдыха, рабочий мини-кабинет.

Недостатков у такой планировки немного, точнее всего один – санузел часто располагается напротив входа. Таким образом, каждому зашедшему в глаза бросается в первую очередь именно он. Но это легко поправить наличием перегородки, которая будет отвлекать внимание на себя. Некоторые зачисляют к минусам также размещение всех коммуникаций в одном месте, что доставляет определенные неудобства во время ремонта.
Преимущества «Линейки»
- В противовес первому варианту, коммуникации в противоположных частях, что позволяет делать перепланировку более простой и быстрой.
- Расположение окна в непосредственной близости к входной двери, зачастую напротив. Это наполняет квартиру дополнительным светом, делает интерьер легким и теплым.
- При отсутствии несущих стен можно оборудовать просторную квартиру-студию, где тесно точно не будет казаться.

В данном случае недостатков существенно больше и они могут стать решающими при взвешенном выборе квартиры:
- Зрительно меньше пространства. Этот недочет исправляется только сносом стен и объединением комнат.
- Длинный коридор с проходными комнатами. Первый иногда бывает таким узким, что в нем трудно одновременно разминуться двум людям. Ощущение зажатости не покидает жильцов на протяжении всего времени проживания.
- Слишком жарко. Поскольку проветривание в «линейке» недостаточное здесь советуют устанавливать кондиционеры. Ситуация немного исправляется зимой, когда такой минус может сойти за преимущество.
- Окна с балконом выходят на одну сторону, что дает возможность наслаждаться только одним видом. Отсутствие разнообразия со временем надоедает и негативно влияет на настроение.

Выбирая между двумя этими видами планировок, учитывайте количество членов семьи, их характер и темп жизни и помните, что абсолютно любой вариант можно подстроить под собственные требования.
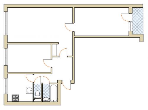
Планировка распашонка 3 комнатная. Перепланировка трёшки-распашонки 60 м в панельной хрущёвке: 5 схем (бесплатно)
В спальных районах очень распространены девятиэтажки серии II-49 с малогабаритными квартирами. Разберёмся, что можно сделать с десятиметровыми спальнями и кухней 6 квадратов, и как найти место для гидромассажной ванны в хрущёвке.

Типовая планировка
Лишь две комнаты в типовой планировке изолированные. При этом существует несколько тамбуров и встроенный шкаф, которые усложняют планировку – их проще демонтировать. Недостатков хоть отбавляй: кухня 6 кв. м, супертесный раздельный санузел, вытянутые по форме комнаты-пеналы, отсутствие как таковой прихожей. Всё это делает типовую планировку непригодной для комфортной жизни.

Вариант 1
Самый простой вариант – оставить существующую планировку, но избавиться от очевидных недостатков. Например, демонтируем тамбур и встроенный шкаф, сузим коридор и за счёт этого увеличим площадь детской и гостиной. Теперь все комнаты изолированные, а к гостиной примыкает небольшая гардеробная. Санузел объединим, чтобы выиграть хотя бы ту часть площади, на которой раньше стояла стена.

Вариант 2
Перенос дверного проёма из кухни в гостиную – самый популярный вариант перепланировки в типовых домах. Так на самой кухне встанет дополнительная секция гарнитура, а санузел можно будет расширить за счёт коридора. В прихожей даже встанет шкаф для верхней одежды. Рядом с кухней можно обустроить только столовую или установить здесь же большой угловой диван. Тогда оставшиеся комнаты превратятся в симметричные спальни с гардеробной между ними.

Вариант 3
При необходимости площадь кухни можно сократить до минимума, чтобы расширить санузел и установить гидромассажную ванну. Стену между меньшей по площади комнатой и коридором демонтируем – помещение станет проходным, но куда более просторным. Гостиная и столовая соседствуют. Но можно установить диван в столовой у окна и превратить комнату в гостиную. Спален будет две. Полноценная гардеробная не обязательно должна занимать много места. В этом варианте она угловая, закрывается шторой или раздвижными дверьми.

Вариант 4
Принцип тот же – санузел объединим и расширим за счёт коридора, вход на кухню перенесём в гостиную. Если сузить коридор, то в маленькой комнате встанет и обеденный стол, и угловой диван. Чтобы изолировать две дальние комнаты, предусмотрим скошенные дверные проёмы. В спальне развернём кровать к окну и в глубине обустроим гардеробную неправильной формы. В детской останется достаточно места для кроватки и гостевого дивана. А письменный стол установим на утеплённом и присоединённом балконе.

Вариант 5
Стоит сразу оговориться, что согласовать такую перепланировку смогут только владельцы квартир на первом этаже или над офисами. Обычно мокрые зоны остаются на своих местах, но здесь кухню перенесём в меньшую по площади комнату. Сюда встанет очень вместительный П-образный гарнитур – идеальный вариант для любителей готовить. Если Изменить конфигурацию стены в коридоре, то встанет даже овальный обеденный стол. Все эти манипуляции необходимы, чтобы максимально расширить санузел. Теперь он просторный и комфортный, к тому же с окном – а это мечта многих. Входную дверь тоже предполагается перенести, чтобы обустроить прихожую. В дальней части квартиры появятся довольно типовые гостиная и спальня с гардеробной между ними.

Подписывайтесь на канал и узнавайте свежие тренды в дизайне интерьеров. Если вы хотите видеть больше такого в своей ленте — ставьте лайк.
Автор: Павел Шелягин, основатель магазина дизайнерской мебели Филдс .
Однокомнатная квартира распашонка дизайн. Дизайн однокомнатной квартиры-распашонки 37,5 кв. м.
Довольно просторную, но неудобную в плане однокомнатную квартиру-распашонку дизайнер превратил в удобную и оригинальную по стилю студию.
Планировка однокомнатной квартиры-распашонки
Длинное, узкое по планировке помещение имело окна по коротким стенам, поэтому от межкомнатных стен дизайнер отказался, а функциональные зоны выделил с помощью драпировок и стеллажей. Возле окон расположились зоны, нуждающиеся в дневном свете: жилая и кухонная. Подсобные помещения, а именно гардероб и небольшую прачечную поместили в центре – самом темном месте квартиры.
Идеи для хранения в квартире
Пространство квартиры снабжено большим количеством мест для хранения, все они убраны с глаз и не мешают восприятию интерьера. Например, доску для глажки скрывает зеркало в кухне, если не знать этого – заметить невозможно. Выстроенная в центре однокомнатной квартиры-распашонки гардеробная разделяет жилое и кухонное пространства. Со стороны кухни в стене гардеробной комнаты имеются глубокие ниши для посуды.
Дизайн кухни
Кухонный гарнитур поставили в линию вдоль стены, примыкающей к противоположным окнам, а в центре расположилась обеденная группа – большой прямоугольный стол, окруженный стульями.
Дизайн гостиной-спальни
Жилая часть квартиры делится на две разные по назначению зоны: та, что предназначена для сна, расположена возле оконного пространства, гостиная с тубой под телевизор – ближе к гардеробной.
Дизайн ванной комнаты
«Изюминкой» проекта однокомнатной квартиры-распашонки стала необычная ванная комната: из нее можно попасть в туалет, поднявшись по ступенькам на другой высотный уровень. Такое решение продиктовано внутренним устройством дома, и то, что воспринималось, как неудобство, дизайнер сумел превратить в достоинство.
Планировка распашонка 2 комнатной. Квартира-распашонка: что это?
Слово «распашонка» или «бабочка» в отношении квартирной планировки означает квартиру, комнаты которой располагаются друг напротив друга и разделяются коридором, а окна комнат выходят на разные стороны дома: на улицу и во двор.
В центре квартиры находится коридор, заканчивающийся обычно кухней, помещением санузла или встроенной кладовкой (гардеробом).
История названия и современность
История названия начинается со времен массовой застройки городов «хрущевскими» домами, состоящими из малогабаритных квартир, и призванных в короткие сроки обеспечить граждан Советского Союза жильем.
Произошло название из-за сходства планировки таких квартир с детскими рубашками-распашонками. Комнаты, расходящиеся в разные стороны – это рукава распашонки, а коридор, разделяющий их это центральная часть рубашки. Окна комнат представляют собой отверстия в рукавах, а вход в квартиру обычно является низом распашонки.
Квартиры этой планировки пользуются популярностью и у современных застройщиков и граждан. Практически ни один план жилого комплекса не обходится без таких квартир, они пользуются спросом и быстро раскупаются.
Вариант названия «бабочка» настолько же уместен к данной планировке. Комнаты это крылья, а коридор – тельце бабочки.
Основные виды планировки «распашонки»
Название «распашонка» применяется к однокомнатным, двухкомнатным и даже к некоторым трехкомнатным квартирам.
Для однокомнатных квартир планировка практически стандартная: прихожая квартиры заканчивается ванной и туалетом или совмещенным санузлом, слева и справа по коридору расположены входы в кухню и гостиную.
Для двухкомнатных и трехкомнатных вариантов гораздо больше, но все они зависят от планирования расположения всех квартир дома и площади, отведенной на них.
Приведем в пример несколько из них:
- Квартира со стандартным расположением кухни – самая распространенная планировка. Возле входной двери справа или слева располагается жилое помещение. В конце коридора прямо ванная комната и туалет, друг напротив друга, находятся входы в кухню и второе жилое помещение.
- Еще один стандартный вариант : коридор заканчивается кухней, по обе стороны коридора располагаются входы в жилые комнаты. Санузел находится перед кухней на одном с ней уровне.
- Современный вариант новостроек: прихожая ведет в кухню-студию, уже объединенную с гостиной. Справа расположена комната меньшей площади. Туалет и ванная находятся справа, на одном уровне с кухней.
- Вариант с кухней и санузлом у входа в квартиру . Коридор из прихожей ведет на кухню, мимо санузла, с одной стороны, и спальни с другой. В конце прихожей вход во вторую комнату.
Преимущества квартиры-распашонки
Семьи, не один год проживающие в квартирах-распашонках , отмечают несколько преимуществ по сравнению с квартирами других планировок:
- Комнаты квартиры одновременно расположены на солнечной и затененной стороне дома , поэтому каждый может расположиться с комфортом в зависимости от предпочтений освещенности.
- Квартира очень легко и быстро проветривается, что является неоспоримым преимуществом в случае болезни кого-то из семьи, при большом количестве гостей, а также в жаркие летние дни.
- Нет проходных комнат , за редким исключением отдельных планировок;
- Во многих домах старой постройки жилые комнаты таких квартир имеют одинаковую площадь;
- В современных новостройках эти квартиры очень часто имеют 2 балкона;
- Разделение комнат коридором удобно и для семьи с детьми подростками и для взрослых детей, живущих с родителями . Жилые комнаты не имеют общих стен, поэтому каждая комната будет уютной и тихой.
- При перепланировке квартиры можно выделить еще одну комнату , или объединить кухню с прилегающей к ней комнатой, создав, таким образом, современную гостиную с барной стойкой или другими тенденциями квартирного дизайна.
- Покупка одного многофункционального комплекта мебели поможет обустроить квартиру в едином стиле и найти применение всей мебели.
Прекрасный обзор местности, особенно для жильцов верхних этажей высотных домов. Закатами и восходами солнца можно любоваться из окон или с балконов своей квартиры.Двухкомнатная квартира распашонка планировка. Плюсы и минусы квартиры-распашонки
Довольно необычная планировка имеет ряд преимуществ, которые почти не меркнут на фоне немногочисленных недостатков. Распашонки часто встречаются в домах сериях п-44 и п44т. Они входят в стандартный домовый набор одного этажа вместе с парой двушек, однушкой и трешкой. Однако размещают распашонки исключительно с торцевой стороны, чтобы окна выходили на разные стороны. Площадь такой типовой квартирки в домах серии п44 не превышает 60 кв.м. Пространства более, чем достаточно, для грамотного «комнатного» наполнения и воплощения одного из шикарных стилей. К сожалению, распашонки постепенно уходят из моды. В больших количествах они встречаются в старых домах. Современные застройщики совсем от привычной и полюбившейся многим планировки не отказались, но она украшает собой в основном бюджетные многоэтажки, предназначенные для молодых семей.

Среди преимуществ распашонок отмечают:
- Хороший обзор и возможность быстрой смены пейзажа посредством перехода из одной комнаты в другую.
- Многокомнатная распашонка позволяет создать два разных мира с коридорной границей. То есть на такой площади уживаются родители с детьми или две семейные пары. При этом мешать друг другу они не будут, так как из-за отсутствия общих стен их владения не пересекаются. Таким образом проблема «отцов и детей» сама себя исчерпывает.
- Коридоры распашонок обычно оснащены специальными нишами под встроенную мебель. Если планировка жилья соответствует второму варианту с просторным холлом, то его можно использовать под гардеробную.
- Широкий коридор со студийной кухней при необходимости позволит выделить отдельную комнату с помощью декоративной стенки или арки.

Из малочисленных недостатков стоит упомянуть:
- Постоянные сквозняки при одновременно открытых окнах в разных комнатах.
- Одна половина распашонки всегда будет в тени, а другая — на солнце. Этот нюанс маскируют подбором теплой цветовой гаммы для первого варианта и холодной или умеренной для второго.
Последний недостаток может быть усугублен, если окна вообще выходят на юг и сервер, а солнце заглядывает только краешком рано утром и по вечерам.
