Розетки у кровати в спальне. Сколько должно быть розеток в спальне
- Розетки у кровати в спальне. Сколько должно быть розеток в спальне
- Розетки у кровати на какой высоте. На какой высоте устанавливаются штепсельные розетки
- Розетки у кровати схема. Расположение розеток в спальне
- Розетки у кровати в спальне высота. Высота розетки над тумбочкой в спальне
- Розетки у кровати в детской. Размещение электрических розеток в квартире — где делать?
- Розетки у кровати высота. Особенности размещения розеток
- Видео розетки в спальне
Розетки у кровати в спальне. Сколько должно быть розеток в спальне
Чтобы понять, какое количество розеток разместить в спальной комнате, достаточно подсчитать электрические приборы, которые планируется установить в ней (телевизор, ночные светильники, будильник и др.). Также следует предусмотреть 2-3 «дежурные» розетки в спальне, например для пылесоса, а также для зарядки гаджетов (телефона, электронной книги, ноутбука и т.д.). Итак, путем нехитрых вычислений получаем около 10 разъемов.

Не будьте легкомысленны, и не думайте, что розетка может быть только под стандартную вилку. Продумайте эту деталь заранее.
Телевизор и оборудование
Телевизор сегодня присутствует практически в каждой спальне. Продумать место его размещения рекомендуется заранее, так как ТВ в комнате потребует как минимум блок из 3-5 розеток (для плазменной панели, цифровой приставки, модема). Размещают его, чаще всего, на стене напротив кровати. Блок розеток в этом случае стоит установить на высоте 130 см от пола, тогда он будет скрыт за телевизором.

Мало людей будут устанавливать домашний кинотеатр в спальню, но, не смотря на это, стоит предусмотреть большее количество розеток, с запасом.
Рабочее место
Если в спальной комнате планируется разместить рабочий стол, то для него рекомендуется отдельно рассчитать количество необходимых разъемов. Так как список устройств, размещаемых на нем не малый. Как минимум это компьютер, акустическая система, принтер и осветительная лампа. Кроме того, скорее всего, потребуются точки подзарядки и несколько запасных разъемов для других приборов. Подсчитав все, получится примерно 8-9 розеток только для рабочего стола. Часть специалисты рекомендуют размещать на высоте 30 см для системного блока и монитора, а часть – на высоте 15 см от крышки стола для светильника, различных гаджетов.

Если вы сделали недостаточное количество выходов под розетки, не отчаивайтесь. Используйте свою фантазию или готовые решения, чтобы спрятать лишние провода.
Расположите розетки в зоне кровати
Назначение розеток около кровати понятно – подключение бра или маленьких прикроватных светильников. Вместе с тем, удобно иметь возле кровати и пару запасных электрических точек, например для подключения ноутбука или зарядки телефона. Конечно, если спальня предназначена для семейной пары, то количество прикроватных электроблоков удваивается.

В современном мире мы не можем обходиться без гаджетов, будь то телефон, планшет или ноутбук. И их слабое место это заряд батареи. Добавив пару розеток у кровати, вы сильно облегчите себе жизнь.
Дополнительные свободные розетки
О том, что потребуется дополнительная свободная розетка для пылесоса, уже упоминалось. Установить ее удобнее всего возле двери в комнату. А если спальня очень большого размера, то рекомендуется предусмотреть даже 2 разъема в разных концах комнаты.
Привыкли гладить белье в спальной комнате, тогда потребуется еще отдельная розетка для утюга, тем более что это достаточно мощный электроприбор и потребляет большое количество электроэнергии. А может вы захотите установить в спальне домашний велотренажер, не забудьте, что он тоже работает от электричества.
Высота расположения розеток в спальне

Дополнительные розетки стоит размещать в малозаметных местах спальни. Хорошей идеей будет скрыть их элементами декора или мебелью.
Руководствоваться или нет известным «европейским стандартом» высоты расположения блока розеток в спальне, решать только хозяевам. Например, дизайнеров больше волнует, как они впишутся в интерьер помещения. А также важно учесть удобство использования.
Придерживаться стандартов имеет смысл, наверное, только в части расположения розеток возле прикроватных тумбочек. Их следует установить на высоте 10-15 см от столешницы – это около полуметра от пола, и примерно в 25 см от края кровати. Можно и разделить прикроватные розетки: одну — две спрятать за тумбочкой (для светильников, будильника и т.д.), а пару разместить выше (для зарядки смартфона и других гаджетов).
Розетки у кровати на какой высоте. На какой высоте устанавливаются штепсельные розетки
В СП указано, что электроустановки нужно монтировать в любом месте на высоте до 1 метра.
Не указывается расстояние от розеток для подключения электроплит и кондиционеров. В школах, ДДУ ставят на высоте 180 см от пола. Рекомендуемая длина от напольного покрытия составляет 1 метр.
Высоту и расстояние определяет владелец помещения. В некоторых случаях действуют правила:
- розетки размещают не ближе полуметра к газопроводу;
- на кухне и в ванной электроустановки ставят на расстоянии выше 60 см от поверхности пола, водопровода.
Штепсельные разъемы в домах должны быть защищены специальным устройством, которое закроет к ним доступ при вытянутых вилках.
Грамотное расположение выключателей подразумевает установку на стене на расстоянии до одного метра со стороны, где расположена дверная ручка или под потолочной зоной со шнуром.
После завершения монтажа разъемов для электрических приборов и выключателей ПУЭ указывает о необходимости проведения работ касаемо электроизмерения. Они позволят выявить нарушения, возможные неполадки и полностью обезопасить процесс использования в повседневной жизни.
Для грамотного и удобного размещения разъемов и выключателей сначала рекомендуется определить, в какую сторону открывается дверь. Затем расставляют выключатели со стороны ручек на дверных полотнах. Делают это на расстоянии от 80 см до 1 метра в зависимости от роста проживающих.
Размещение электроустановок связано с разновидностью помещения:
- в длинном коридоре, на лестничном проеме монтируют источники в начале пути и конце;
- в гостиной и спальне комфортно, когда выключатели расположены при входе в комнату и рядом с диваном, кроватью, чтобы упростить процесс пользования освещением.
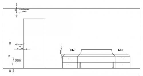
Длину электроустановок от пола нужно выбирать с учетом того, из какого местоположения они будут доступны. К примеру, при входе в комнату выбирают высоту 90 см, рядом с креслом, кроватью – 60 см, чтобы было удобно дотянуться рукой.
Розетки у кровати схема. Расположение розеток в спальне
Заселение в квартиру с типовой электрической разводкой часто влечёт за собой закупку множества удлинителей и тройников. Причина предельно проста: формулы универсального размещения розеток не существует. Их всегда мало. Они постоянно оказываются не там, где нужно. Но удлинители не добавляют эстетичности дизайну, да и связанных с их использованием рисков немало. А вот как избавиться от неприглядных проводов можно разобрать на примере спальни.
Расположение розеток в спальне
Комната для сна уже давно перестала помещением, в котором ставятся лишь кровать и тумбочка. Ещё до появления электричества в неё были перенесены туалетные столики и гардероб — ведь истинным леди и джентльменам не пристало выходить из спальни в одной пижаме. А в современной квартире эта комната может и роль кабинета на себя примерить. Или полноценной зоны отдыха, которую без мультимедиа-устройств представить невозможно. И всё это освещается электричеством или питается ним.
Из чего исходить при выборе расположения
Когда вопрос формирования оптимальной электрической разводки поднимается во время ремонта в давно обжитой квартире, решить его немного проще — владельцы уже знают, что и где у них расположено. Новосёлам труднее. Им предстоит определиться с меблировкой спальни. А ведь именно от неё и следует отталкиваться.

Для того чтобы потом не мучиться с «криво установленной» розеткой, необходимо:
- Вооружиться рулеткой, карандашом и парой листов бумаги.
- Провести замеры мебели, которая будет размещена в спальне. Сориентироваться с местом её установки.
- Определиться с электротехникой. Важно учесть количество и расположение всех устройств, которые будут находиться в спальне — от настольной лампы до утюга, прилагающегося к вмонтированной в гардероб гладильной доски.
Результаты всех замеров, как и перечень мебели с потребляющими электричество устройствами, следует записать на одном листе. На втором желательно схематически зарисовать будущую планировку спальни. После этого можно приступать к продумыванию электрической разводки.
Самое удобно и практичное положение розеток спальне
Сначала продумывается «постоянное» подключение — где и как будут размещаться приборы, которые редко отключаются от сети: настольные лампы, подсветка туалетного столика, телевизор, компьютер и подобная им техника. Под каждое из этих устройств отводится отдельная розетка, которую можно скрыть.

Затем следует планирование «временного» подключения — мобильные телефоны, ноутбук, фен, утюг и прочее. Под них проектируются розетки в местах наиболее частого использования. Эти разъёмы должны находиться на удобном для хозяев уровне.
Последний этап — сведение результатов двух предыдущих. На примере прикроватного пространства это выглядит приблизительно так:
- Тумбочка, на которой стоит торшер, может скрывать предназначенную для него розетку.
- Владелица любит «посидеть» в сети не выбираясь из-под одеяла, значит у изголовья должна быть точка подключения зарядного устройства. Скрывать её за мебелью нельзя.
- Результат: нужна двойная розетка с удобным доступом. Её располагают или над столешницей стоящей впритык к кровати тумбочки, или на комфортном уровне в пространстве между отстоящей мебелью.
Советы практика
Под розеткой не всегда стоит понимать сеть питания 220 В. Если предполагается использование гаджетов, для их подзарядки можно вывести USB порт, встроенный в привычную рамку.

Под «скрытыми» подразумеваются убранные из поля зрения точки подключения. Для компьютерной техники это разъёмы на высоте 15-35 см от пола. Для телевизоров и сопутствующих им мультимедиа-устройств — около 130 (так, чтобы розетка скрывалась за ними).
Для периодического использования обеспечивается подключение к электросети на высоте 90-100 см. Это правило работает даже если розетка проектируется без привязки к мебели.
И самое важное: при планировании электрической разводки необходимо учитывать вероятность одновременного использования всех розеток. По этой причине не стоит пытаться обойтись минимальным их количеством. В противном случае может возникнуть ситуация, когда снова понадобится удлинитель или тройник.
Розетки у кровати в спальне высота. Высота розетки над тумбочкой в спальне
Где лучше всего размещать розетки в спальне? Конечно у кровати: для заряда гаджетов, для электрических часов, настольного светильника и других нужд. Можно разместить её возле кровати близко к полу. Но иногда люди предпочитают устанавливать их высоко. В таком случае её можно вмонтировать над прикроватной тумбой. Разберём, на какой высоте должна находиться розетка в этом случае.
От каких критериев зависит высота расположения розетки в спальне
Поэтому сперва определите, в каких целях будет использоваться розетка. Если только для светильника, то, может, лучше расположить её за тумбой? Но если вы рассматриваете вариант расположения над тумбочкой, тогда к разъёму должен быть удобный подход.

Располагать изделие стоит так, чтобы удобно было до него дотягиваться. Это самый важный показатель. Продумайте заранее, что будет находиться на тумбе, и не будут ли предметы загораживать доступ к электропитанию.
Важно! Розетка должна находиться на такой высоте, чтобы до неё было удобно достать.
Второй критерий – это органичность вписывания в интерьер . Если вы не планируете скрывать данное устройство, позаботьтесь, чтобы оно органично вписывалось в комнату. Согласитесь, белое пятно с дырками посреди стены смотрится неуместно, а еще и подключённым проводом тем более. Хорошо, если розетка находится на уровне изголовья кровати.
Следовать ли стандартам
По стандартам расположения розетка должна находиться на уровне 10 см от пола. Мы рассматриваем частный случай, когда она находится над тумбой. Однако эти критерии применимы и в этом случае. Следовать ли им?
Решать только вам, если стандарты вписываются в два основных критерия (удобство и органичность), тогда такой вариант станет идеальным. При таком расположении прибор выглядит органично, и к нему есть простой доступ. Но если что-то мешает использованию при таком расположении, поменяйте его.
Лучший вариант размещения розетки над тумбочкой
Исходя из сказанного, лучший вариант – удобный вариант. Главное, чтобы изделием было комфортно пользоваться.

Важно! Не забывайте о длине проводов на имеющиеся гаджеты.
Просчитайте всё заранее: цель использования, задачи, длину проводов, возможную перестановку, и тогда приступайте к монтажу. Идеальный вариант – это 10 см над тумбой стандартной высоты. Таким образом, получается расположение розетки 70 см от пола.
Розетки у кровати в детской. Размещение электрических розеток в квартире — где делать?
Местоположение напрямую зависит от предназначения комнаты. В каждом помещении советуется установить по одной дополнительной розетке.
В гостиной или зале
В залах и гостиных существует 4 варианта размещения электророзеток.
- Элементы питания монтируются около дверного проема. Высота 0,3 м от пола, до двери не менее 0,1 м. Находиться выключатель должен со стороны ручки на высоте 90 см.
- Диванная зона. Розетки располагаются так, чтобы пользователю было удобно их использовать – например, для зарядки телефона или планшета, подключения светильника.
- Зона телевизора. Точка питания устанавливается на стене за панелью.
- Рабочий стол. Если в гостиной предусмотрено место для работы за компьютером, следует добавить несколько точек питания.
Для аудио- и
В спальне или детской комнате — правильное расположение
Располагать выключатели в спальной и детской комнате следует исходя из нужности, комфорта и безопасности использования. Электророзетки устанавливаются около прикроватных тумб или кровати. Если в помещении расположен письменный стол, следует добавить 2 электророзетки для лампы и компьютера. Над рабочей поверхностью размещают на высоте 0,2 м. Для телевизора нужна еще одна точка питания на высоте примерно 1,3 м от пола, установленная за прибором.
В детской комнате точки питания размещаются на безопасном расстоянии и оборудуются шторками.
Как правильно разместить в однокомнатной квартире, в кухне
По требованиям ПУЭ нужно соблюдать следующие правила:
- штепсельные устройства — не ближе 60 см к полу и водным коммуникационным выходам;
- аналогичное требование и к газовым коммуникациям – не менее 60 см от электроустановочных механизмов.
На нижнем уровне 10-15 см располагаются точки питания для устройств, которые включаются на непродолжительное время – стиральная и посудомоечная машина, электроплита. На втором уровне 100-130 см от пола размещают розетки для приборов, находящихся на рабочем столе, и светильников. Высота определяется конфигурацией мебели. На 2-2,5 м закрепляются розетки для включения вытяжки и освещения рабочей зоны.
В ванной
Важный критерий при проведении точек питания в ванной – безопасность.
Высота размещения от пола:
- Оптимальная – 60 см, но для стиральной машины розетку допустимо установить ниже.
- Для бойлеров — 1,5 м от пола.
- 1 метр для бритвы и фена.
Расстояние от источников воды также должно быть не менее 60 см. Выключатели света по нормам ПУЭ располагают за пределами комнаты.
В ванной обязательно используются розетки, степень защиты которой составляет IP44 и выше. Применение устройств с меньшей защитой от влаги запрещено.
В коридоре и прихожей
В коридоре устанавливается 1-2 разъема питания. Выключатель – на высоте 90 см и 10 см от дверной ручки, розетки – не менее 30 см от уровня пола.
Розетки у кровати высота. Особенности размещения розеток

Высота расположения розеток – причина многих споров. Не верьте «евростандарту» – 15 см от пола, а учитывайте только количество приборов. Для большего удобства рассмотрим каждое помещение в доме.
- Коридор.
Для коридора достаточно будет одной розетки в углу над плинтусом, на высоте 15-20 см от пола. Здесь можно будет подключить электрическую сушку для обуви или зарядить телефон гостя.
- Ванная комната.
Достаточно будет 1-2 розеток. Одна около зеркала для фена и электробритвы на высоте 100 см. Если стиральную машину планируется установить в ванной, розетка для нее должна быть размещена на высоте 50-60 см от пола.
В помещении ванной лучше использовать розетки со специальной защитой от влаги.
- Гостиная.
Для телевизора или домашнего кинотеатра достаточно двух розеток: одна для приемника, вторая для сабвуфера или внешнего ТВ-тюнера. Высоту размещения выбирайте исходя из расположения телевизора: шнур не должен свисать или тянутся к розетке, а полностью прятаться за экраном. На высоте 15-30 см от пола разместите по две штуки на каждой стене: для торшера, увлажнителя воздуха, зарядных устройств, игровых приставок, пылесоса.
- Кухня.
В кухне используется наибольшее количество техники: вытяжка, посудомоечная и стиральные машины, электроплита, мелкие приборы (миксер, блендер, микроволновая печь, кухонный комбайн и т.д.), холодильник, морозильная камера. Список растет с каждым годом.
Для холодильника розетка размещается на стене за ним на высоте 60-80 см. Для вытяжки монтируют розетку на высоте 180-200 см от пола. Для посудомоечной и стиральной машин, электроплиты – размещают на высоте 20-30 см от пола – для них вырезают отверстия по размеру в задней стенке кухонной мебели. Над уровнем рабочей поверхности (5-10 см) разместите три розетки для мелкой техники. Телевизор на кухне размещают на стеновом кронштейне. Оптимальная высота розетки – 180-200 см.
- Спальня.
Здесь будет достаточно по две розетки с обеих сторон кровати: для прикроватных ламп и дополнительных приборов. Возле туалетного столика будет достаточно одной штуки на высоте 60-70 см от пола для фена.
- Рабочий кабинет.
Компьютер потребует минимум пять розеток (системный блок, монитор, сабвуфер акустической системы и одна для настольной лампы, принтера или сканера). Возле стеллажей с книгами обычно обустраивают место для чтения: торшер и удобное кресло – это еще одна розетка. Две дополнительные розетки монтируют на свободной стене. Все розетки размещают на высоте 15-30 см от пола.
- Детская.
Детская комната обычно совмещает спальню и игровое место. Возле кровати потребуется розетка для ночника и две розетки для дополнительных приборов. Для этой комнаты выбирайте розетки со специальной защитой «от детей», а точнее – от детского любопытства. Отверстия для вилок защищены специальными клапанами и требуются усилия чтобы включить электроприбор в такую розетку.
Розетка для кондиционера размещается на расстоянии 30см от потолка.