Количество шкафчиков в раздевалках. Раздевальни. Общие гардеробы
- Количество шкафчиков в раздевалках. Раздевальни. Общие гардеробы
- Максимальное количество шкафчиков в ряду. Параметры шкафов, устанавливающихся в нижнем ряду
- Минимально необходимое количество шкафчиков в бытовых помещениях.
- Количество шкафчиков в раздевалках нормы. Требования к вспомогательным и бытовым помещениям промышленных предприятий
- Количество шкафчиков на 1 рабочего. Таблиц. 2
Количество шкафчиков в раздевалках. Раздевальни. Общие гардеробы
Проектирование раздевален и гардеробных. Расположение кабин. Требуемая площадь при хранении одежды на вешалках с крючками.
1.Индивидуальные кабины(рис. 2): на одного посетителя 1 кабина размером от 1 х 1 до 1 х 1,2 м.
Площадь раздевальни на 1 кабину 3 — 4,5 м2. Предпочтительное число индивидуальных кабин — до 7% общего числа мест в раздевальне (иначе неэкономично).
2.Кабины для переодевания:
а) с отдельно стоящими шкафчиками (рис, 1 и 3), по 3 — 4 шкафчика на 1 кабину;
б) с общим гардеробом (рис. 4 и 5).
Размеры кабин и площадь раздевальни — по данным для индивидуальных кабин.
Желательное число мест в кабинах — около 53% общего числа мест в раздевальне (такое решение экономично: при небольшом числе посетителей кабины могут быть использованы в качестве индивидуальных).
3.Общие раздевальни:
а) с общим гардеробом (рис. 5). Площадь на 1 место 0,5 — 0,8 м2;
б) со шкафчиками для одежды (рис. 7). Площадь на 1 место 0,5 — 0,8 м2 с добавлением площади на шкафчики; на каждое место — 3 — 4 шкафчика. Размеры шкафчиков — от 30x50 до 40 х 60 см; желательное число мест около 26% общего;
в) без шкафчиков, только с крючками (рис. 6). Применяется для групп постоянных посетителей, требует охраны. Площадь на 1 место 0,5 — 0,8 м2; желательное число мест около 14% общего. Высота раздевальных ≥ 2,8 м.
![]() | ![]() |
1. Кабины для переодевания со шкафчиками. 2. Индивидуальные кабины. Проходы для обутых и босых общие. 3. Кабины для переодевания со шкафчиками для одежды. | 4. Кабины для переодевания с общим гардеробом. 5. Кабины для переодевания и групповая раздевальня с общим гардеробом. |
![]() | 6. Групповая раздевальня с крючками для одежды. 7. Групповая раздевальня со шкафчиками. 8. Групповая раздевальня с делением на две части: для обутых и босых. |
Общие гардеробы.
Устройство общих гардеробов экономично, сокращает строительные затраты и число обслуживающего персонала. Разделение кабины для переодевания на мужские и женские осуществляется при помощи передвижных перегородок или указателей (рис. 1) в соответствии с контингентом посетителей.
Состав посетителей в среднем: 60 — 70% мужчин, 30 — 40% женщин.
Старый тип кабин для переодевания со сдачей одежды в общий гардероб через окошко в стене кабины больше не применяется. Для обслуживания без задержек при неожиданном наплыве посетителей должна быть обеспечена удобная сдача и получение одежды.
Требуемая площадь при хранении одежды на вешалках с крючками (рис. 2): на 1 крючок 0,14 — 0,2 м3 (включая проходы для персонала и посетителей) при расстоянии между крючками 15 см.
В открытых бассейнах — 1 место в раздевальне на 40 посетителей; на каждую кабину или место в раздевальне — 20 крючков, т.е. 30 м вешалки; площадь гардероба 1,72 м2 на одну кабину.
Кабины и вешалки — деревянные или из оцинкованных стальных уголков с заполнением древесностружечными плитами (рис. 3).
![]() | ![]() |
1. Кабины для переодевания с общим гардеробом. Число мужских и женских кабин может меняться путем перестановки указателя. 2. Вешалки в раздевалках. 3. Кабины из древесных плит бассейна в Нордерней. | 4. Плечики и обувная корзина для кабин.
|
Максимальное количество шкафчиков в ряду. Параметры шкафов, устанавливающихся в нижнем ряду
При установке шкафов на кухню в нижний ряд, необходимо уточнить параметры помещения. При этом стиль оформления кухонного гарнитура также может играть значение, при условии, что шкафы будут оснащены нестандартными декоративными элементами.
Размеры, которые необходимо учитывать при разработке чертежа кухни
Однако, существуют стандартные величины, которым мы посвятили данную статью, и их же нам сейчас нужно изучить.
Таблица 1. Стандартные параметры шкафов, устанавливающихся в нижний ряд
| Параметр | Значение |
|---|---|
Общая высота шкафа | Как правило, общая высота шкафов, устанавливающихся вниз, составляет не менее 85 сантиметров. Такой высоты достаточно для обустройства внутри мебели достаточного пространства для хранения различной посуды и прочей кухонной утвари. |
Высота цоколя | Высота цоколя, или по-другому высота расположения шкафов, устанавливающихся в нижний ряд кухни, от полового покрытия обычно должна составлять 10 сантиметров. |
Глубина шкафов | Глубина шкафов нашего кухонного гарнитура, а точнее его нижнего ряда, имеет стандартную величину, равную 46 сантиметрам. Так, если, например, внутрь данного шкафчика устанавливаются ящики, то: Однако, намного более востребованной считается глубина от 56 сантиметров до 58 сантиметров. |
Ширина столешницы | Ширина столешницы, которая устанавливается на шкафы, и служит нам рабочей поверхностью, имеет три стандартизированных размера: |
Толщина столешницы | Толщина устанавливаемой столешницы также может быть представлена несколькими стандартными показателями, а именно: Данный параметр будет напрямую отражаться на крепости и стоимости вашей кухонной мебели. Соответственно, чем толще, тем прочнее. |
Уровень нависания столешницы | Действительно, придется вам оценивать и такой показатель, даже если вы о нем ранее и не подозревали. Так, уровень нависания столешницы может составлять: Если учитывать наличие данного запаса, то можно спокойно разместить за шкафами такие инженерно-сетевые элементы, как: Обычно они проходят именно по стенам, поэтому, чтобы не изощряться и не прятать их, используйте искомое нависание. |
Ширина фасадов | Ширина фасадов – еще один показатель, у которого имеются несколько стандартных размеров. Они будут следующими: Поскольку мебель сейчас изготавливается довольно часто под заказ, как правило, ширина шкафчиков, а вместе с ними и фасадов, действительно разнится. Обратите внимание: не стоит осуществлять установку мебели с величиной ширины фасада, равной более чем 90 сантиметрам, так как столь широкий шкаф будет приносить серьезные неудобства во время использования предмета мебели. |
Высота промежутков между внутренними полками шкафов | Данный параметр составляет обычно: Все будет зависеть от того, какое назначение имеет тот или иной шкафчик. Данные параметры, хоть и являются стандартными, вовсе не обязательны к соблюдению, это вы также должны учитывать. |
Минимально необходимое количество шкафчиков в бытовых помещениях.
Настоящий свод правил составлен в целях повышения уровня безопасности в зданиях и сооружениях людей и сохранности материальных ценностей в соответствии с Федеральным законом от 30 декабря 2009 г. №«Технический регламент о безопасности зданий и сооружений» , выполнения требований Федерального закона от 23 ноября 2009 г. №«Об энергосбережении и о повышении энергетической эффективности и о внесении изменений в отдельные законодательные акты Российской Федерации» , повышения уровня гармонизации нормативных требований с европейскими и международными нормативными документами, применения единых методов определения эксплуатационных характеристик и методов оценки. Учитывались также требования Федерального закона от 22 июля 2008 г. №«Технический регламент о требованиях пожарной безопасности» .
Настоящий документ подготовлен авторским коллективом ОАО «ЦНИИПромзданий» в составе: профессор, д-р техн. наук В.В. Грачев , профессор, канд. техн. наук С.М. Гликин , канд. архитектуры Д.А. Скроб , инж. В.П. Медведева , ОАО «СантехНИИпроект» - Т.И. Садовская .
Изменениек СП 44.13330.2011 выполнено авторским коллективом ООО «Институт общественных зданий» (руководитель работы - канд. архит. А.М. Гарнец , Л.В. Сигачева , И.Р. Домрачева ); «ЦНИИПромзданий» (д-р техн. наук В.В. Гранев , канд. архит. Д.К. Лейкина , канд. техн. наук Т.Е. Стороженко ).
Количество шкафчиков в раздевалках нормы. Требования к вспомогательным и бытовым помещениям промышленных предприятий
К вспомогательным зданиям и помещениям, входящим в состав промышленного предприятия, относятся: заводоуправление, цеховые конторы, бытовые помещения, пункты питания и здравпункты.
Вспомогательные общезаводские помещения различного назначения лучше объединять в одном здании, если позволяют санитарные правила и условия производства.
Минимальная высота вспомогательных помещений должна быть:
а) административно-конторских помещений и помещений конструкторских бюро — не менее 3 м от пола до потолка и не менее 2,5 м до низа выступающих конструкций;
б) уборных, умывальных, гардеробных, душевых, курительных, помещений для личной гигиены женщин, помещений для обеспыливания и обезвреживания одежды — не менее 2,5 м от пола до потолка и не менее 2,2 м до низа выступающих конструкций;
в) остальных помещений бытовых — не менее 2,8 м от пола до потолка и не менее 2,5 м до низа выступающих конструкций.
Естественная освещенность вспомогательных и бытовых помещений нормируется отношением площади окон к площади пола помещений, которое должно быть: в конторских помещениях и помещениям конструкторских бюро от 1 : 6 до 1 : 9; в бытовых помещениях — от 1 : 10 до 1:15.
При расчетах площадей помещений заводоуправления, цеховых контор и конструкторских -бюро следует руководствоваться следующими нормами:
а) для рабочих комнат контор, кроме кабинетов административно-технического персонала — 3,25 м 2 на одного работающего в наиболее многочисленной смене;
г) для раздевальной с вестибюлем — 0,25 м 2 на одного работающего в конторе в наиболее многочисленной смене; при этом в заводоуправлениях к расчетному числу служащих следует прибавлять 10% на посетителей.
Расчеты площадей всех бытовых помещений, за исключением площадей гардеробов рабочей одежды при открытом способе хранения, и гардеробов всех видов одежды при закрытом способе хранения, следует производить на 90% списочного состава работающих в наибольшей смене.
Гардеробные. В производственных условиях необходимо обеспечивать всех работающих удобным хранением одежды. В зависимости от характера производства и числа людей, пользующихся гардеробом, практикуется хранение одежды открытым способом с обслуживанием гардеробщиками, закрытым (в индивидуальных шкафчиках), а также смешанным способом.
Закрытый способ хранения одежды с самообслуживанием допускается при количестве работающих не более 100 человек в наиболее многочисленной смене.
На судостроительных и судоремонтных предприятиях в большинстве случаев устраиваются гардеробы с индивидуальными шкафчиками, и реже — с открытым или комбинированным хранением.
Расчетное количество мест для хранения рабочей одежды при открытом способе хранения, а также число мест для всех видов одежды при закрытом способе хранения определяется суммарным числом работающих в двух смежных наиболее многочисленных сменах, если перерыв в работе этих смен равен или менее 30 мин.; при более длительном перерыве — по числу работающих в наиболее многочисленной смене плюс 25% работающих в смежной наиболее многочисленной смене.
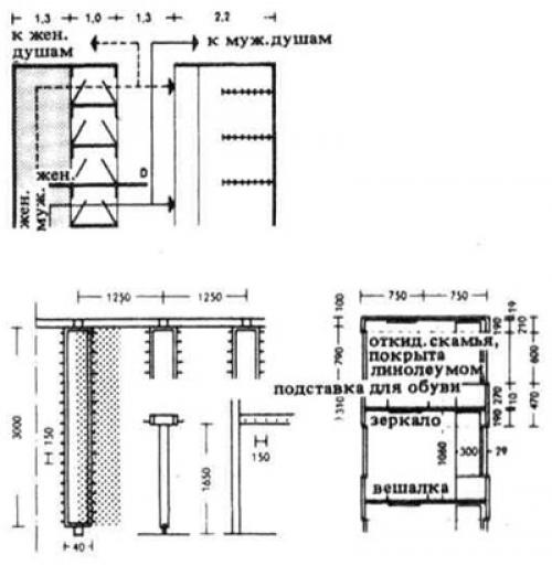
Оборудование гардеробов в отношении размеров должно отвечать следующим требованиям:
а) свободная высота вешалки должна быть не менее 1,35 м; количество крючков на вешалке принимается из расчета 7 крючков на 1 м вешалки;
б) открытые шкафы должны иметь размеры: ширину 20 см, глубину 25 см и высоту не менее 1,5 м;
в) закрытые шкафы должны иметь размеры в осях одинарные— ширину 30 см и глубину 35 см; двойные — ширину 50 см и глубину 35 см.
Внутренняя высота одинарных и двойных закрытых шкафов должна быть не менее 1,7 м, включая места для хранения обуви п головных уборов.
Количество шкафчиков на 1 рабочего. Таблиц. 2
Ширина эвакуационных выходов
Наружные выходы из вспомогательных зданий в районах с расчетной температурой воздуха минус 20оС и ниже должны иметь тамбуры шириной не менее 1,2 м. В зданиях, возводимых в районах срасчетной температурой воздуха ниже минус 30оС, тамбуры должны быть двойными.
Площадь вестибюля следует принимать из расчета 0,2 м2на одного человека, пользующегося вестибюлем, а на предприятиях, строящихся в северной климатической зоне, – из расчета 0,25 м2на человека, но не менее 18 м2.
В многоэтажных зданиях при разнице отметок пола вестибюля и верхнего этажа 12 метров и более следует предусматривать пассажирские и грузопассажирские лифты. Количество лифтов принимают в зависимости от числа работающих, но, как правило, не менее двух.
4. СОСТАВ ВСПОМОГАТЕЛЬНЫХ ПОМЕЩЕНИЙ
И ОСНОВНЫЕ ПЛАНИРОВОЧНЫЕ ТРЕБОВАНИЯ К НИМ
Состав вспомогательных помещений, их площади и оборудование принимаются в зависимости от общего списочного состава работающих (А), количества работающих в наиболее многочисленную смену (В), процентного соотношения мужчин и женщин, а также санитарной характеристики производственных процессов.
4.1. Санитарно-бытовые помещения
В состав санитарно-бытовых помещений входят: гардеробные, душевые, умывальные, уборные, курительные, места размещения полудушей, устройства питьевого водоснабжения, помещения для обогрева и охлаждения рабочих, обработки, хранения и выдачи спецодежды и т.д.
4.1.1. Гардеробные
При проектировании гардеробных блоков необходимо стремиться к предельной компактности. Основой планировочного решения должно быть четкое разделение людских потоков, идущих на работу и с работы, возможное сокращение контактов между людьми, проходящими разные этапы обслуживания (одетыми и раздетыми, прошедшими и прошедшими душевую и пр.).
Гардеробные рекомендуется располагать на первом этаже административно-бытового корпуса в непосредственной близости от переходов в производственное здание. Количество шкафов для хранения домашней, уличной и специальной одежды рассчитывается по общему штату.
В зависимости от санитарной характеристики производственного процесса гардеробные могут быть общие (с совмещенным или раздельным хранением одежды) или раздельные (с жестко раздельным хранением одежды в разных помещениях).
Для работающих на производствах с санитарными характеристиками 1а и 3а предусматриваются общие гардеробные с совместным хранением всех видов одежды в шкафах на одно отделение.
Для работающих на производствах с санитарной характеристикой 1б, 2а и 2б также предусматривают общий гардероб, но с хранением домашней и уличной «чистой» одежды и рабочей «грязной» одежды в двух рядом стоящих шкафах.
Жестко раздельный способ хранения одежды (в смежных помещениях) применяют при производствах с санитарной характеристикой 1в, 2в, 3б и 3г. Совместное хранение домашней и специальной одежды в одном помещении невозможно в следующих случаях:
– когда производство требует особого режима по чистоте с целью обеспечения качества продукции;
– когда производство сопровождается загрязнением спецодежды, выделением вредных или сильно пахнущих веществ и пр.
Ширина шкафов принимается по табл. 4.1. Все шкафы оборудуются откидными скамьями шириной 250 мм. Скамьи допускается не предусматривать только при группе производственного процесса 1а.
Геометрические параметры, минимальные расстояния между осями и ширину проходов между рядами оборудования бытовых помещений следует принимать по табл. 4.1.
Гардеробно-душевые блоки проектируют отдельно для мужчин и женщин. Входы в гардеробно-душевые блоки, размещаемые смежно с вестибюлями, осуществляют через тамбуры.
При гардеробной уличной и домашней одежды или общих гардеробных обычно предусматривают:
– площадь для расположения дежурного персонала из расчёта 1 м2на 100 работающих в наиболее многочисленной смене;
– площадь для глажения одежды, чистки обуви, бритья, сушки волос и маникюрных из расчета 2 м2на мужчин и 3 м2на 100 женщин, работающих в наиболее многочисленной смене;
– уборную на 1–2 унитаза, если на расстоянии до 30 м от входа в ГДБ не предусмотрена уборная общего пользования;
– специальные бытовые помещения, связанные с группой производственного процесса.




