40 кв метров это сколько. Как рассчитать квадратные метры стен комнаты, расчет площади стен
- 40 кв метров это сколько. Как рассчитать квадратные метры стен комнаты, расчет площади стен
- 150 квадратных метров это сколько. 150 квадратных метров сколько это соток
- Что такое сотка земли размеры
- Таблица для перевода соток в квадратные метры
- 150 квадратных метров сколько это соток
- 150 квадратных метров сколько это соток
- 6 соток — сколько это квадратных метров
- Сколько квадратных метров в сотке
- Как рассчитать сотки земли на участке? Чему равна сотка
- Сколько соток в одном гектаре земли
- Сколько квадратных метров в сотке
- 28 квадратных метров это сколько. Уютная квартира площадью 28 кв метров в закладки
- Видео дизайн квартира 40 кв м - вся правда!
40 кв метров это сколько. Как рассчитать квадратные метры стен комнаты, расчет площади стен

Приведу пример расчета пола и стен комнаты (кухни) в квадратных метрах.
Формула расчета простая, S = a*b, где S - площадь, а и b - соответственно, длина и ширина комнаты.В нашем примере (рисунка с обмерами) вместо маленьких букв длина - А и ширина - Б., и противоположенных стен - Г и В.
Чтобы рассчитать площадь комнаты по полу:
- если у нас длина комнаты 5 метра, а ширина 3 метров, тогда нам надо ( 5*3 = 15 кв.м.), в итоге получаем 15 кв.м. по полуЧтобы рассчитать площадь комнаты по стенам:
Надо с начало сложить длины всех четырех сторон комнаты А + Б + Г + В и умножить на высоту потолка комнаты h, ( А + Б + Г + В)* h- если у нас длина комнаты 5 метра, а ширина 3 метров, а высота потолка комнаты к примеру 2,5 метра, тогда надо ((5+3+5+3)*2,5= 40 кв.м.), в итоге получаем 40 кв.м. по стенам.Но это еще не все, для того чтобы получить чистые квадратные метры стен комнаты для ремонта и, надо из полученного вычесть двери и окно.
К примеру:
- если у нас размеры окна ширина 1,6 метров, а высота 1,5 метров.- а двери ширина 0,8 метров, а высота 2,05 метров.Окно: (1,6*1,5)= 2,4 кв.м., в итоге окно получаем 2,4 кв.м.,Двери: (0,8*2,05)= 1,64 кв.м, в итоге двери получаем 1,64 кв.м.,Осталось вычесть от (40-2,4-1,64)= 35,96 кв.м.,ИТОГО: Получили 35,96 кв.м. по стенам комнаты.
Если вы не хотите в ручную рассчитывать площадь стен или вы, что то не поняли при описание расчетов, то вы можете воспользоваться нашим калькулятором и рассчитать площадь стен автоматически.
Для расчёта необходимо измерить в метрах длину, ширину комнаты и высоту потолка и внести данные по порядку заполнив форму и вы автоматически получите расчет площади стен в квадратных метрах.
Калькулятор расчёта площади стен
Примечание:
Обращаем ваше внимание, что измерения необходимо проводить в метрах. Т.е. если вы получили длину комнаты 964 сантиметров, то в поля формы необходимо ввести значение 9.64. Обратите внимание, что дробные числа нужно вводить с точкой , а не с запятой!
Т.е. 2,6 — неправильно , 2.6 — правильно
Калькулятор рассчитывает только площадь стен , но без учета и вычета площади окон и дверей, для этого надо еще раз повторить расчеты на площадь окон и дверей описанные выше.
К примеру:
- если у нас размеры окна ширина 1,6 метров, а высота 1,5 метров.- а двери ширина 0,8 метров, а высота 2,05 метров.Окно: (1,6*1,5)= 2,4 кв.м., в итоге окно получаем 2,4 кв.м.,Двери: (0,8*2,05)= 1,64 кв.м, в итоге двери получаем 1,64 кв.м.,Осталось вычесть от (от полученных расчетов автоматического калькулятора (площадь чистых стен) -2,4-1,64 (Окно и двери)= получим площадь стен с учетом вычета Окон и двери помещения (комнаты) в кв.м.,
Чтобы рассчитать площадь комнаты по полу : воспользуйтесь нашим Калькулятором , чтобы расчитать.
Калькулятор рассчитывает не только площадь пола или потолка , а также данный калькулятор можно использовать для расчёта площади любых других прямоугольных объектов у которых есть длина и ширина. В этом случае вместо ширины и длины комнаты вам необходимо подставить значения ширины и длины этих самых объектов (окна, двери и т.д.,) к примеру таких как площадь окон и дверей .
150 квадратных метров это сколько. 150 квадратных метров сколько это соток
- В итоге получились следующие значения: длина = 44 метра, ширина = 21 метр.
- По той же формуле вычисляем: S = a * b, т.е. 44 * 21 = 924 квадратных метра.
- Делим полученное значение на 100. Итого, мы получаем 9,24 сотки — именно такого размера будет наш второй участок.
Что такое сотка земли размеры
Площадь участка земли длиной 100 метров и шириной 100 метров — это и есть участок в 1 га (гектар). Или 1 га = 10000 м 2. Формула площади прямоугольника — S = a x b, где а — ширина, в — длина, S — площадь прямоугольника. Зная размеры участка земли в метрах (длину и ширину), легко определить его площадь. Если при вычислении результат будет больше 10000 квадратных метров, значит, участок имеет площадь дольше 1 га. Разделив полученный результат на 10000, получаем размер площади в гектарах (га). На площади в 1 км 2 можно разместить 100 участков по 1 га (гектару). Очевидно, что 1 га — это удобная единица измерения площади участка, размеры которого (длина и ширина) не превышают 1000 метров.
Таблица для перевода соток в квадратные метры
Беру длинную рулетку выезжаю на природу и измеряю по факту, бац, не сходится. Видетели столбики потерялись, когда это было, геодезист был пьян, так вот часть территории отжал случайно сосед с забором, с другой стороны по моей родной земельке уже давно положен асфальт и проложена главная автомобильная дорога.
150 квадратных метров сколько это соток
При покупке участков часто выясняется, что многие мои клиенты не знают, что подразумевает под собой определенное значение, порой даже не внесистемное, а вполне привычное (например, 1га). В таком случае я объясняю, что никто не будет считать участковые размеры по 10м (допустим, сотая часть числительного) – объем полученных результатов будет огромный, удобства никакого. В метрах у вас отлично будет получаться посчитать размер теплицы.
150 квадратных метров сколько это соток
Чтобы наглядно представить, как выглядит площадь сотки земли, необходимо сделать 13-14 шагов по прямой линии, и еще столько же – под углом в 90 градусов к ней. Зрительно очертив квадрат, легко увидеть размер сотки земли в метрах, и что примерно можно возвести на земельном участке такого размера.
6 соток — сколько это квадратных метров
На такой территории охота разместить много всего, но прежде чем необдуманно сажать кусты и деревья, стоит создать небольшой проект, в котором заключается то, что вы желаете иметь на данном участке. План нужен для того, чтобы определенное пространство выглядело красивым, правильно оформленным, а имеющиеся постройки не нарушали следующих правил.
Сколько квадратных метров в сотке
При оформлении покупки земельных наделов (участков), как правило, выясняется, что большинство покупателей не имеют представления о том, что означает определённое, вполне, казалось бы, привычное значение, и вопрос, это сколько – сотка, нередко можно услышать даже в кадастровой палате. В таких случаях следует сразу объясниться с покупателем ещё на стадии предложения, что участковые размеры в нашей стране не принято считать по метрам. В метрах хорошо получится посчитать лишь размер небольшой теплицы.
Как рассчитать сотки земли на участке? Чему равна сотка
Измерение правильно начинать с замера сторон участка. Забив по углам участка колышки, при помощи рулетки, делаете точные их замеры в длину и ширину. Если участок правильной геометрической формы, то понадобятся только две его стороны — длина и ширина. Результаты измерений лучше записать в блокнот или занести в компьютер.
Сколько соток в одном гектаре земли
Меры измерения территории у каждого народа были свои, что создавало неудобства при внешней торговле. В России первыми измерениями были верста, миля, десятина, аршин и квадратная сажень . С целью устранения неудобств обществом было принято решение создать всеобщую меру измерения участков земли.
Сколько квадратных метров в сотке
На самом деле все просто. Сотка — это разговорная мера площади участка, которую принято употреблять в нашей стране. В действительности это так называемый ар — внесистемная единица измерения площади, равная площади квадрата со стороной 10 м. Таким образом получается, что сотка — это квадрат, длина стороны которого составляет 10 метров, а площадь — 100 квадратных метров (умножаем одну сторону на другую).
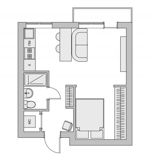
28 квадратных метров это сколько. Уютная квартира площадью 28 кв метров в закладки
Объектом для работы послужила малогабаритная однокомнатная квартира площадью 28,8 квадратных метров. С помощью зонирования удалось выделить отдельное пространство для спальни, условно изолируемое благодаря декоративной шторе, и кухню-гостиную с внутренним делением на кухонную и диванную зоны. Так же за счет изменения первоначальной планировки, в коридоре появилась возможность разместить шкаф для верхней одежды. Помимо этого, удалось спроектировать подсобное помещение, где расположилась стиральная машина и небольшая система хранения. Это позволило освободить и без того скромную ванную комнату от нагромождения техники. Год реализации – 2014. Автор – Мария Дадиани.












Ольга Морозова
Второй интерьер Марии, который я вижу. И снова Браво!
Прекрасное зонирование. Качественно выполненные строительные работы. Хорошего качества мебель и аксессуары! Люстры – прелесть!!! Стилевое и цветовое единство делает пространство визуально больше.
Шкафы встроены. За счёт этого, они, буквально, растворены в пространстве и не давят. Причем места для хранения вещей весьма много для такой крошечной квартиры! Единственное, на что я бы не решилась – потеря довольно большого объема пространства при устройстве ниши-стеллажа (если только ниша не была там изначально). Хотя, такое решение, безусловно, обеспечивает отсутствие выступающих углов, вообще, лишних предметов мебели. Изящное решение.
Очень нравится ковровая укладка плитки в прихожей. Это очень красиво. Наличие многих мелких элементов также работает на визуальное расширение пространства. Этот же эффект – в ванной комнате.
Зеркала удваивают свет и объем. Очень красивы и очень интеллигентны.
Благородный серовато-бежевый цвет текстиля и оттенок пола смягчает контрасты и добавляет уюта.
Все очень красиво и очень изысканно.