Как сделать из комнаты кухню и комнату. Особенности устройства комнаты вместо кухни
- Как сделать из комнаты кухню и комнату. Особенности устройства комнаты вместо кухни
- Как сделать из комнаты студию звукозаписи. Как сделать домашнюю студию звукозаписи
- Как сделать из комнаты студию с санузлом. Осторожно! Как отдельная квартира превращается в несколько студий. Часть I.
- Как сделать из комнаты 18 кв м спальню и гостиную. Оформление поверхностей
- Видео превращаем одну комнату в две - Удачный проект - Интер
Как сделать из комнаты кухню и комнату. Особенности устройства комнаты вместо кухни
В связи с этим возникает вопрос, а возможно ли при устройстве кухни-ниши из бывшего помещения кухни сделать жилую комнату? Такая возможность действительно существует. Однако официально реализовать подобное возможно только если квартира расположена на последнем этаже в доме с электрическими плитами.
В частности, в Постановлении Правительства №47 от 28.01.2006 имеется пункт 24, запрещающий размещать кухни над жилыми комнатами. То есть если в квартире вместо кухни организовать комнату, то получится, что над этой комнатой окажется кухня соседей сверху. В большинстве жилых домов квартиры, расположенные друг над другом, имеют идентичные планировочные решения.
Поэтому сделать из кухни жилую комнату возможно только в квартирах последних этажей. Соответственно, если квартира находится не на последнем этаже многоквартирного дома, согласовать устройство жилой комнаты по документам не получится.
Впрочем, и на последнем этаже сделать из кухонного помещения жилое возможно не всегда. Если дом газифицирован, то перенести кухню с газовой плитой в коридор нельзя, так как снабженные газовым оборудованием кухни никуда не разрешат перенести. Заменить плиту на электрическую, на практике, крайне редко возможно по техническим причинам. Если обрезать газовую трубу и поставить заглушку, для надзорного органа это все равно не будет догмой, так как несмотря на заглушку, газ в квартиру все же поступает. Следовательно, помещение все еще считается газифицированным.
Из всего выше сказанного следует, что согласовать перепланировку с устройством жилой комнаты на территории кухни возможно при одновременном соблюдении следующих условий:
- Дом не должен быть газифицирован.
- Квартира должна находиться на последнем этаже.
Как мы уже отмечали, из-за невозможности выполнения данных условий, такая перепланировка проводится крайне редко. В большинстве же случаев при переносе кухни в коридор, освободившееся помещение сохраняет нежилой статус, а в проекте перепланировки и в плане БТИ его называют, например, гардеробной, построчной или кладовой. То есть в экспликации к поэтажному плану квартиры, составленных в БТИ после обмеров, бывшее помещение кухни будет числиться нежилым, а по факту собственники в нем могут разместить любую мебель.
Как сделать из комнаты студию звукозаписи. Как сделать домашнюю студию звукозаписи
Звукорежиссеру необязательно снимать отдельное помещение, оборудованное самой дорогой техникой. Уголок звукозаписи можно организовать в небольшой квартире. Важно со всей серьезностью отнестись к акустическим свойствам комнаты и собственному оборудованию.

Инструкция
1
Шумоизоляция. Соседи не поймут, если вы даже изредка будете записывать полноценную ударную установку или работающую в полный звук электрогитару . Кроме того, разговоры за стеной отразятся и на вашей работе в виде шумов и неприятных фонов. Чтобы не досаждать ни окружающим, ни себе, обейте стены одеялами, войлоком, заставьте многослойными пластиковыми окнами.
2
Компьютер. Особых требований к нему звукорежиссура не предъявляет, но звуковая карта должна быть хорошей , из класса «профессиональных» («музыкальных»). Встроенная или даже игровая карта не подойдут. Ценовой диапазон таких карт варьируется от 3000 до 5000 р. и выше.
3
Программное обеспечение. Звуковых редакторов, плагинов и других виртуальных средств звукозаписи в современном мире очень много. Для освоения посещайте специализированные курсы, ищите сайты, посвященные созданию музыки в студийных условиях и в электронных стилях.
4
USB-интерфейс. Это внешнее устройство, соединяющее внешнюю звуковую карту с компьютером. В отличие от встроенной карты, внешняя не зависит от шумов в компьютере и потому не требует дополнительной обработки звука после записи. Есть и другие плюсы, которые вы заметите при сравнении звука, записанного с карт одного и с другого типа.
5
Предусилитель. Преамп предпочтителен ламповый, основанный на полупроводниковой схеме. Благодаря этому звук становится более красивым, чистым, богатым. Это заметно как при вокальной, так и при инструментальной записи.
6
Микшерский пульт. Его назначение – облегчение работы с несколькими источниками звука одновременно. Он облегчает как саму запись, так и сведение трека, позволяет менять частоты и громкости каждого голоса отдельно. В любой студии он необходим, и вам тоже стоит озаботиться такой покупкой.
7
Портативная студия может служить альтернативой всем перечисленным аппаратам. В ней уже есть и встроенный процессор, и пульт, и драм-машина, и другие опции. Для работы с ней просто подключите источник звука, нажмите кнопку записи – работайте!
8
Микрофон. Существует два основных вида – динамический и конденсаторный, различаемые по способу образования звука. Второй тип отличается большей чувствительностью, но не качеством. Для конкретного случая записи лучше иметь микрофоны обоих типов.
9
Наушники. От их качества зависит восприятие записываемого трека звукорежиссером, поэтому важно выбрать достаточно мощную акустическую систему. Новичкам подойдут фирмы M-Audio, Behringer, и Shure. По мере накопления опыта вкус у вас приобретет индивидуальные черты, и вы поймете, какая акустика подойдет именно для вашего стиля.
Как сделать из комнаты студию с санузлом. Осторожно! Как отдельная квартира превращается в несколько студий. Часть I.
Все хотят свое жилье. И не комнату в коммуналке, а отдельную квартиру. Пусть и маленькую. И чтоб дешево.Одна такая желающая мне рассказывает:"Я позвонила по объявлению. Продается квартира 16 метров, а мне говорят, что ее….нет. Пока есть одна большая квартира, которую разделят на четыре маленькие. Когда найдутся покупатели на все части. Делается ремонт, как-то разводятся коммуникации, что у каждого будет санузел. Покупатели получают долевую собственность. Но как-то оформляется, чтобы без проблем продать можно было , что другие пишут отказ. Пока посмотреть можно шоу рум. Стоит покупать такую? А если захочу "квартиру" продать, какие трудности меня ожидают? И непонятно что я покупаю - долю квартиры или отдельную студию?"

Постараюсь Вам объяснить. В Москве и крупных городах - Екатеринбурге, Томске, Омске, может ещё в других, работают компании, которые продвигают данный проект и зарабатывает на этом очень хорошие деньги. В своих презентациях они говорят, что за месяц получают до миллиона рублей чистой прибыли. Суть вот в чём.
Находят не ликвидную трёх-четырёхкомнатную квартиру с большой кухней на первом или втором этаже над нежилым помещением. Договариваются с собственниками этого жилья, что квартиру продадут ни как целый объект, а по долям. На этом этапе сложностей не возникает, потому что ни для кого не секрет, что многокомнатные квартиры продаются дольше, чем одно-двухкомнатные и собственникам уже всё равно как продавать, только бы побыстрее.

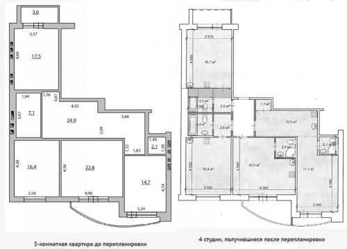
Делают красивые картинки с планом этой квартиры, поделенной на студии(каждая комната и кухня - отдельная студия).Называют ярко каждое помещение (Венеция, Кипр, Аргентина и т.д.) и запускают рекламу, но ни как долей, а как отдельных студий. Получается, что цена у квартиры целиком высокая, а у студий - низкая. А вот купить заветные квадратные метры недорого желающих много, к тому же это не какая-нибудь там коммуналка, а полноценная квартира с удобствами, хоть и малогабаритная. Вот так выглядит перепланированная трехкомнатная квартира.

Так вот, собираются желающие приобрести такие "студии" (в квартире получается три-четыре), подписывается предварительный договор, где за каждым закрепляется отдельная студия и прописывается обязательство отремонтировать и перепланировать в оговоренные после сделки сроки. И потом в один день покупателей приглашают на сделку купли-продажи. И вот тут самое интересное: когда Вы смотрели рекламу, Вам предлагали студию т.е. самостоятельную квартиру, а покупаете Вы уже ДОЛЮ В КВАРТИРЕ. Поэтому в данном случае речи быть не может об ипотеке, материнском капитале и других финансовых субсидиях, только наличные. В день сделки сособственники пишут нотариальный отказ от преимущественного права покупки, для чего он - чуть позже.
Итак, все покупатели приобрели и с огромной радостью заселились в свои студии и стали жить-поживать да добра наживать А теперь риски. Положим в один прекрасный момент хозяин "студии" добра нажил столько, что решил продать своё чудо-жильё и купить отдельную квартиру. Чтобы продать нужны отказы соседей от преимущественного права покупки, а они уже есть, их на сделке все подписали, НО обычно такие бумаги составляют за месяц до предполагаемой продажи. Продавец сообщает о своем намерение продать долю имущества за определенную цену и предлагает выкупить её сособственникам, т.к. у них преимущественное право покупки этой доли. Сособственники либо пишут отказ, либо если за месяц доля не выкупается сособственниками, то владелец вправе продать долю третьим лицам, но по той стоимости, которая указана в письме. И вот тут неизвестно сколько лет прошло, что за это время произошло с ценами и примет ли нотариус такие древние отказы, которые подписывались на изначальной сделке. Так что вполне вероятно, что отказы придется получать заново. Вот отзыв жительницы такой студии из Томска.

И это ещё не все подводные камни такого жилья. Продолжение темы читайте ТУТ .
Как сделать из комнаты 18 кв м спальню и гостиную. Оформление поверхностей
Дизайн гостиной спальни 18 кв. м предполагает тщательное продумывание отделки стен, потолка и пола. За счет цвета, материалов и текстуры покрытий достигается эффект разграничения. Но в то же время палитра должна гармонировать, резкие переходы недопустимы. В противном случае не избежать загруженности пространства, визуального уменьшения комнаты. На небольшой площади рекомендуется использовать отделочные материалы светлых, природных оттенков. Мягкое отражение света увеличивает пространство, наполняет воздухом и солнечными бликами.
В спальне-гостиной потолок желательно сделать сложной конструкции. Для гостевой зоны оптимально будет использовать глянцевые покрытия, как вариант подвесные потолки, ограниченные бордюром с подсветкой. Центральная часть отводится под люстру. В зоне отдыха потолок выполняется в лаконичном стиле — однотонная светлая покраска, минималистичные бордюры.
В отделке стен стоит руководствоваться теми же правилами, что и в дизайне потолка. Гостевая зона — светлые обои, фактурная штукатурка, редкие рисунки. Для «спальни» подбираются те же оттенки, только в другой текстуре. Интересно смотрится мягкая стена в изголовье кровати или дивана-скамьи. Такой интерьер располагает к расслаблению и отдыху.

Пол — единственная часть совмещенной со спальней гостиной , которая может иметь одинаковое покрытие. Светлый паркет, ламинат или линолеум, имитирующий дерево расширяет пространство и подчеркивает единый дизайн комнаты. В спальной зоне часто стелется ковролин или пробка, совпадающие по цвету с общим покрытием. Особенно интересно смотрится мягкий пол в дизайне комнаты с подиумом или чердачным расположением кровати.