Ленточный фундамент своими руками пошаговая инструкция. Определение ленточного фундамента
- Ленточный фундамент своими руками пошаговая инструкция. Определение ленточного фундамента
- Фундамент 6 на 6 своими руками. Разметка участка под фундамент.
- Ленточный фундамент частного дома своими руками.
- Самый дешевый фундамент своими руками. Мелкозаглубленный ленточный фундамент
- Ленточный фундамент калькулятор. Расчёт фундамента
- Ленточный фундамент чертеж. План ленточного фундамента, чертеж
- Ленточный фундамент чертеж разрез. Армирование фундаментной ленты
Ленточный фундамент своими руками пошаговая инструкция. Определение ленточного фундамента
Ле́нточный фундамент представляет собой замкнутый контур из разных материалов, возводимый под всеми несущими стенами здания и передающий подлежащему грунту нагрузку от здания.
Рассмотрим его преимущества и недостатки и таким образом наглядно подтвердим его привлекательность.
Преимущества ленточного фундамента
- Его несущая способность не меньше, чем у монолитной плиты, а устойчивость к разнонаправленному воздействию немногим меньше.
- Его можно строить на самом разном рельефе.
- Его возведение — отнюдь не бином Ньютона, и каждый владелец участка сможет с этим справиться.
- При соблюдении технологии ленточный фундамент очень долговечен.
- Он даёт возможность сразу обзавестись тёплым подполом или даже подвалом.
- «Лента» гораздо дешевле монолита.
- Из большого разнообразия разновидностей «ленты» можно выбрать ту, которая больше всего вам подходит.
Недостатки ленточного фундамента
- «Лента» не справляется на некоторых грунтах (плывунах, болотах, иле).
- Существенное ограничение для монолитных «лент» — они должны быть залиты в один день, и если фундамент большой, то своими руками размешать такое количество бетона невозможно.
- Существенное ограничение для «лент» из тяжёлых строительных блоков — их можно ставить только с помощью строительной техники.
Как мы видим, недостатки вчистую проигрывают преимуществам.
Фундамент 6 на 6 своими руками. Разметка участка под фундамент.
Для того, чтобы правильно разметить участок, нужно задать базу относительно основных точек участка: забор, другие строения, сад и т.п. Затем нужно выставить приблизительные размеры фундамента, но обязательно с запасом. На всей площади предполагаемой застройки нужно в обязательном порядке снять плодородный слой.
Разметка участка под фундамент
После этого делается окончательная и точная разметка фундамента с точностью до сантиметра.
Важно! Осевые размеры и диагонали всего строения и каждой из комнат должны совпадать.
4. Рытье траншеи.
Чтобы вырыть траншею для будущего фундамента, потребуется 1 рабочий день, если делать все своими руками в одиночку.
На песчаных грунтах и суглинках достаточно углубиться на 30 см в землю, а остальную часть фундамента лучше возвысить над землей на 60-100 см. Эта мера препятствует проникновению влаги в будущий дом.
Рытье траншеи
На глинистых грунтах лучшим решением будет буронабивной фундамент, который обвязывается бетонным ростверком. Для этого нужно сделать буром или при помощи буровой машины отверстия в грунте на глубину ниже глубины промерзания. В полученные отверстия закладывается рубероид для гидроизоляции, устанавливается арматура и заливается бетон.
Необходимо оставить выпуски арматуры, чтобы впоследствии связать ее с арматурой ростверка. Затем роется траншея по периметру, но не более 30 см вглубь. Арматура столбов обвязывается с арматурой траншеи, ставится опалубка и заливается лента фундамента.
Важно! Если участок не ровный, то в самой высокой точке высота опалубки должна быть не менее 60 см.
Таким образом получится высокий фундамент. Если же производить замеры от нижней точки, то высота фундамента будет достигать не более 30 см, чего недостаточно.
Для отбивки высот можно использовать водяной уровень, но лучше и точнее будет приобрести или арендовать невелир.
Ленточный фундамент частного дома своими руками.
Требования, предъявляемые к фундаменту, весьма высоки.
Прочность и надежность основания относятся к основным, но не единственным задачам, возлагаемым на опорные конструкции.
Ленточный фундамент способен выполнять свои функции в различных условиях, что подтверждено многовековыми исследованиями.
Высокая популярность ленты обусловлена оптимальным сочетанием несущей способности и экономичности, простоты и долговечности.
Основным достоинством считается возможность самостоятельного возведения.
Виды
Ленточный фундамент представляет собой сплошную замкнутую опорную конструкцию, расположенную под всеми внешними и внутренними несущими стенами. Фактически, это — заглубленный цоколь, способный выдерживать нагрузки от веса здания, давление грунта и прочие воздействия.
Существуют следующие разновидности ленточного фундамента :
- Монолитный. Представляет собой цельную отливку из железобетона, имеет максимальную прочность и несущую способность.
- Сборный. Лента строится из отдельных фрагментов или элементов — фундаментных блоков (ФБС), кирпича, природного камня и т.д. Эксплуатационные качества этого типа основания несколько ниже, чем у монолитной ленты.
- Комбинированный. Представляет собой сочетание ленточного основания с другим типом — например, свайно-ленточный. Позволяет получить опорные точки, на которых устанавливается несущий пояс.
Кроме того, существуют разновидности по :
- Незаглубленный. Создается на абсолютно неподвижных грунтах — скалах, прочных устойчивых почвах. Встречается крайне редко.
- Мелкозаглубленный. Используется для строительства на прочных почвах, не подверженных морозному пучению. Глубина заложения меньше уровня зимнего промерзания грунта.
- Заглубленный. Глубина заложения такой ленты несколько ниже уровня промерзания грунта. Используется для самых массивных и тяжелых построек, годится для большинства типов грунта и гидрогеологических условий.
Выбор подходящего типа обусловлен анализом всех условий участка — составом грунта, количеством и свойствами слоев, глубиной залегания почвенных вод и т.д.

Для каких построек он подходит
Ленточные основания являются надежной опорой для зданий из различных материалов:
- Дерево.
- Пено- и газобетон.
- Кирпич.
- Бетонные плиты.
Материал и количество этажей определяют вес здания, от которого зависят расчетные параметры ленты — степень заглубления и толщина. Наряду с особенностями грунта, параметры здания являются основным материалом для выполнения инженерных расчетов при проектировании.

как рассчитать глубину
ленточного фундамента зависит от типа основания. е сли планируется строительство варианта, то необходимо опираться на табличные данные снип, отображающие глубину промерзания грунта в данном регионе.При строительстве мелкозаглубленного типа ленты учитывается состав грунта, наличие и глубина залегания грунтовых вод. К оптимальной глубине принято относить 0,75-1 м, но на устойчивых и сухих грунтах глубину можно немного уменьшить.
ОБРАТИТЕ ВНИМАНИЕ!
Наиболее распространенной глубиной погружения мелкозаглубленной ленты считается 0,7 м.
Как устроен мелкозаглубленный ленточный фундамент
практически полностью повторяет заглубленный вариант, только с меньшим уровнем погружения.Присутствует траншея, в которой создается дренажный слой засыпки и заливается бетонная лента .
Конструкция основания имеет меньшие возможности, чем полноценная лента, но, для относительно небольших малоэтажных построек ее несущей способности вполне хватает.

Пошаговая инструкция по монтажу своими руками
Рассмотрим порядок действий при создании ленточного фундамента :
- Подготовка.
- Разметка участка.
- Рытье траншеи.
- Укладка и обустройство дренажной системы.
- Создание песчаной подушки .
- Изготовление опалубки.
- Установка арматурного каркаса.
ВАЖНО!
Порядок действий не меняется практически ни при каких обстоятельствах, поскольку все этапы являются следствием предыдущих операций.
Разметка поверхности
Начало работ состоит в удалении верхнего слоя почвы и разметке участка. Для этого используются деревянные колья, которые устанавливаются на точках пересечения или угловых точках будущей траншеи.
Ширина выбирается исходя из расчетных параметров основания, но не менее 20 см больше, чем у ленты. Это важно, так как внутрь траншеи надо будет установить опалубку, а впоследствии — обеспечить достаточную толщину слоя засыпки пазух.
Самый дешевый фундамент своими руками. Мелкозаглубленный ленточный фундамент
Для деревянного, каркасного, пенобетонного или иного «легкого» дома с подвалом или погребом подойдет малозаглубленный ленточный фундамент . Он почти не уступает в прочности заглубленному, но при этом обходится приблизительно на треть дешевле. Что объяснимо — погруженный в грунт на 0,3–0,5 м, а не на 1,5–1,8 м, он требует намного меньше трудозатрат и материалов. Еще один ощутимый плюс данного основания в том, что его можно использовать почти на всех грунтах, кроме разве что чрезмерно пученистых.
Мелкозаглубленный ленточный фундамент лучше не оставлять ненагруженным на зиму. Это может привести к его деформации под воздействием сил морозного пучения

Рассмотрим технологию создания малозаглубленной «ленты». Прежде всего, необходимо вырыть траншею расчетной глубины (которая обычно составляет 0,7 м) и засыпать на дно противопучинную подушку толщиной 0,3 м. При этом нижний слой 0,2 м делают из крупного песка, а верхние 0,1 м — из смеси песка со щебнем. Основание утрамбовывают, а потом покрывают водонепроницаемой пленкой. Она нужна для того, чтобы во время заливки смеси цементное молочко из бетона не просачивалось в песок.
Далее устанавливают деревянную опалубку и закрепляют с внутренней ее стороны листы рубероида. Тогда цемент не вытечет через щели между досками. Кроме того, эта мера заметно облегчит разборку опалубки и предотвратит порчу пусть и недорогого, но все же не бесплатного пиломатериала. Потом его можно будет использовать вновь.
Наконец, внутри опалубки устанавливают арматуру и заливают раствор. Спустя всего две недели на таком основании уже можно будет возводить стены.
Ленточный фундамент калькулятор. Расчёт фундамента
- Ленточный фундамент
- Плитный фундамент
- Расчёт объема котлована
- Калькулятор отмостки

Результаты подсчетов в нужном формате можно скачать на ПК или устройство, либо же отправить по электронной почте на свой e-mail или e-mail вашего проектировщика/сметчика. Это рекомендуется делать, чтобы сверить со специалистом результаты и дополнительно проконсультироваться перед покупкой материалов.
Ленточный фундамент калькулятор. Расчёт фундамента
С помощью нашего ленточного фундамента калькулятора вы можете легко и быстро рассчитать необходимые параметры для вашего проекта.
Результаты подсчетов в нужном формате можно скачать на ПК или устройство, либо же отправить по электронной почте на свой e-mail или e-mail вашего проектировщика/сметчика.
Это рекомендуется делать, чтобы сверить со специалистом результаты и дополнительно проконсультироваться перед покупкой материалов.
Преимущества использования нашего калькулятора:
- Быстрый и простой способ расчета параметров ленточного фундамента
- Возможность скачать результаты в формате Excel или PDF
- Возможность отправки результатов по электронной почте
- Упрощает процесс планирования и организации строительства
Наш ленточный фундамент калькулятор - это удобный инструмент для планирования и организации строительства. Используйте его, чтобы получить точные результаты и успешно реализовать свой проект!
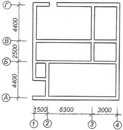
Ленточный фундамент чертеж. План ленточного фундамента, чертеж
В частном и коммерческом домостроении часто используют ленточный фундамент, чертеж которого в упрощенном виде представляет собой вид сверху с указанием линейных размеров. Схема ленточного фундамента.
Особенности ленточного фундамента
Ленточный фундамент относится к классу монолитных основ, но является более экономичным по сравнению с плитным. При сокращении расхода бетона и армирующих конструкций такие опоры остаются высоконадежными для малоэтажного домостроения и используются также при строительстве ограждений, хозяйственных и бытовых построек различного типа.
Виды опор
План фундаментов этого типа может представлять два типа опорных конструкций:
- монолитный , при производстве которого раствор заливают в траншею с отсыпкой,
- сборный с укладкой готовых железобетонных изделий.
Глубина траншеи в обоих случаях больше уровня промерзания грунта, а ширина рассчитывается с учетом нагрузки.
Рис. 2. Простое и понятное схематичное изображение монолитной ленточной опоры с указанием размеров.

Чертеж сборного ленточного фундамента с указанием размеров.

Факторы влияния
При выполнении инженерных вычислений учитывают следующие факторы:
- общий вес конструкции (при строительстве зданий принимают во внимание материалы, из которых будет выполнена постройка, внутренней планировке, числа этажей, количества и размеров оконных и дверных проемов),
- тип грунта, влияющий на степень усадки,
- величину нагрузки в процессе эксплуатации.

Дополнительное изображение для чертежа ленточного фундамента.
Особенности построения плана
План опор ленточного типа создается по определенным правилам.
- Выбирается масштабирование 1:100 или 1:400.
- Перед построением выполняют осевую разметку.
- При наличии колонн, их месторасположение указывается на схеме.
- Общие очертания конструкции наносят линиями 0,5-0,8 мм.
Полный план включает в себя изображения подбетонка и подошвы с указанием мест перепадов глубины, характерных для неровных поверхностей, и отверстий для ввода коммуникаций. Последние могут изображаться двумя способами:
- с полным схематичным изображением и указанием данных по нижней точке,
- осевой точкой выносом основных данных (диаметр, параметры нижней точки) на экспликацию.
Коммуникационные отверстия и уступы изображают затушевыванием или контурно, прерывистыми линиями. При необходимости такие изображения уточняются пояснениями или сносками.

Схема ленточного сборного фундамента с дополнительными вынесенными изображениями.
Изображение сложных участков
Если план изображает сборный или монолитный фундамент сложной конфигурации, нюансы устройства сложно передать на единой полной схеме. В этом случае используют более сложные способы планировки:
- наносят на основной чертеж дополнительные изображения разрезов, обеспечивая их осевое соответствие,
- при необходимости сделать такие разрезы более крупными, их выполняют на отдельных листах-дополнениях с указанием всех необходимых данных (цифровых, пояснений, стрелок. обозначающих тип разреза и пр.).
В соответствии со сложностью сечений выбирают масштабирование 1:20, 1:25 или 1:50.
Ленточный фундамент чертеж разрез. Армирование фундаментной ленты
Если проектированием ленточного фундамента занимается специалист, то готовый чертеж будет, безусловно, включать не только линейные параметры самого бетонного пояса, но и характеристики армирования – диаметр арматурных прутов, их количество и пространственное расположение. Но в том случае, когда принимается решение о самостоятельном возведении основания под здание, при планировании конструкции необходимо учитывать определенные правила, установленные действующими СНиП.
Цены на цемент
цемент
Какая арматура подойдёт для этих целей?
Для правильного планирования необходимо хотя бы немного разбираться в сортаменте арматуры.
Существует несколько критериев классификации арматуры. К ним можно отнести:
- Технология производства. Так, арматура бывает проволочной (холоднокатаной) и стержневой (горячекатаной).
- По типу поверхности арматурные пруты различаются на гладкие и имеющие периодический профиль (рифление). Профильная поверхность арматуры обеспечивает максимальный контакт с заливаемым бетоном.

Арматурные пруты с периодическим профилем (сверху вниз): кольцевым, серповидным, смешанным
- Арматура может быть предназначена для обычных или предварительно напрягаемых железобетонных конструкций.
Для создания армирующей конструкции ленточного фундамента, как правило, применяют арматуру, выпускаемую в соответствии с ГОСТ 5781. Этот стандарт включает горячекатаные изделия, предназначенные для армирования обычных и предварительно наряженных конструкций.

