Планировка 3 комнатная сталинка. Городская архитектура: сталинки
Планировка 3 комнатная сталинка. Городская архитектура: сталинки
К домам сталинского периода (или «сталинкам») принято относить здания, построенные в 30-50-е годы XX века. Вне зависимости от времени постройки, все сталинские дома по конструкции и планировке можно разделить на два типа.
Первый тип – номенклатурное жилье, предназначавшееся для партийных и хозяйственных руководителей и их семей. Номенклатурные дома расположены вдоль центральных проспектов и на площадях.
Первые «сталинки» эксклюзивны и декорированы колоннами, арками и лепниной. Построены они были из красного, белого кирпича или шлакоблоков, перекрытия железобетонные или комбинированные. Архитекторы сталинской эпохи не экономили на пространстве квартир и подъездов. На этаже, как правило, располагается всего 2-4 квартиры. Обязательно есть лифты, зачастую на кухне имеется индивидуальный мусоропровод. Во многих квартирах были предусмотрены кабинеты и детские, библиотеки и комнаты для прислуги. В квартирах традиционно высокие потолки (больше трех метров), большие кухни, раздельные санузлы, комнаты – от 15 до 25 кв.м., а местами даже до 30 кв. м.
В Москве к ним можно отнести высотки на Котельнической набережной и Баррикадной, а также во дворах тихого центра и в районах Ленинградского, Кутузовского и Ленинского проспектов.
Знаменитый Дом на набережной (Дом Правительства). Комплекс сооружений на Берсеневской набережной Москвы-реки на Болотном острове, по адресу улица Серафимовича, дом 2 (Берсеневская набережная, 20):
Вот, например, так сейчас выглядит одна из квартир в доме на набережной :
В Санкт-Петербурге большая часть номенклатурных «сталинок» расположена вблизи Смольного, вдоль Московского проспекта, в Выборгском и Кировском районах, на Светлановской площади.
Ко второму типу относят рядовые сталинские дома, которые строились в основном для рабочих, часто под коммунальное заселение. В основном эти дома расположены в глубине кварталов. Архитектура таких зданий утилитарна, отсутствуют украшения, для наружных стен используется неоштукатуренный силикатный кирпич. Перекрытия в основном деревянные, но встречаются и металлические с деревянным наполнением, и железобетонные. Рабочие сталинки не имеют мусоропровода и лифта. В рядовых домах бывают как классические для того периода трёх- и четырехкомнатные квартиры, так и послевоенные «коридорные» — изначально общежития. Площади квартир значительно меньше, чем в домах для номенклатуры. Дополнительные удобства зачастую в таких домах не проектировали, однако в 1970-е годы многие были оборудованы выносными лифтами, в них появились ванны (в кухнях) или ванные комнаты. В Петербурге большая часть рядовых «сталинок» расположена на Васильевском острове, в Кировском районе, в районе улицы Фрунзе, проспекта Ю. Гагарина, Алтайской улицы, станции метро Автово.
Позднесталинские дома — серии кирпичных и блочных домов, построенные в 1950-х годах. Основным требованием при проектировании была возможность для коммунального заселения, поэтому в сталинских сериях предусмотрены высокие потолки, просторные изолированные комнаты, большие прихожие и относительно большие кухни. Благодаря этому, а также расположению в престижных районах Москвы, сталинские дома до сих пор пользуются популярностью на рынке вторичного жилья. Строились такие дома вплоть до 1961 года. 








Планировка сталинка 1 комната. По количеству комнат
При покупке квартиры первое, на что обращают внимание, – это на количество комнат. Чем их больше – тем просторнее. Также сталинки имели разное количество комнат. Распространенными являются 1-комнатные квартиры.Такие квартиры были в 2-х и 3-х этажных домах. Всего на площадке располагалось 3 однокомнатки. Размер их составлял от 32 до 50 кв. м, что было рассчитано на одну семью в количестве 2-3 человек. Жить в них не комфортно, но зато однокомнатная квартира имеет низкую цену.
Планировка 2-комнатной сталинки подразумевала расположение семьи на 3-4 человек. Размер ее составлял от 44 до 66 кв. м. Они более просторны, по сравнению с однушками. В то же время, их цена выше. Частосталинки включала в себя совместный санузел и ванную, что вызывала некоторые неудобства. Проблема решалась с помощью все той же перепланировки.

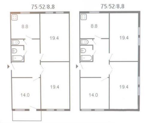
Более приторными в сталинках являются трешки. Раньше они были востребованными по причине низкой цены. Планировка 3-комнатной сталинки позволяла выделить на такие квартиры от 57 до 85 кв. м. Самый роскошный вариант – сталинка на 4 комнаты. В 4-комнатной квартире могло проживать 5-6 человек. Жилая площадь достигала от 80 до 110 кв. м. Это лучший вариант среди сталинских квартир. Здесь как правило всегда был отдельный санузел и ванная. На этаже таких квартир было всего 2. Также были варианты с 5-ю, 6-ю и 7-ю комнатами. Строились такие дома только в Москве, так как не все могли позволить приобретение этих «замков». Эти квартиры располагались в многоэтажных домах с 8-9 этажами, выполненных по специальному проекту.
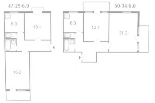
Сталинка серия 1-411 перепланировка. Перепланировка трешки: 3 варианта от профи
Серия 1-411.
Четырех-пятиэтажные кирпичные сталинки. Годы строительства 1955-1960. На каждом этаже по 4 квартиры.
Достоинства планировок: высокие потолки — 3м., встроенные кладовые, раздельные уборные, просторный холл, лоджии и балконы, большие комнаты, вместительные кухни. Минусы: некоторые помещения — проходные, объединенные ванна и туалет в части однушек и двушек, не предусмотрено место для бытовой техники.
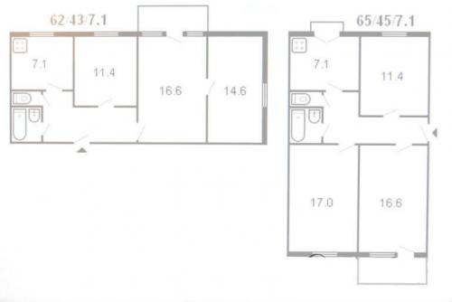
Серия 1-433.
Четырехэтажный кирпичный дом со скатной крышей. Возводились с 1954 по 1961г. Высота потолков — 3 м. На площадке по 2-3 квартиры.
Плюсы планировок: раздельные уборные, кроме некоторых однокомнатных, встроенные кладовые и шкафы, изолированные просторные комнаты, большие кухни в двушках, удобные коридоры. Минусы: маленькие столовые и нет балконов в некоторых трехкомнатных, нет места для бытовой техники, изношенные коммуникации.
Чаще всего планировки жилья в сталинских домах имеют две и более комнат, однокомнатные строились редко. Все постройки обеспечены горячим водоснабжением, канализацией и водяным отоплением.
Ноябрь15
Последние несколько дней меня с головой затянули эскизы и планы, как в проектах с китайскими коллегами, так и для нескольких объектов в России. Попробую рассказать вам по порядку о планах,поделиться своими идеями и показать с чего начинается работа после замеров объекта или предоставления нам планов от заказчика.
В этой заметке речь пойдет о варианте перепланировки для квартиры в России, в следующей, о нескольких планах в Китае. Первое, с чего мы начали обсуждение с заказчиком — это составление брифа, техзадания на проектирование.
Этот этап работы очень помогает собрать все мысли и идеи в самом начале, понять те пункты, которые вам нужно постараться реализовать, учитывая желания и потребности. Как правило, я продумываю несколько вариантов планировочных решений.