Башня Вулыха 2 комнатная перепланировка. Перепланировка 2 комнатной квартиры в Башне Вулыха
- Башня Вулыха 2 комнатная перепланировка. Перепланировка 2 комнатной квартиры в Башне Вулыха
- Дизайн однокомнатной квартиры Башня Вулыха. Перепланировка однушки в доме серии Башня Вулыха
- Башня Вулыха перепланировка. Перепланировка квартиры в Башне Вулыха
- Башня Вулыха звукоизоляция. Башни Вулыха - справочное
Башня Вулыха 2 комнатная перепланировка. Перепланировка 2 комнатной квартиры в Башне Вулыха
О жилом доме: 9-этажный, кирпичный , построен в 1965 году.
О квартире, в которой проводилась перепланировка: 2-комнатная, жилая площадь – 24,9 м², общая площадь квартиры – 41,6 м².
Технический паспорт квартиры:
Какие работы проводились по перепланировке 2 комнатной квартиры в Башне Вулыха
Преобразования в квартире начались с санузла. Тесные туалет (5) и ванную (4) объединили, демонтировав ненесущую перегородку между ними. А чтобы оставить один вход в совмещенный санузел, в туалете демонтировали дверной блок и провели заложение проема.
Ненесущую перегородку между кухней (3) и жилой комнатой (2) разобрали. Между кухней и коридором (6) демонтировали перегородку с дверным проемом.
В итоге кухню от коридора отделили раздвижной перегородкой с плотным притвором. Мойку и газовую плиту переставили. Кроме того, в кухне убрали небольшую перегородку, которой от входа в помещение отгораживалась зона готовки с плитой и мойкой.
Теперь, после перепланировки 2 комнатной квартиры в Башне Вулыха, комната от коридора не отделена перегородкой – между помещениями свободное пространство, что одновременно и удобно, и модно.
Во второй жилой комнате (1) квартиры перенесли дверной блок в ненесущей перегородке. Этим мероприятием перепланировка 2 комнатной квартиры в Башне Вулыха была окончена.
Проект перепланировки 2 комнатной квартиры в Башне Вулыха:


Согласование перепланировки 2 комнатной квартиры в Башне Вулыха
Перепланировка 2 комнатной квартиры в Башне Вулыха согласовывалась в следующем порядке. В МФЦ собственник жилья предоставил заявление с пакетом документов. В том числе, техническое заключение и проект , подготовленные нашим архитектурно-проектным бюро .
Сотрудники МФЦ комплект документов перенаправили в жилищную инспекцию. В Мосжилинспекции обращение собственника рассмотрели, представленный проект утвердили и вынесли решение о согласовании перепланировки и переустройства.
Получив на руки разрешение на перепланировку, владелец квартиры приступил к ремонту. Когда ремонтные работы завершились, комиссия приняла перепланировку и составила акт об ее окончании.
Заказать проект для перепланировки квартиры можно по телефону, который мы указали на сайте. Все предварительные консультации наши сотрудники проводят бесплатно.
Дизайн однокомнатной квартиры Башня Вулыха. Перепланировка однушки в доме серии Башня Вулыха
Проект перепланировки был реализован в кирпичном четырнадцатиэтажном доме 1971 года постройки. Серия дома – Башня Вулыха . Квартира, перепланировку которой мы будем рассматривать, расположена на первом этаже.
Общий размер помещения – 34,1 кв. м. Состоит оно из одной комнаты площадью 18 кв. м, а также лоджии, уборной, ванной, коридора, встроенного шкафа, кухни.
Перепланировка представляла собой такие действия, как: демонтаж и создание ненесущих конструкций , остекление холодных помещений, создание новых помещений, объединение одних и разделение других, обустройство мокрых и летних зон.
При описании произведенных действий будем двигаться от входной двери к лоджии. В процессе перепланировки демонтировали встроенный шкаф (2а) и устроили новый (3а) за счет небольшой части ванной (3).
Перегородку, разделяющую ванную и уборную (4) удалили, тем самым объединив санузлы и создав совмещенный санузел . Входной дверной блок комнаты (1) и ближайшую к выходу стену демонтировали, после чего возвели новую, захватывающую приличную часть коридора.
Получившееся помещение разделили надвое стеной с окошком. В итоге получился кабинет с видом на жилую комнату.
Поскольку прежнюю стену между газифицированной кухней (4) и жилой комнатой (1) убрали, вместо нее установили дверь с плотным притвором и раздвижную перегородку. Старый же вход в кухню демонтировали, визуально объединив кухню с коридором.
Все мокрые зоны оснастили гидроизоляцией .
Лоджию (1а) остеклили и разделили на две (1а и 4а). Демонтировали подоконные блоки , убрали старые дверные блоки. Вместо них поставили новые, единые, с двухкамерными стеклопакетами.
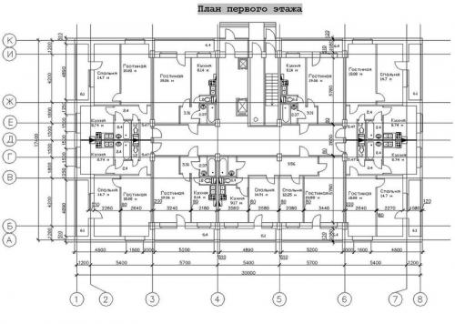
Башня Вулыха перепланировка. Перепланировка квартиры в Башне Вулыха
Перепланировка квартиры в Башне Вулыха, как и во многих кирпичных домах, имеющих бетонные перекрытия, не представляет особых сложностей. С технической точки зрения многое зависит от масштаба задуманного, но перепланировка квартиры в Башне Вулыха в любом случае упрощается благодаря конструкции здания, выполненной с использованием несущих колонн и горизонтальных ригелей.
Более подробно познакомится с серией и перепланировками квартир в Башне Вулыха (альтернативное название серии II-67) можно перейдя по этой ссылке . Возможно, что предложенные варианты смогут дать почву для размышлений и поиска наиболее подходящих идей.
Перепланировка квартиры в Башне Вулыха, в данном случае трехкомнатной, потребовала достаточно большого объема строительных работ, но, несомненно, сделала жилье более комфортным.
Начальное планировочное решение, полученное в БТИ , стало основой для создания проекта перепланировки квартиры в Башне Вулыха. Так как при проведении работ не затрагиваются несущие конструкции дома, для подготовки проектной документации и необходимого технического заключения собственник обратился в нашу организацию . На выбор повлияла высокая квалификация наших специалистов, наличие допуска СРО, исчерпывающая информация, предоставленная при первичной консультации и положительные отзывы за длительное время.
Первоначальная планировка квартиры в документах БТИ


Данная перепланировка квартиры в Башне Вулыха практически на 100% использовала резервы площади для увеличения санузла, обеспечила удобство хранения и создала большое трансформируемое пространство гостиной.
Самым заметным с первого взгляда результатом перепланировки квартиры в Башне Вулыха стало расширение санузла . Перегородки существующих помещений ванны и уборной были снесены, а новые границы уже объединенного санузла (5) выполнили с практически максимально возможным использованием площади коридора.
Проем, служивший для прохода на кухню (4) заделали. Это решение позволило на площади, достигшей 6,7 кв. м. помимо унитаза, разместить дизайнерскую сантехнику значительных габаритов. Работы по звукоизоляции и гидроизоляции санузла проводились, как требуется, с оформлением актов на скрытые работы.
В помещении кухни снесли простенок около старого входа и полностью демонтировали перегородку, отделяющую ее от гостиной (3). Вместо глухой стены установили раздвижную перегородку, то обеспечило наличие доступа в помещение кухни. При выборе конструкции раздвижной перегородки учли, что для газифицированных кухонь требуется обеспечение плотного перекрытия проема.
Так как на кухне установлена газовая плита, изменение места ее установки потребовало привлечения специалистов АО «Мосгаз» и соответствующего оформления. Положение мойки также было изменено.
Листы проекта перепланировки квартиры в Башне Вулыха



При перепланировке квартиры в Башне Вулыха часто окно, выходящее из кухни на лоджию, заменяют на оконно-дверной блок. Так же поступили и в этом случае, удалив часть подоконного блока для установки двери, что обеспечило доступ из кухни на лоджию (3а). Саму лоджию застеклили, что создало удобный альтернативный вариант прохода на кухню из гостиной.
Перегородку, отделявшую гостиную от коридора полностью демонтировали, а в торцевой части объединенного помещения утроили большой встроенный шкаф (3б).
Окно, выходящее из комнаты (2) на лоджию также заменили на оконно-дверной блок, а саму лоджию при помощи возведения перегородки разделили на две части с обособленными входами (2б и 1б).
В жилой комнате (1) снесли встроенный шкаф и перегородку между комнатой и коридором. На площади комнаты выделили при помощи перегородки гардеробную (7) со входом из комнаты. Эта же перегородка стала границей коридора (6), который продлили на площадь комнаты. Вход в комнату (1) перенесли, а в зоне прихожей возвели более масштабный встроенный шкаф (1а).
Согласующий документ МЖИ


Проект перепланировки и техническое заключение в составе пакета документов были через систему госуслуг направлены для согласования. В качестве документа, согласующего проведение перепланировки Можилинспеккция предоставила распоряжение о проведении перепланировки.
По окончании работ приглашенная на объект комиссия МЖИ зафиксировала соответствие проведенных работ параметрам утвержденного проекта. Этот факт зафиксировали в акте об окончании работ по перепланировке.
Акт комиссии Мосжилинспекции об окончании работ по перепланировке


Этот документ необходим для получения в БТИ нового технического паспорта помещения с внесенными при перепланировке изменениями.
Познакомиться с другими примерами реализованных проектов перепланировок можно перейдя по этой ссылке.
Будем рады ответить на Ваши вопросы лично, по телефону, в электронной почте или специальной форме на нашем сайте.
Башня Вулыха звукоизоляция. Башни Вулыха - справочное
Что-то я про них писал в основном лирическое, потому как у менявелосипеданикаких справочных материалов не было. Но вот у уважаемого
http://mgsupgs.livejournal.com/200763.html
Если разрешит, то и картинки, и текст сюда же перепощу.
UPD. итак, можно :)
Конструктивное решение здания
Конструктивная схема представляет собой взаимосвязанную совокупность вертикальных и горизонтальных несущих конструкций здания, которые совместно обеспечивают его прочность, жесткость и устойчивость.Горизонтальные конструкции – перекрытия здания воспринимают приходящиеся на них нагрузки и воздействия, передовая их на вертикальные конструкции - стены. Стены здания передают эти нагрузки и воздействия поэтажно на фундамент. Горизонтальные несущие конструкции играют в зданиях роль диафрагмы жесткости - воспринимают горизонтальные нагрузки и воздействия (ветровые, сейсмические) и передают усилия от этих воздействий на вертикальные конструкции. За отметку 0,000 условно принят уровень чистого пола первого этажа.Принятая конструктивная схема здания обеспечивает прочность, жесткость и устойчивость на стадии возведения и в период эксплуатации при действии всех расчетных нагрузок и воздействий.
Описание конструкций:
Основание - грунтовое. Грунты основания представленные суглинками и супесями.
СТЕНЫ
Наружные стены здания спроектированы из кирпича толщиной 510 мм, в внутренние – гипсобетонные панели толщ 200мм и перегородки- гипсобетонные панели толщ 80мм.
В качестве утепляющего слоя применяют материал с коэффициентом теплопроводности
0.041 Вт/ м° С – в виде плит- плиты пенополистирола.
Теплоизоляция вертикального и горизонтального стыков обеспечивается термовкладышами из пенополистирола. В открытых стыках проникновению атмосферных осадков через вертикальные устья препятствует заведенные в специальные пазы водоотбойной ленты из атмосферостойких материалов(стабилизированный полиэтилен, неопен), через горизонтальные –водозащитный гребень.
ПЕРЕКРЫТИЯ
Перекрытия (подвальное, межэтажное и чердачное(ребристое 300мм)) –сборные железобетонные многопустотные панели толщиной 220мм.
Плиты перекрытия опираются на несущие стены с заделкой по контуру на 90 мм. Предусмотрены вставки из пенопласта в перекрытия для предотвращения появления мостика холода. В перекрытие предусматриваются отверстия под вертикальные вентиляционные шахты, под мусоропровод, под систему труб водопровода, канализации, отопления и водостока.
ЛЕСТНИЧНО-ЛИФТОВОЙ УЗЕЛ
Лестнично-лифтовая группа включает в себя: лифтовой холл, шахты грузопассажирского и пассажирского лифтов грузоподъемностью соответственно от 500 и от 320 кг, эвакуационная незадымляемая лестница имеющая шахты дымоудаления .Незадымляемая лестничная клетка обеспечивает возможность доступа как на все жилые этажи, так и на чердак, и кровлю. Лестницы двухмаршевые. В данном проектируемом доме применяются лестничные марши и площадки плитной конструкции. Этажная и междуэтажная лестничная площадка имеют ширину 1500мм. Лестничные площадки опираются на поперечные железобетонные стеновые панели. Лестницы - сборные железобетонные из маршей шириной 1050мм. Лестничный марш опирается на лестничные площадки, стыки заделываются цементом М500. Размер проступи ступени равен 280 мм, а подступенка - 140 мм. Предусмотренны перила высотой 0,9м.Лестничный марш опирается на лестничные площадки, стыки заделываются цементом М500.
КРЫША
Запроектированная крыша плоская с уклоном 5% в сторону водоприемного лотка, который заканчивается водоприемной воронкой. В кровле предусмотрены 2 водоприёмных воронки, которые направляют атмосферные воды в сеть водостоков с закрытыми выпусками воды в систему подземных водостоков. Крыша является утепленной с «теплым» чердаком и рулонной кровлей.Утеплителем чердачного перекрытия являются насыпной материал-керамзит толщиной 150 мм.Уклона добиваются с помощью наклонного расположения плит покрытия.Стены чердака так же является утепленными, что позволяет расположить на чердаке здания трубы отопления и горячей воды, вентиляционные шахты. Выход на крышу предусмотрен через машинное отделение.
ДВЕРИ
2 входные двери в подъезд остекленная одинарная 2,1х0,9м. Остальные состоят из прямоугольной замкнутой коробки, нижний профиль которой выполнен с порогом и навешенного на коробку с помощью петель дверного полотна. Коробка монтируется в проем в стене, затем герметизируется и заштукатуривается. Входные квартирные двери деревянные глухие 2,1х0,9м. Межкомнатные двери 2,1х0,7м , двери в санузлах 2,1х0,7м. Балконные двери выполнены с двойным остеклением размером 2,4х0,77м
ПОЛЫ
Полы в жилых помещениях выполнены из деревянного паркета по древесноволокнистым плитам(ДВП), в санузлах - из керамических плиток, в межквартирных коридорах, в подвале и чердаке - бетонные.Техническое подполье предназначено для внутренних инженерных коммуникаций. 




