Спальня с ванной и гардеробной. Удобная гардеробная. Варианты размещения: ванная - спальня
- Спальня с ванной и гардеробной. Удобная гардеробная. Варианты размещения: ванная - спальня
- Гардеробная в узкой спальне. Гардеробная в спальне
- Гардеробная в ванной комнате. Гардеробные рядом с ванной
- Спальня с санузлом и гардеробной. 6 примеров размещения гардеробной в спальне
- Спальня с гардеробной. Гардеробная в спальне своими руками
Спальня с ванной и гардеробной. Удобная гардеробная. Варианты размещения: ванная - спальня

Гардеробная рядом с ванной и спальней – вариант, удобный во всех отношениях, а кроме того, позволяющий использовать помещение, как прачечную. Если в гардеробной есть окно, также будет неплохо разместить там гладильную доску.

Гардеробная напротив ванной и спальни
Если позволяет место и в планировке оставлено место для кладовой между кухней и комнатой, то можно использовать ее в качестве гардеробной. Идеальное размещение – напротив ванной комнаты. В этом случае решаются задачи обслуживания нескольких зон: кухонной, ванной и спальной.

Гардеробная, смежная с ванной и спальней
Гардеробная зажата между ванной комнатой и спальней. Попасть в нее можно, как из спальни, так и ванной. Гардеробная является комнатой, через которую осуществляется проход в оба помещения. В такой гардеробной хранятся полотенца, халаты, свежевыстиранная одежда и постельные принадлежности. Чтобы ткань не впитывала влагу, комната должна быть отделена от ванной воздухонепроницаемой дверью и иметь эффективную вентиляцию. Для хранения полотенец, постельных принадлежностей и скатертей должны быть предусмотрены ящики и глубокие полки.

Гардеробная между комнатами
Если открытый гардероб является одновременно переходом между ванной и спальней, вещи, хранящиеся в нем, лучше держать в закрытых шкафах. Они будут защищать их от пыли и риска повреждения при частом использовании комнаты. Удобство в том, что все три помещения составляют приватную зону для отдыха, обслуживающую только хозяев.

Габариты гардеробной и способы размещения полок
Размеры гардеробной и конфигурация размещения полок варьируются в зависимости от площади комнаты. Однако при всех возможных композициях есть нормы, о которых не следует забывать.




Гардеробная в узкой спальне. Гардеробная в спальне
Спальня – это зона комфорта, поэтому она должна приносить только удовольствие: здесь не место громоздким вещам и хламу, следовательно, гардеробная при ней должна только дополнять интерьер и быть максимально полезной.
Преимущества
Идея создать гардеробную в спальне появилась некоторое время назад в Америке, но уже сегодня данная постройка довольно популярна и на европейском рынке. В классическом представлении – это отдельное помещение, которое ограждено стеной или перегородкой. Но также существует множество вариаций гардеробных, позволяющих не только открыто хранить белье, одежду и даже обувь, но и украшать интерьер дома, соответствуя стилистическим предпочтениям его владельца.
Некоторые люди, обладающие сравнительно небольшими квартирами, с опаской относятся к таким постройкам. И совершенно напрасно, потому что гардеробная в спальне гарантирует следующие удобства:
- Вещи в такой комнате расположены именно так, что всегда находятся под рукой, благодаря чему их не нужно долго искать. Это отлично экономит время занятого человека.
- Например, при применении шкафа пока один человек ищет нужные ему вещи, другой вынужден ждать. Гардеробную же могут использовать сразу двое, не задевая пространство друг друга.
- Именно в спальне подобное дополнение позволяет человеку, переодеваясь нужное количество раз, без особого труда подобрать необходимый наряд и аксессуары.
- Оформление и устройство гардеробной обойдётся гораздо дешевле, чем заказ или изготовление шкафа-купе, на фасады которого цена достаточно высока.
Виды
Линейная
Похожа на большой шкаф-купе, для такой планировки должна быть отведена глухая стена, на которой отсутствуют окна и двери. Варианты ограждения стены от комнаты:
- Использовать стену из гипсокартона и раздвижные двери, обеспечивая возможность легкого доступа к каждой полке;
- На протяжении всей стены установить раздвижные двери;
- На потолочном карнизе повесить занавеску, которая также может разнообразить интерьер;
- Просто оставить открытые полочки с предметами.
Угловая
Может быть создана при наличии свободного угла. Такая гардеробная будет не менее практична для спальни, ведь в ней можно расположить те же необходимые вещи и предметы, и здесь не требуется отведение глухой стены. Разграничение с комнатой можно реализовать способами, описанными в предыдущем пункте.

Встроенная
Используется специальный шкаф, который в последствии становится неотъемлемой частью спальни.

Открытая
Удобна для маленького помещения. Подразумевает под собой открытое хранение вещей без каких-либо ограждений или дверей и выступает как дополнительное оформление интерьера.

Шкаф-гардеробная
Это шкаф крупных размеров, обладающий раздвижной системой, что при необходимости позволяет расположить в нем даже кровать. При желании владельца в таком шкафу можно использовать внутреннюю подсветку.

Материал
Очень часто в гардеробных используется деревянная мебель, однако более экономным вариантом является её изготовление из ДСП, ДВП или МДФ:
- Преимущества ДСП – доступность, невысокая цена, прочность и лёгкость в применении. Используется не только для внутренних составляющих гардеробной, но и для создания своеобразных дверей-купе.
- ДВП (или оргалит) чаще всего применяются в качестве перегородок, задних стенок мебели или днища ящиков. На самом деле этот материал очень тонкий, но при аккуратном использовании сможет прослужить очень долго, а цена удовлетворит любого потребителя.
- К сожалению, производство МДФ в России находится на низком уровне, поэтому стоимость этого сырья может быть очень высока и доступна не каждому, однако в отличие от других материалов оно обладает следующими преимуществами: долговечность, возможность обрабатывать различными методами и экологическая безопасность.
- Весьма доступным ценовым уровнем отличается гипсокартон – он может использоваться не только для изготовления различных ниш и полок, но и даже для постройки шкафа.
- Нельзя не упомянуть о фанере, состоящей из множества слоёв шпона и обладающей экологической чистотой и максимальной прочностью.
Гардеробная в ванной комнате. Гардеробные рядом с ванной
Гардеробные сегодня становятся все более и более популярными. Обустройством такой комнаты в доме уже никого не удивишь. Планируя гардеробную комнату, важно определиться не только с ее внутренним наполнением, но и с местом ее расположения. То, где будет находиться гардеробная, оказывается, имеет значение. Согласитесь, что идти одеваться в гардеробную через кухню или гостиную не очень удобно и даже странно. Наиболее оптимальным вариантом расположения этой комнаты является место возле ванной или между ванной и спальней. Посмотреть примеры обустройства гардеробных рядом с ванной комнатой можно в нашей фотогалерее.
Более логичного и удобного расположения гардеробной, чем рядом с ванной, не найти. Вы умываетесь, принимаете душ, а затем идете переодеваться и делать макияж в гардеробную.
Идеально, если между ванной и гардеробной будет отдельная дверь, которая позволит быстро попасть из одной комнаты в другую, не выходя в коридор. В этом случае стоит продумать конструкцию дверей. Лучше, если они будут раздвижные или складывающиеся гармошкой , чтобы не создавались неудобства при открывании.
Гардеробная рядом с ванной, конечно, удобный вариант, но важно учитывать некоторые нюансы. Так как ванная комната – это зона повышенной влажности, это может отрицательно сказаться на прилегающей к ней комнате. Вещи в гардеробной от влажного воздуха будут сыреть, может появиться плесень на стенах и другие неприятности.
Поэтому позаботьтесь о том, чтобы уберечь комнату от проникновения влаги. Установите в ванной принудительную вентиляцию, которая специально предназначена для защиты от грибка. Также проверьте, чтоб двери между двумя комнатами плотно закрывались (желательно иметь порожек в дверном проеме).
Если гардеробная комната будет располагаться между ванной и спальней (как сквозная комната), то продумайте ее обустройство так, чтобы можно было свободно перемещаться между стеллажами. Проход должен быть не менее 80-90 сантиметров.
Также предусмотрите хорошее искусственное освещение в гардеробной и качественную изоляцию всех проводов, чтобы не допустить замыкания. Так как гардеробная будет находиться возле ванной, то не забудьте о таких важных мелочах, как корзина для грязного белья, коврик, чтобы было приятно ступать босиком после принятия душа.
Гардеробная и ванная – отличные «соседи», но при соблюдении определенных условий их соседства.
Внимание! Если вы не хотите пропустить появление новых материалов на этом сайте, то можете подписаться на рассылку «Красивые фотогалереи интерьеров разных комнат» через подписную форму, расположенную в правом верхнем углу.Спальня с санузлом и гардеробной. 6 примеров размещения гардеробной в спальне

Разместить гардеробную в спальне можно даже в квартире площадью 30 кв. М, в которой спалья занимает от 12 до15 метров! Предлагаем рассмотреть варианты таких планировочных решений.
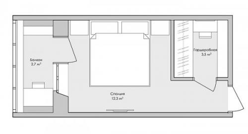
1 вариант : П-образная гардеробная в спальне площадью 14, 3 кв. М.


Согласитесь, на месте гардеробной площадью 4,8 кв. М можно было бы установить шкаф, рабочий столик с ноутбуком, туалетный столик или даже большой встроенный шкаф – типичный комплект многофункциональной спальни. Однако дизайнер решил сделать еще одну небольшую комнатку с отдельным входом из спальни. И не ошибся: все, что надо спрятать от посторонних глаз, помещается в гардеробной. Конечно, спальную комнату пришлось расширить на 3 кв. М за счет коридора, зато сколько мест хранения с вешалками и полками!
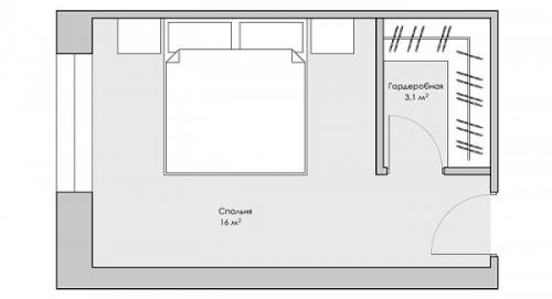
2 вариант: Г-образная гардеробная в спальне площадью 19,1 кв. М


Та же спальня с практически не изменившейся планировкой за исключением схемы гардеробной комнаты. Она уменьшена в пользу пространства спальни, поэтому в ней размещается Г-образная компоновка полок и вешалок. Хозяевам не понадобился большой гардероб, и они решили, что вещи и одежду можно уместить в гардеробной площадью 3,1 кв. М. Здесь также есть зеркало на всю стену.
3 вариант: проходная гардеробная в спальне площадью 19 кв. М


Идеальный вариант для использования гардеробной не только в качестве комнаты для хранения ненужных вещей и повседневной одежды. Гардеробная имеет два входа: один из прихожей или коридора, второй ведет в спальню. По сути, чтобы войти в спальное помещение, нужно сначала зайти в гардеробную, отделенную от комнаты раздвижной перегородкой. Преимущества такой планировки в том, что решаются проблемы хранения бытовых предметов. В комнате площадью 6, 5 кв. М найдется место и для пылесоса, гладильной доски и даже детского велосипедика, которые можно взять, открыв дверь из прихожей и не мешать отдыхающим в спальне.
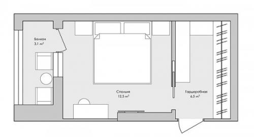
4 вариант: гардероб+библиотека в спальне площадью 15,8 кв. М


Небольшая спальня с выходом на лоджию. Варианты функционального размещения письменного стола (на лоджии), мест хранения одежды и постельного белья (в гардеробной), а также маленького туалетного столика (в гардеробной) решены! Так что остается отдыхать в незахламленном вещами спальном помещении.
5 вариант: многофункциональная проходная гардеробная


В гардеробной, соединяющей ванную и спальню, есть практически все для хорошей примерочной в бутике: шкафы, туалетный столик, полки, зеркало с пуфом для отдыха. Гардеробная соединена одновременно с ванной комнатой и спальней. В каждую из этих помещений можно зайти в гардеробную, как и из общего коридора квартиры. Преимущество такой планировки в том, что все помещения при этом совершенно изолированы друг от друга.
6 вариант: проходная гардеробная, соединяющая спальню, ванную и общий коридор

Преимущество такой планировки в том, что практично разделены функции помещений: спальня сединена с гардеробом, из которого можно войти в туалет, закрытый с обеих сторон раздвижными дверьми, ванную и выйти в коридор, из которого также можно пользоваться удобствами, не заходя в спальню. Сложное, но толковое решения для небольшой квартиры.

Спальня с гардеробной. Гардеробная в спальне своими руками
Гардеробная в спальне своими руками подразумевает организацию большого количества зон с высокой функциональностью на определённой площади. И продумать конструкцию необходимо до мелочей.
Планирование и зонирование
На этапе планирования нужно определиться, где будет располагаться гардеробная.
- В углу. Подобное расположение считается наиболее оптимальным. Здесь происходит объединение с дверным проёмом комнаты. Если конструкция громоздкая, то она только утяжелит помещение, а вот у входа она будет смотреться очень гармонично. Конечно, если комната не слишком ограничена в квадратуре, подойдёт любой из углов.
- По обе стороны входа. Вариант для случаев, где проём находится посередине комнаты. Сооруженные по обе стороны от него две конструкции, значительно повысят функциональность помещения. Подобные двойные гардеробные можно сделать и около оконного проёма, и организовать межу ними рабочее пространство или небольшую зону отдыха. Такой подход окажется очень рациональным.
- Вдоль стены. Реализация особо удачна для планировки с большой спальней. Гардеробную располагают вдоль стены, а вход делают, исходя из личного удобства. Чаще всего он находится ближе к краю, чтобы свободный участок стены был использован для мебели или техники.
- За кроватью. Способ размещения применим для глубоких комнат. В такой спальне должен быть определённый кусок стены, на котором не будет ни окон, ни дверей. Напротив этой стены возводится перегородка с проходом. За перегородкой мы получаем гардеробную, а к внешней её стороне ставим кровать.