Идея для квартиры однокомнатной. Советы по выбору дизайна однокомнатной квартиры
- Идея для квартиры однокомнатной. Советы по выбору дизайна однокомнатной квартиры
- Дизайн однокомнатной квартиры с отдельной кухней. Зонирование
- Интерьер однокомнатной квартиры 2019. Интерьер однокомнатной квартиры
- Дизайн однокомнатной квартиры для семьи с ребенком. Однушка 35 кв. м для семьи с двумя детьми
- Видео Дизайн квартир: 5 идей планировки и дизайна однокомнатной квартиры
Идея для квартиры однокомнатной. Советы по выбору дизайна однокомнатной квартиры
Большинство дизайнеров утверждают, что чем больше метраж помещения, тем менее рационально он используется. Другое дело, когда комната небольшая, а хочется уместить в нее как можно больше. Тогда владельцы начинают искать максимально практичный дизайн однокомнатной квартиры, продумывают применение каждого жилого сантиметра.

Кто уж так точно знает что такое «мало места» − так это обладатели однокомнатных квартир.
Небольшое жилое помещение должно включать в себя кухню, детскую и рабочую зону, спальню. На первый взгляд, это кажется невозможным, как показывает практика, неразрешимых задач не бывает.

Дизайн однокомнатной квартиры продумать сложнее всего, так как часто в одной комнате приходится размещать и спальное место, и гостиную, и кухонный уголок и даже место для ребенка.
Перечислим эффективные советы дизайнеров по созданию интерьера мечты
| Стиль минимализм | Подходящий вариант для оформления дизайна однокомнатной квартиры. Не нужно думать, что лучше оставить в комнате стол, стул и кровать. Здесь подразумевается покупка многофункциональной мебели и предметов интерьер: диван со встроенной столешницей, большой стол, который складывается и превращается в небольшой, журнальный вариант. Современные производители предлагают мебель разного размера, поэтому все эти элементы можно изготовить под заказ в нужных размерах. |
| Легкий, воздушный интерьер | Для визуального увеличения пространства можно использовать зеркальные поверхности, зонировать с помощью перегородок из легких, полупрозрачных тканей, тонкого, крепкого стекла. Если перегородки не нужны, зонирование можно сделать во время ремонта. Здесь важным моментом является грамотный подбор отделочного материала. Пол в разных зонах должен различаться: на кухне – плитка, гостиная в ламинате. В спальной зоне можно постелить пушистый ковер. Каждая зона должна иметь индивидуальное освещение. |
| Расстановка акцентов | Не использовать в интерьере однокомнатной квартиры только темные или только светлые тона. Выделяются 2-3 основных акцента. Например, темный полок и светлые стены, либо, стены и потолок светлые, а пол насыщенного, темного оттенка. Но, не стоит использовать много темного, визуально он уменьшит комнату. |
| Перепланировка | Стены внутри маленького помещения, делают его еще более небольшим, режут его. Поэтому, если они не несущие, лучше разобрать. |
| Многофункциональное использование кладовки | В старых домах есть кладовая, которую можно практично использовать. Она отлично выполнит роль встроенного шкафа, или гардеробной. Не будет необходимости устанавливать «большой ящик» в основной комнате. |
| Высокие потолки | Если потолки в квартире высокие, можно установить кровать над полом. Она называется кровать-чердак. Основание может быть отличным шкафом. Таким образом, соединяются сразу 2 мебельных элемента. |
| Грамотное применение декоративных элементов и текстиля | Не стоит перегружать интерьер для однокомнатной квартиры статуэтками и шкатулками разных размеров. Окна лучше украшать тонкими, легкими тканями или рулонным вариантом штор. |
Дизайн однокомнатной квартиры с отдельной кухней. Зонирование

Подразделение комнаты на зоны важно тем, что в каждой зоне создаётся определенное настроение: для отдыха расслабляющее, для работы энергичное, для приема пищи уютное.
Зонирование начинается не с оформления комнаты, а с четкого понимания ее функциональности: вот тут мне будет удобно читать, вот тут должен стоять домашний кинотеатр, чтобы создавать объемный звук, для работы с ноутбуком мне не нужно естественное освещение, а для черчения – наоборот.

На кухне я буду не только готовить, но и принимать гостей или отдыхать.

Как только вы определились, что вы будете делать в своей квартире, можно приступать к визуализации.
Частая ошибка – делать дизайн интерьера кухни в однокомнатной квартире, не учитывая вашего образа жизни.

Если вы практически не питаетесь и не готовите дома, то рабочую зону на кухне можно сократить, а вместо круглого стола с четырьмя стульями сделать барную стойку.

Освободившееся пространство можно использовать для других зон.
В квартире-студии деление на зоны должно четко читаться, поэтому отделить кухню от жилого помещения можно при помощи мебели (дивана, стола, барной стойки), напольного покрытия (плитка в кухне, ламинат в жилой зоне), разноуровневого потолка (на кухне новостройки коммуникации обычно проходят по потолку их можно закрыть гипсокартоном), стеклянной перегородки (в хрущевках с их газовой системой нагрева воды по нормам кухня должна быть отделена от другой площади), освещения.

Интерьер однокомнатной квартиры 2019. Интерьер однокомнатной квартиры
Здесь все направлено на визуальное расширение пространства, грамотное использование полезной площади без потери комфорта. Прихожую обычно используют в качестве мини-гардеробной. Здесь будут уместны зеркальные двери от пола до потолка без видимых рамок. Если по какой-то причине это невозможно, интересная идея – прикрепить зеркало на входную дверь.
Этот прием позволит удлинить коридор/прихожую. Если стена со встроенным шкафом является смежной с ванной комнатой, то можно пожертвовать частью пространства для стиральной машины. В итоге получится небольшая ниша, которая позволит значительно сэкономить место. Иногда встречаются довольно смелые идеи интерьера однокомнатной квартиры. Например, если позволяет планировка, в прихожей можно оборудовать мини-кухню. Этот вариант подойдет для тех, кто в основном питается вне дома.
Дизайн ванной комнаты в интерьере однокомнатной квартире также направлен на визуальное расширение границ, так как чаще всего эта зона имеет довольно небольшую площадь. На помощь придет светлая палитра – от отделки до сантехники. Удачным решением станут зеркальный потолок и раковина из прозрачного стекла. Дверцы душевой кабины также должны быть прозрачными. Это придаст помещению необходимую легкость.
Чтобы не загромождать пространство различными мелкими предметами, необходимо предусмотреть закрытые системы хранения. Внешняя организация и упорядоченность комнаты также позволит добиться эффекта воздушности. Основным декоративным элементом может стать зеркало в оригинальной раме. Одного акцента будет достаточно. Также удобным функциональным элементом может стать раздвижная дверь.
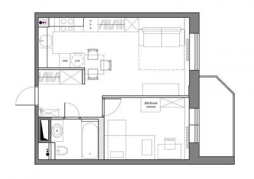
Дизайн однокомнатной квартиры для семьи с ребенком. Однушка 35 кв. м для семьи с двумя детьми
Изолированную комнату отдали под детскую, а в кухне-гостиной установили удобный диван-кровать и вместительную систему хранения.

Площадь однокомнатной квартиры в ЖК «Юнион» в Санкт-Петербурге, которую оформили специалисты бюро Cubiq Studio, составляет всего 35 м2. Жить в ней планирует семья с двумя детьми. Им могло бы быть тесно на скромной площади, если бы не главное преимущество квартиры. Коммуникации подведены в более глубокой и темной части большой комнаты. Благодаря этому удалось превратить её в кухню-гостиную, а маленькую изолированную спальню превратить в детскую.

Поскольку родителям предстоит спать в гостиной, дизайнеры выбрали диван-трансформер, который превращается в полноценную двуспальную кровать. Напротив неё установили комод под телевизор и пару открытых полок для книг.

Зону прихожей отделили от основного пространства нишей со встроенным шкафом для верхней одежды. А чтобы помещение не казалось тесным, в холле установили большое зеркало в белой раме, а проем оставили широким. Благодаря этому комната будто продолжается за пределы прихожей.

Кухонный гарнитур встроили в небольшую отведённую для него нишу. Выбрали максимально вместительную П-образную модель с минималистичными белыми матовыми фасадами. Верхние шкафы чуть уже, а нижние – вровень со шкафом, который как будто их продолжает. На самом деле это система хранения для всех вещей, которые необходимы большой семье.

Поскольку зона кухни уж очень тесная, одну из стен освободили от верхних шкафов. Вместо них предусмотрели открытые полки для зелени и специй. В качестве кухонного фартука здесь использовали грифельную краску.

В детской комнате появилась двухъярусная кровать, причём спальные места расположены перпендикулярно друг другу. Это позволило внизу обустроить дополнительные полочки и зону отдыха с пуфом-игрушкой. Рядом – письменный стол со всеми необходимыми принадлежностями.

Шкаф выбрали с открыто-закрытой системой хранения. Это позволяет хранить в нём и повседневную одежду, и игрушки с книжками. Предусмотрели и компактную шведскую стенку, которая занимает минимум места.


Хотите видеть больше подобного в своей ленте – ставьте лайк.
Чтобы регулярно смотреть свежие подборки интерьеров со всего мира, подпишитесь на канал .