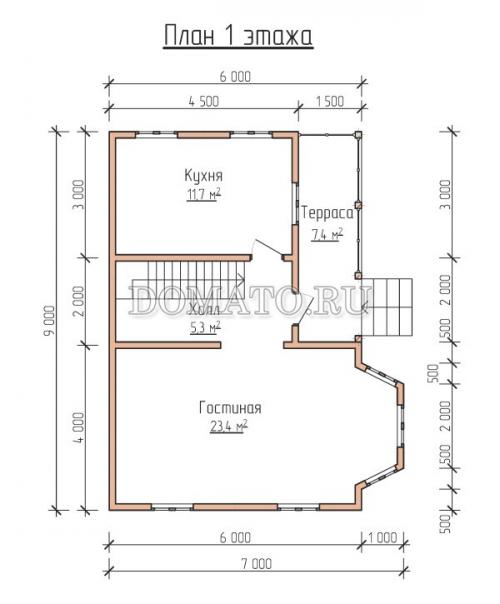
Проект дома 7 на 9 двухэтажный. Проектирование малогабаритных двухэтажных домов
- Проект дома 7 на 9 двухэтажный. Проектирование малогабаритных двухэтажных домов
- Проект дома 7 на 9 с печкой. Отопление дома печью — 3 главных принципа
- Проект дома 7 на 9 двухэтажный из бруса. Проект капитального жилого дома 7 н. Д44
- Проект дома 7 на 9 из газобетона. Что входит в готовый проект дома из газобетона
- От чего зависят цены на строительство домов из газобетона
- Дома из газобетона: с мансардой и двухэтажные – виды и планировкаДом с мансардой из газобетона для постоянного проживания Источник 1beton.info Внутренняя планировка первого этажа проекта из газобетона Источник 1beton.info
- Дома из газобетона: с мансардой и двухэтажные – виды и планировка
Проект дома 7 на 9 двухэтажный. Проектирование малогабаритных двухэтажных домов
Если сравнивать относительно габаритный одноэтажный дом 9 на 9, двухэтажный проект дома 7х7 экономически наиболее оправдан, если количество коридоров и холлов сведено к минимуму. При выборе проекта стоит обращать внимание на суммарную площадь бесполезных квадратных метров. Встречаются варианты, в которых совокупная площадь таких помещений может достигать 30% от общей жилой площади, что совершенно недопустимо. Строительные компании предлагают разнообразные проекты загородных домов с возможностью их реализации.
Вариант планировки второго этажа Источник stroy-garant.com Проекты могут быть двух видов:
Типовые . Такие проекты удобны тем, что они адаптированы под регион строительства (в них учтены климатические условия и параметры грунтов). Заказчик может вносить изменения (незначительные — бесплатно, значительные оплачиваются дополнительно). Если вы заказываете не только проект, но и строительство дома, проект, как правило, обходится бесплатно.
Оригинальные . Вы можете заказать проект в оригинальном дизайнерском стиле или с нестандартной планировкой, и он будет разработан с нуля.
О каркасном доме из двутавровых балок:
В итоге заказчик получает полный пакет проектной документации, который состоит из нескольких разделов:
Архитектурный . Комплект архитектурно-строительных чертежей с точными размерами.
Конструктивный . Включает детальное описание и характеристики элементов постройки — фундамента, кровли, перекрытий.
Инженерный . Содержит план систем водоснабжения, отопления и водоотведения, план вентиляции, разводку электроснабжения.
Проект с эркером позволяет увеличить полезную площадь Источник optopg.ru Это может быть интересно! В статье по следующей ссылке читайте про проект дома 6 на 6 .
Проект дома 7 на 9 с печкой. Отопление дома печью — 3 главных принципа
Об этом я писал и в других публикациях, но сейчас решил сделать небольшое резюме с основными моментами.
Когда Вы собираетесь разместить печь в доме, всегда хотелось бы заранее знать — насколько комфортно будет в таком доме. Отопит ли печь дом без дополнительных источников тепла? Как увеличить эффективность печи?
Чтобы ответить на этот вопрос максимально конкретно, надо конечно делать индивидуальный проект отопления конкретного дома конкретной печью. Либо подбирать печь под конкретный дом.
Но что самое удивительно, так это то что для отопления дома важна не столько сама печь. Хотя, безусловно она должна быть реализована качественно, должна давать тепло долго и равномерно… В проекте отопления важнее дом — его утепление, размеры, планировка и размещение печи в доме.
Итак, первое и самое важное в отоплении дома:
Утепление дома.
А именно — теплый фундамент, полы, стены, перекрытия и кровля (если чердак не холодный).
Если в доме будут конкретные мостики холода, сквозняки, тонкие не утепленные стены, плохая ветрозащита в проблемных местах (юбка крыши, например). Если в доме установлены окна с тонким стеклопакетом, плохо сделаны откосы (пропускают тепло) или наделано других ошибок… Например одна из таких ошибок — это планировка окон. Надо, по возможности, делать окна на юг, а на север — не желательно, ведь так будет больше теплопотерь. Это все тоже часть планирования отопления. Желательно это все планировать, конечно же, до возведения дома.
Планировка дома.
Не менее важным является планировка дома. Если говорить максимально обобщенно, то чем меньше дверей в доме, чем меньше коридоров — тем легче будет теплу от печи добраться до места. Печь нужно располагать максимально близко ко всем комнатам, если это возможно.
Для регулирования поступления тепла в двухэтажных домах — оборудовать лестницу дверью. Это нужно для того, чтобы препятствовать теплу уходить на второй этаж, при необходимости.
Размещение печи в доме.
Бывает так, что нужно печь разместить в нескольких комнатах — в таком случае она будет обогревать несколько помещений одновременно. Но это не всегда эффективно. Например бывают настолько толстые стены, что печь будет скорее стены обогревать, чем помещения. В таком случае, конечно можно и стеновую разделку сделать, но смотреться это будет не очень. Здесь надо смотреть конкретно для каждого дома.
Если не встраивать печь в несколько комнат, то лучше ее вынести в самую большую часть дома. Например, студию. Отодвинуть от стены — чтобы она максимально отдавала тепло в помещение. А оно, в свою очередь, распространялось по комнатам.
Если же Вы все-таки решитесь встраивать печь в какую либо комнату, подумайте, не будет ли в ней слишком жарко. Например, если это небольшая спальня, может и не нужна в ней такая жара. А если это ванная, то не лучше ли чтобы печь отдала тепло не туда, а в жилые помещения (в случае если в Ванную можно встроит теплый пол).
Проект дома 7 на 9 двухэтажный из бруса. Проект капитального жилого дома 7 н. Д44



(нажмите на проект для увеличения)
Жилой двухэтажный дом 9×7 для загородного проживания от производителя по разумной цене с различной комплектацией и толщиной стен. Этот эскизный проект один из самых красивых из функциональных представленных на сайте в каталоге деревянных домов из бруса.
В проект загородного жилого двухэтажного дома из бруса входит эркер в два этажа, большую террасу на первом этаже и просторный балкон на втором этаже. Дом полностью в два этажа брусом, каждый этаж по 18 венцов (2500см), оба этажа равны по площади. Общая площадь частного дома составляет 95,8 кв.м (дом до 100 кв.м.). Планировка домика включает в себя такие помещения как: холл, кухню, открытую террасу, лестницу на второй этаж, три спальни и выход на балкон их холла. В проект так же входит план фундамента и фото по фасаду с разных ракурсов. Возможна перепланировка внутреннего пространства, стоимость актуальна. Сроки строительства от фундамента и «под ключ» 30-40 дней.

| Фундамент: | В базовом варианте дом устанавливается на столбчатый фундамент. Возможен вариант фундамента: свайно-винтовой и ленточный (рассчитывается отдельно) |
|---|---|
| Половые лаги: | Брус 100х150 мм, через 90-100 см. |
| Стены 1-го этажа: | Строганный профилированный брус 95х145 (145х145мм, 190х145мм), на джутовом полотне, перегородки – строганный профилированный брус 95х145 мм, без утеплителя. |
| Джут: | Межвенцовый утеплитель «джут», джутовое волокно прокладывается между рядами бруса |
| Тип рубки: | Тип рубки стен сруба «в тёплый угол» (шип-паз) |
| Стены 2-го этажа: | Строганный профилированный брус 95х145мм |
| Фронтоны: | Брусовые: строганный профилированный брус 95х145мм (145х145мм 190х145мм) |
| Дом полуторный: | Дом полуторный (в 1,5 этажа). Два этажа равны по площади, стены 1-ого этажа подняты брусом на 1 метр (7 венцов). Весь дом брусовой 1 и 2 этаж, все перегородки и фронтоны из профилированного бруса |
| Утепление: | Пол и потолок 1 и 2 этажей на 100мм, утеплитель «ursa» (или аналоги), с прокладкой пароизоляционной плёнки. |
| Окна: | Деревянные с двойным остеклением, с фурнитурой, обналиченные, размером 1,0х1,2 м. |
| Двери: | Входная – металлическая. Филенчатые, обналиченные, без фурнитуры, размером 2х0,8 м. |
| Стропила: | Стропила из доски 40х100(150мм) с шагом не более 0,9м. |
| Кровля: | Ондулин (на выбор: красный, зеленый, коричневый). |
| Обрешётка: | Обрезная доска 40х100мм, обрешетка выполняется из необрезной доски 20 мм с шагом не более 400мм |
| Пол: | Двойной: черновой – необрезная доска 20 мм, чистовой – шпунтованная доска 36 мм, с парогидроизоляцией изоспан и утеплением «ursa» (100 мм). |
| Высота: | Высота первого этажа – 2,5 м. (18 венцов), второй этаж – 2,5 м. |
| Потолки: | Потолки подшиваются сухой вагонкой, сорт B |
| Лестница: | Лестница деревянная на второй этаж одномаршевая(двухмаршевая) с перилами |
| Карнизы: | Карнизы, поднебесники подшиваются вагонкой. |
Проект дома 7 на 9 из газобетона. Что входит в готовый проект дома из газобетона
Готовый проект дома из газобетона обязательно должен учитывать рельеф местности и климатические особенности постройки жилого объекта. От показателей влажности, температурных режимов и особенностей местности будет зависеть архитектурно-строительная часть проекта.
При планировке строительства любого - одно или двухэтажного дома из газобетона, важно учесть все индивидуальные моменты по утеплению фасадов, использованию дополнительных материалов для отделки стен. Эта часть проекта должна содержать подробные чертежи, размеры и виды материалов, согласно требованиям ГОСТов, чтобы были соблюдены основные технологические этапы возведения жилого объекта.Вторая часть инженерная и включает в себя разделы по электрике, отоплению и водоснабжению, вентиляции и канализации.
Знакомство с домом начинается со стандартного проекта, рассказывающего о планировке и показывающего внешний вид строения Источник www.hmkmos.ru От чего зависят цены на строительство домов из газобетона
Большинство строительных компаний готовы сдать объект за 4–6 месяцев, в зависимости от сложности проекта и наличия декорирующих элементов на фасаде. Длительность строительства и окончательная цена дома будет зависеть от следующих факторов.
- Сложность планировки , которая включает количество ванных комнат, вентиляционных шахт, балконов и мансард, а также расположение внутренних перегородок и их толщину. Построить коттедж в несколько уровней будет дешевле, чем одноэтажный дом из газобетона такой же площади.
- Вид фундамента , который зависит от прочности несущих стен и особенностей рельефа местности и разновидности грунта.
- Нестандартные решения в оформлении фасадов и внутренней планировки, дополнение стандартного проекта декоративными элементами и архитектурными деталями увеличивает конечную стоимость.
- Обработка фасадов , облицовка и утепление. Эта самая нестабильная статья расходов, в зависимости от выбора утеплителя и других дополнительных материалов стоимость обработки может значительно отличаться, варьируясь от 20–1500 руб./м².
Типовой проект одноэтажного дома из газобетона Источник stroitel-lab.ru Стандартный проект всегда стоит дешевле индивидуального. Стоимость 1 м² коробки из блоков с черновой отделкой будет варьироваться от 9 000 до 15 000 рублей в зависимости от региона. Цена 1 м² готового жилого объекта на 50–80% дороже, в зависимости от качества отделочных материалов и сложности инженерных коммуникаций.
Дома из газобетона: с мансардой и двухэтажные – виды и планировка
Дом с мансардой из газобетона для постоянного проживания Источник 1beton.info
Внутренняя планировка первого этажа проекта из газобетона Источник 1beton.info
Это может быть интересно! В статье по следующей ссылке читайте про армирование газобетонных блоков .

Дом с мансардой из газобетона для постоянного проживания Источник 1beton.info
Внутренняя планировка первого этажа проекта из газобетона Источник 1beton.info