Как сделать из двух комнат три. Как из двух комнат сделать три: пример в Химках
- Как сделать из двух комнат три. Как из двух комнат сделать три: пример в Химках
- Из двушки распашонки в трешку. Перепланировка недели: как из двушки сделать трёшку
- Как из 3 комнат сделат. Как из трёхкомнатной квартиры сделать четырёхкомнатную: пример пространства, организованного с умом
- Видео перепланировка из 2-х комнатной в 3-х комнатную. Дизайн интерьера.
Как сделать из двух комнат три. Как из двух комнат сделать три: пример в Химках
Дизайнеры студии SPACE FOR LIFE нашли возможность выкроить в двухкомнатной квартире сложной конфигурации пространство для еще одной комнаты и просторной гардеробной. Смотрим, как им это удалось
Заказчики, семейная пара с десятилетним сыном, попросили дизайнеров превратить «двушку» в «трешку» и сделать сложную геометрию квартиры, продиктованную цилиндрическим фасадом дома, более понятной и функциональной. Чтобы решить эту задачу, пришлось избавиться от холла. Так в квартире появилась проходная гостиная с выходом в просторную кладовую-гардеробную.
Стены во всех комнатах окрашены, но в каждом из помещений одна из стен имеет сложное фактурное покрытие. Длинной стене, которая тянется из кухни в коридор, кирпич добавил глубины. Панно из фрагментов дубовых бочек в гостиной дополняет кожаный диван. В спальне в изголовье фрагмент обоев обрамлен выступом, покрытым декоративной штукатуркой, имитирующей шпон дерева.
Функцию хранения взяла на себя кладовая-гардеробная, в которую можно попасть из гостиной. Кроме того, в прихожей и спальне дизайнеры разместили шкафы с зеркальными дверцами, чтобы максимально расширить эти небольшие помещения. Для детской придумали шкаф, идеально сочетающийся с другими предметами обстановки.
Мебель собирали по принципу «главной покупки» – основным приобретением для гостиной стал кожаный диван, для спальни – кровать, выполненная на заказ, для детской – шкаф в разноцветную полоску. Остальные предметы подбирали постепенно, по мере того как реализовывался проект.
Строгой привязки к какому-либо стилю в интерьере нет, поскольку он собирался исходя из пожеланий заказчиков, которые от комнаты к комнате рознились. Детская получилась очень скандинавской, гостиная – солидной кабинетной, спальня и кухня – более мягкими, почти «девичьими».
Разные по стилю помещения объединяет мотив пэчворк, который нравится хозяйке. Он появляется в рисунке плитки, которой выложен кухонный фартук, еще раз напоминает о себе в санузле. А в детской на кровати – уже не имитация, а самый настоящий пэчворк – простеганное покрывало, выполненное из разноцветных кусочков ткани.
Из двушки распашонки в трешку. Перепланировка недели: как из двушки сделать трёшку
Сегодня мы решили рассмотреть серию И-522А, которая является типичным представителем городской застройки конца 70-х — начала 80-х годов прошлого столетия. Ни один из новых микрорайонов, которые активно строились вокруг крупных городов, не обходится без домов этой серии.
Отличительной чертой серии является узнаваемый вид и возможности перепланировки: внутри квартир не проходят капитальные стены, а это позволяет применить самые смелые планировочные решения. Именно поэтому сегодня мы на примере двухкомнатной квартиры попробуем организовать трёх- и даже четырёхкомнатную.
Квартира общей площадью 53,3 кв. метра состоит из двух жилых комнат, кухни, двух санузлов, прихожей и двух лоджий. В квартире четыре окна, которые выходят на три стороны света. Квартира не газифицирована (редко встречаются четырёхэтажные дома серии И-522а, которые газифицированы), в ней проходят две вентиляционные шахты, которые категорически недопустимо демонтировать.
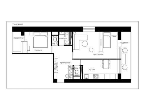
Первый вариант: без перепланировки
В этой квартире можно и без перепланировки организовать второе спальное место. Для этого потребуется большую комнату разделить на две зоны с помощью открытого стеллажа, который разграничит пространство и позволит создать гостиную и спальню. Во второй комнате мы организовали спальню с большой двуспальной кроватью и поместили рабочий стол, столешница которого заменила подоконник, увеличив полезную площадь.
В каждом санузле мы добавили небольшие рукомойники. Пространство большой прихожей позволило организовать в нём места для хранения и шкафы для одежды.
Оборудование кухни, размещённое вдоль стены, позволило найти место и для холодильника, и для посудомоечной машины. Также в кухне нашлось место для обеденного стола на четыре персоны.
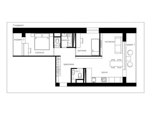
Второй вариант: третья комната
Когда квартира не газифицирована, то можно смело объединять кухню с жилой комнатой. А если нет капитальных внутриквартирных стен, то такое решение напрашивается само собой.
Во втором варианте мы демонтировали перегородки и возвели новые, которые позволили организовать отдельную комнату, обозначенную как "детская". Также важно обратить внимание на то, что по жилищному законодательству жилая комната должна быть с окном, и в нашем случае это правило соблюдено.
Объединённое пространство кухни и гостиной получилось светлым. Вход в лоджию ради удобства использования был перенесён в зону кухни. На лоджии можно организовать зону для отдыха. Для этого можно разместить там пару кресел и столик или повесить гамак — выбирайте сами. Конфигурация новых стен позволила вписать мебель, которая не будет мешать при передвижении.
Санузел, что возле кухни, был увеличен за счёт прихожей, что допустимо. Расширять санузел за счёт кухни или жилой комнаты незаконно, а вот за счёт коридора — расширение допустимо, и эту перепланировку можно легко согласовать.
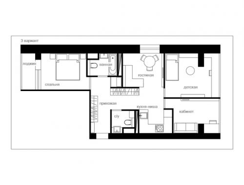
Третий вариант: четырёхкомнатная вместо двушки
Третий вариант — это как раз доказательство того, что мы можем превратить двухкомнатную в четырёхкомнатную, и при этом квартира не превратится в "уплотнённую коммуналку". Делимся секретом волшебства.
Во-первых, нужно знать своды правил и отлично разбираться в строительном регламенте, а также обладать талантом проектировщика. Однако если нет времени на изучение всего вышеперечисленного, то можете смело воспользоваться нашим вариантом, поскольку он абсолютно допустим и не нарушает жилищного законодательства.
Теперь подробнее. Для того чтобы увеличить площадь комнат, мы объединили лоджию с комнатой и бывшей кухней. Комната, организованная на месте кухни, не может быть жилой (поскольку в многоквартирных домах запрещено размещать жилые комнаты под мокрыми зонами). Однако если на экспликации обозначить её как нежилую, например, как кабинет или гардеробную, то такую перепланировку согласуют. В кабинете можно расположить раскладной диван, который выполнит функцию места для сна припозднившихся гостей.
Вместо привычной кухни мы организовали удобную кухню-нишу. Оборудование же не переносили за пределы площади прежней кухни.
Санузел увеличен за счёт прихожей, что допустимо. Также мы организовали небольшую постирочную в бывшем коридоре. В ней можно разместить стиральную машину, а сверху — сушильный шкаф. Теперь проблема размещения оборудования для стирки решена, а подключить стиральную машинку к воде и канализации можно от смежной ванной комнаты.
Любая переделка и перепланировка квартиры должна улучшать качество жизни, и на примере квартиры в серии И-522а мы доказали, что нет предела совершенству и можно изменять квартиру в зависимости от условий: если ваша семья растёт, то данная квартира тоже способна расти.
Как из 3 комнат сделат. Как из трёхкомнатной квартиры сделать четырёхкомнатную: пример пространства, организованного с умом
элементы из той же серии Admonter Стены: краска H&H Derufa, зеркало, фартук — керамогранит MIRAGE (Италия) Двери: со скрытой коробкой UnIon Бытовая техника: холодильник Liebherr, духовка-микроволновка, варочная панель Bosch (Германия) Мебель: часы в гостиной Covo (Италия), диван Alf Italia, стулья Calligaris (Италия), стол Bearmade Спальня родителей Стены: штукатурка декоративная Derufa, краска H&H Derufa Мебель: тумбочка в спальне Wervik hvorost workshop, кровать Alf Italia Ванная комната Сантехника: сантехника Kaldewei (сантехника, Германия), раковина Laufen (Австрия, Чехия, Швейцария), унитаз Roca (Испания), смесители Grohe (Германия), сантехника Kludi Весь объект Оборудование: приточная установка Ventmachine, вентиляция Silent, кондиционер Gree, стиральная, сушильная машины Miele Электроустановочные изделия: электроустановочное оборудование Schneider Electric
Есть нюансы. Дом монолитно-каркасный, то есть несущие колонны трогать нельзя.
Окно в кухне (по перепланировке спальни — выходит на соседний дом, и следовательно небольшое и мало света) Есть две идеи, но обе требуют доработки, поэтому обращаюсь к вам за советом. А идеи собственно такие: 1) это из большой комнаты сделать кухню-гостиную, присоединив балкон, перенеся трубы из кухни, а в кухне устроить взрослую спальню с кроватью подиумом, чтобы иметь возможность поднять трубы на 45 положенных градуса. На месте присоединенного балкона сделать обеденную группу.
Немного увеличить ванную за счет коридора и плюс разделить второй санузел на маленький туалет и небольшую гардеробную. 2) сделать из второго санузла зону готовки на кухни, в кухне также разместить взрослую спальню но уже с обычной кроватью, немного уменьшить одну из детских чтобы увеличить площадь готовочной зоны. Ванную также увеличить за счет коридора.


