Выбор идеального шкафа для раздевалки: советы и рекомендации
- Выбор идеального шкафа для раздевалки: советы и рекомендации
- Связанные вопросы и ответы
- Какие типы шкафов наиболее подходящи для раздевалок
- Какие материалы используются для изготовления шкафов для раздевалок
- Какие функции должен иметь шкаф для раздевалок
- Какие размеры шкафов наиболее популярны для раздевалок
- Какие типы шкафчиков наиболее популярны для раздевалок
- Как выбрать подходящий шкаф для раздевалок по цене
- Какие дополнительные функции могут быть полезны в шкафах для раздевалок
- Как правильно организовать пространство в раздевалке с помощью шкафов и шкафчиков
- Какие типы шкафов наиболее функциональны для раздевалок
Выбор идеального шкафа для раздевалки: советы и рекомендации
Место, где сотрудники предприятий переодеваются в униформу, уже давно стало образцом уюта и порядка, в основном благодаря современной мебели. Ведь в отличие от старых деревянных шкафов она изготавливается из стали, а значит, характеризуется более длительным сроком службы. Однако, между моделями новой мебельной продукции все же существуют некоторые отличия, которые нужно знать при выборе такого товара. Дизайнеры рекомендуют при покупке шкафов для раздевалок придерживаться следующих критериев:
- Выясните, из какого материала изготовлена металлическая мебель. В большинстве своем используется сталь, но иногда может также встречаться алюминий. Правда, себестоимость алюминиевых шкафов выше, поэтому производители стараются использовать этот материал как можно реже.
- Уточните размеры шкафа. Чтобы повесить одежду и разложить свои вещи, нужно подобрать такую мебель, которая не будет слишком узкой – оптимальное среднее значение ширины шкафа равно 36 сантиметрам.
- Чем меньше крепежных элементов во внутреннем наполнении, тем лучше. Крючки для одежды могут быть не прикручены, а приварены, верхняя полка свободно крепится в пазах, а изготовленная в виде металлической трубки штанга для одежды легко вставляться в соответствующие отверстия.
- Учтите, что у большинства моделей шкафов замки относительно простые, наподобие тех, что применяются для почтовых ящиков. Поэтому, когда требуется обеспечить более высокий уровень безопасности на объекте, то нужно будет найти мебель с более сложными запорными механизмами.
- Учитывая небольшие габаритные размеры индивидуальных шкафов и тот факт, что в них будет хранится не только повседневная одежда , но и спец одежда, важным критерием при выборе шкафов, является наличие в них вентиляционных отверстий.
При обустройстве раздевалки потребуются не только шкафы. Нужно будет также купить скамьи или стулья, которые окажутся ничуть не хуже, чем эргономичная офисная мебель для приемных, также предназначенная для ежедневной эксплуатации. И обязательно следует позаботиться о хорошем освещении, без этого необходимого уровня комфорта достичь не удастся.
Связанные вопросы и ответы:
Вопрос 1: Что такое шкафы и шкафчики для раздевалок
Ответ: Шкафы и шкафчики для раздевалок - это мебельные изделия, предназначенные для хранения одежды, обуви и других личных вещей в раздевалках, спортзалах, бассейнах и других подобных местах. Они обычно изготавливаются из дерева, металла или пластика и могут быть разных размеров и форм.
Вопрос 2: Какие типы шкафов и шкафчиков для раздевалок существуют
Ответ: Существует множество типов шкафов и шкафчиков для раздевалок. Например, шкафчики для раздевалок могут быть сдвижными, откидными или сдвижными на петлях. Шкафы для раздевалок могут быть одно- или двухъярусными, с откидными или сдвижными дверями, с настенными или напольными размерами.
Вопрос 3: Какие материалы используются для изготовления шкафов и шкафчиков для раздевалок
Ответ: Шкафы и шкафчики для раздевалок могут быть изготовлены из различных материалов, таких как дерево, металл, пластик и стекло. Деревянные шкафы и шкафчики для раздевалок часто изготавливаются из древесины, такой как сосна, ель или орех. Металлические шкафы и шкафчики для раздевалок обычно изготавливаются из стали или алюминия.
Вопрос 4: Какие функции должны выполнять шкафы и шкафчики для раздевалок
Ответ: Шкафы и шкафчики для раздевалок должны выполнять несколько функций. Во-первых, они должны обеспечивать удобное и безопасное хранение одежды, обуви и других личных вещей. Во-вторых, они должны быть устойчивыми и долговечными, чтобы выдерживать многократный использование. В-третьих, они должны быть функциональными и удобными в использовании, чтобы пользователи могли легко достать свои вещи.
Вопрос 5: Какие факторы следует учитывать при выборе шкафов и шкафчиков для раздевалок
Ответ: При выборе шкафов и шкафчиков для раздевалок следует учитывать несколько факторов. Во-первых, необходимо учитывать размеры и форму шкафов и шкафчиков, чтобы они были подходящими для помещения. Во-вторых, следует учитывать материалы, из которых изготовлены шкафы и шкафчики, чтобы они были прочными и долговечными. В-третьих, следует учитывать функциональность и удобство использования шкафов и шкафчиков.
Вопрос 6: Как правильно устроить шкафы и шкафчики для раздевалок
Ответ: Шкафы и шкафчики для раздевалок должны быть устроены так, чтобы обеспечивать максимальное удобство и функциональность. Шкафы и шкафчики должны быть размещены так, чтобы было удобно их использовать. Они должны быть достаточно просторными, чтобы вместить все необходимые вещи. Внутренние пространства шкафов и шкафчиков должны быть разделены на разделы, чтобы упростить поиск вещей.
Вопрос 7: Как правильно чистить и ухаживать за шкафами и шкафчиками для раздевалок
Ответ: Шкафы и шкафчики для раздевалок должны быть регулярно чищены и ухаживаться, чтобы они оставались в хорошем состоянии. Для чистки металлических шкафов и шкафчиков используются мягкие ткани и мыльно-водные растворы. Для деревянных шкафов и шкафчиков используются мягкие ткани и специальные чистящие средства для дерева. Внутренние пространства шкафов и шкафчиков должны быть регулярно убраны, чтобы избежать накопления пыли и грязи.
Вопрос 8: Как выбрать шкафы и шкафчики для раздевалок, учитывая дизайн помещения
Ответ: При выборе шкафов и шкафчиков для раздевалок следует учитывать дизайн помещения. Шкафы и шкафчики должны гармонировать с дизайном помещения и соответствовать его стилю. Они должны быть выбраны таким образом, чтобы создавать уютную и удобную атмосферу. Шкафы и шкафчики должны быть выбраны таким образом, чтобы они не мешали движению людей и не закрывали естественный свет.
Какие типы шкафов наиболее подходящи для раздевалок
Шкафы для раздевалок используются в различных спортивных учреждениях (фитнес-клубах, бассейнах и т.д.), школах и образовательных центрах, на предприятиях, а также в любых других местах, где посетители переодеваются и должны оставлять где-то вещи.
В интернет-магазине «Офис-812» представлен широкий выбор . Размеры, габариты и другие параметры вы можете выбрать на свое усмотрение. Сегодня поговорим о том, на что обратить внимание при покупке.

Чаще всего, встречаются следующие варианты:
- металл — крепкие и надежные, доступные по цене и стильные, простые в уходе и гигиеничные, важно выбирать изделия с антикоррозийным покрытием, особенно если вы предполагаете их использование во влажной среде;
- ЛДСП — также прочны и надежны, но важно убедиться, что используются безопасные, сертифицированные материалы, а также не экономить, иначе поверхность может вздуться от повышенной влажности, которая часто встречается в раздевалках;
- пластик — доверия заслуживают только премиальные виды, из-за чего изделия получаются очень дорогими, но если вы готовы потратиться, это тоже подходящий вариант, устойчивый к повреждениям и долговечный в эксплуатации.
Замки
Так как в шкафчиках люди хранят личные вещи (причем не только одежду, но и нередко дорогие смартфоны, кошельки с банковскими картами и наличными, украшения), а значит, эта мебель должна надежно запираться на замок.
Большинство шкафов поставляются с одним из следующих типов замка:
- ключевой механический — закрывается на обычный ключ, например, модель ;
- электронный — закрывается путем прикладывания карточки, браслета или любого другого электронного ключа, такие модели часто используются в фитнес-центрах, спа-салонах и т.д., например, ;
- кодовый — открывается по принципу сейфа путем введения кода.

Тип конструкции
Очень важно правильно выбрать тип конструкции шкафа. От этого зависит, как много вещей сможет поместиться в такую мебель, насколько удобно будет пользоваться ей.
Рассмотрим основные варианты.
Односекционные
Представляют собой высокий узкий шкаф с одной дверцей, внутри могут располагаться полки, крючки, перекладины и другие приспособления для размещения одежды и личных вещей.
В качестве примеров можно привести модели , и антивандальный .
Такие модели могут изготавливаться блоками по 2-3 штуки.
Двухсекционные
У этих моделей имеются две дверцы, расположенные одна над другой. Такие изделия позволяют более рационально использовать пространство, что особенно важно, когда вещей для хранения немного, также, как и места в помещении.
К этой категории относятся такие модели, как NOBILIS антивандальный , и .
Также выпускаются в виде блоков по несколько штук.
Многосекционные
Данные шкафы имеют три, четыре и более ячеек, размещенные одна над другой по вертикали. Они нередко используются для хранения сумок, в том числе в супермаркетах и других подобных местах.
Если вы ищете такие варианты, обратите внимание на модели , , , или .
И эти модели могут выполняться блоками.
L-образные
Имеют две изогнутые L-образные дверцы, одна из них открывает нижнюю часть шкафа, а вторая — верхнюю. Пример — уже знакомая нам модель .
Модульные
К этой категории относятся большинство современных шкафов. За счет наличия специальных крепежей, их можно наращивать в сторону на любое количество блоков, увеличивая количество шкафов в вашей раздевалке.
Базовые модули в данном случае комбинируются дополнительными: , или .

Антресоли
Так называют небольшие, горизонтально расположенные шкафчики, которые можно вешать на стену под потолок, над дверью и т.д. Эти модели позволяют еще более эффективно. рационально использовать пространство.
К ним относятся изделия и .
Размеры и габариты
Современные производители выпускают различные по размерам модели. Поэтому ориентироваться, прежде всего, стоит на размеры помещения раздевалки, а также на то, сколько людей планируют одновременно пользоваться ей. Всегда желательно иметь шкафчики «с запасом», чтобы не получилось, что кому-то не хватило их.
При этом размер нужно выбирать так, чтобы мебель плотно вставала по всем стенам и перпендикулярно к ним. Это позволит избежать пустот и нерационального использования пространства.
Какие материалы используются для изготовления шкафов для раздевалок
Для того, чтобы шкафы соответствовали всем вышеперечисленным требованиям, особое внимание следует уделять выбору материалов для их изготовления. Обычно для этих целей используется ЛДСП или металл. Первый вариант нельзя отнести к долговечным, так как ламинированная плита может разрушаться при повышенной влажности и не выдерживает сильных механических воздействий.
Изделия из металла – это более практичный вариант. К тому же в соответствии с правилами противопожарной безопасности на некоторых предприятиях должны быть установлены именно металлические раздевальные шкафы. Но металл должен иметь порошковое покрытие, которое будет защищать его от коррозии.

Заказать необходимое количество надёжных и долговечных одно- и двухсекционных гардеробных шкафов вы сможете на сайте компании Simple PRO. Для изготовления раздевальных шкафов мы используем HPL – композитный пластик. Этот материал не боится влаги, устойчив к механическим воздействиям, моющим и дезинфицирующим средствам. Основа конструкции выполняется из окрашенного алюминиевого профиля, поэтому шкафы не подвержены коррозии. Все изделия оснащены штангами для вешалок или крючками и замками.
Также у нас вы сможете купить и шкафы из высококачественной стали или более доступные изделия из ЛДСП.
Отличным вариантом для небольших по площади раздевалок будет приобретение односекционных пластиковых шкафов с выдвижными скамейками. Использование таких конструкций упростит выполнение требований к ширине проходов.
Выбирая раздевальные шкафы с учётом установленных нормативными документами требований, вы в полной мере обеспечите создание комфортных и безопасных условий для своих сотрудников. А это залог эффективной работы предприятия.
Какие функции должен иметь шкаф для раздевалок
В фитнес-клубах, бассейнах и других общественных заведениях есть комнаты для переодевания гостей. В них должны быть установлены, выполняющие функцию сохранности личных вещей. Они оснащены полочками, крючками, ящиками, которые позволяют удобно разместить одежду, обувь и другое.
Виды
Не все шкафчики выглядят одинаково. Они существуют в многообразии видов. В зависимости от конструкции бывают такие:
Сварные. Изготавливаются из прочного металла. Все элементы соединяются между собой точечной сваркой, что обеспечивает надежность и долговечность готовой конструкции. К минусам оборудования можно отнести склонность к коррозии, сложность транспортировки и относительно высокая стоимость.
Сборные. Такие шкафы продаются в разобранном виде. При монтаже все детали соединяются воедино с помощью саморезов и клепок. Минус в том, что срок годности таких конструкций короче, чем у сварных.
Модульные. Такая мебель представляет собой набор отдельных секций. Чаще всего такие шкафчики используются в командных раздевалках.
Отличаются шкафчики и по количеству створок. Есть с одной, а есть с двумя. У них может быть разное количество секций. Модели с двумя секциями могут использовать одновременно два человека, что удобно и рационально.
Двери всех шкафчиков имеют замки с ключами. По индивидуальному заказу можно установить более сложные запорные механизмы. Например, в элитных фитнес-клубах часто можно встретить шкафчики с кодовыми замками.
Производители используют такие материалы для изготовления шкафчиков в раздевалку:
Древесно-стружечная плита. Самый дешевый материал на рынке. Между тем, он имеет довольно неплохие характеристики. Шкаф отличается эстетичным дизайном, практичностью и удобством в эксплуатации. Единственное, нельзя устанавливать его в помещениях с повышенным уровнем влажности. Она губительно сказывается на материале.
Фанера. Этот материал представляет собой тонкую доску, изготовленную из деревянных пластин. Он имеет практически идентичные эксплуатационные характеристики с ДСП, только более надежный и долговечный. Из фанеры также изготавливают шкаф для документов в офис.
Металл. Металлическая мебель считается самой надежной и долговечной. Она способна противостоять механическим нагрузкам, не боится воздействия высоких температур и других неблагоприятных факторов. В процессе производства такой шкаф покрывается специальным защитным составом, который предотвращает коррозию металла.
Также на рынке встречаются изделия из пластика и натуральной древесины. Но они получили не такую популярность, как описанные выше виды.
Какие размеры шкафов наиболее популярны для раздевалок
Среди разнообразия металлических изделий можно выделить сборные и цельносварные. Существуют различия по уровню защиты. Перед покупкой следует определиться с целью использования, тогда легче будет сделать правильный выбор.
Наиболее популярными являются следующие виды:
- Гардеробы, в которых можно хранить верхнюю одежду. Чаще всего это двухдверные варианты с полкой для обуви и верхней антресолью для головных уборов. Сама одежда помещается на крючках или плечиках. Для вентиляции на задней поверхности и дверцах предусмотрены небольшие отверстия.
- Изделия из металла, состоящие из двух секций, очень востребованы в офисах, спортивных и оздоровительных центрах, учебных заведениях. Практичный и прочный блок для раздевания отлично впишется в стиль лофт.
- Обувницы. Обычно это узкий комод, состоящий из нескольких откидных полок, на которые помещается обувь. Такие варианты имеют несколько секций, самый распространенный вариант – 3 -4 отделения.
Данный перечень не закрыт, существует масса других, не менее интересных и востребованных вариантов. Кроме того, производители предлагают конструкции, разработанные под определенные цели. Например, изделия для хранения оружия дополняются сейфом. По цели использования можно выделить сушильные, распределительные и абонентские шкафы. В продаже имеется мебель, сделанная специально для оснащения гаражей.
Если в магазинах не нашлось металлического изделия, отвечающего по всем заданным параметрам, покупателям не стоит отчаиваться. Существуют производства, которые могут изготовить мебель по индивидуальным параметрам, заданным клиентом. Некоторые организации покупают для раздевалок целые хранилища, которые сочетают в себе несколько вышеперечисленных модификаций. Например, конструкцию для хранения одежды можно оснастить отделением для хозяйского инвентаря и ящиками либо полками для документов.
На рынке довольно много предложений по изготовлению мебели на заказ. Прежде, чем обратиться в определенную фирму, стоит сначала изучить отзывы на нее и осмотреть готовые экземпляры, сделанные выбранными мастерами. Если они отвечают всем требованиям, то конструкции из металла прослужат долго.

Есть несколько типов металлических шкафов для раздевалок:
Размеры шкафов для раздевалок: обзор популярных вариантов
При выборе шкафов для раздевалок важно учитывать размеры, чтобы обеспечить комфортное хранение одежды и других личных вещей. На рынке представлено множество вариантов, но есть несколько наиболее популярных размеров, которые удовлетворяют потребностям большинства пользователей.
Стандартные размеры шкафов для раздевалок
- Ширина: 60-80 см
- Глубина: 40-60 см
- Высота: 180-200 см
Эти размеры позволяют разместить стандартную одежду, обувь и другие личные вещи. Однако, если необходимо хранить более объемные предметы, такие как верхняя одежда или спортивное оборудование, могут быть необходимы более крупные шкафы.
Модульные шкафы для раздевалок
Модульные шкафы представляют собой набор отдельных модулей, которые можно комбинировать для создания индивидуальной конструкции. Это позволяет адаптировать размеры шкафа к конкретным потребностям и пространству раздевалки.
Шкафы для раздевалок с дополнительными функциями
Некоторые шкафы для раздевалок могут иметь дополнительные функции, такие как:
- Встроенные полки или ящики для хранения аксессуаров
- Отделения для хранения верхней одежды или спортивного оборудования
- Встроенные зеркала или подсветка
Эти функции могут повысить комфорт и удобство использования шкафа, но также могут увеличить его размеры и стоимость.
Заключение
При выборе шкафа для раздевалки важно учитывать размеры, чтобы обеспечить комфортное хранение одежды и других личных вещей. Стандартные размеры шкафов для раздевалок составляют 60-80 см в ширину, 40-60 см в глубину и 180-200 см в высоту. Однако, если необходимо хранить более объемные предметы или требуется дополнительная функциональность, могут быть необходимы более крупные или модульные шкафы.
- Сварные. Изделия такого типа отличаются способом сборки. Они выполняются с помощью точечной сварки. Подобные блоки отличаются повышенной прочностью и имеют весьма продолжительный срок эксплуатации. Изделия, выполненные сварным способом, устанавливаются в собранном виде, корпус у них цельный.
- Сборные. Изделия такого типа, можно перевозить и разобранными и в цельном виде. Для экономии денежного бюджета, более целесообразно их перевозить в разобранном состоянии. После того, как мебель привезли на место, ее можно собрать с помощью специальных элементов, которые входят в состав конструкции. Сборка довольно проста и не требует особенных навыков. Если изделия привозятся на объект собранными, их можно сразу же эксплуатировать.
- Модульные. Изделия такого типа, перевозятся только в разобранном состоянии. Дело в том, что их конструкция представляет собой специальные секции, которые крепятся друг к другу с помощью отдельных крепежных элементов. То есть изначально ставится один модуль, к нему присоединяется другой и так далее.
Какие типы шкафчиков наиболее популярны для раздевалок
Шкафы для раздевалок — незаменимая составляющая гардеробной в различных общественных местах: в спортзалах, на стадионах, детских садах, на производстве, в школах.
С их помощью возможно оптимизировать размещение и хранение одежды и личных вещей в безопасности от хищений. Легко организовать быстрый поиск оставленного на хранение.
Согласитесь, гораздо удобнее переодеться и доверить личную одежду и вещи персональной пронумерованной ячейке, под замком, нежели искать в общей куче, оставленной на общественной вешалке. И далеко не факт, что находящиеся в свободном доступе личные вещи вас «дождутся» в целости-сохранности.
Иметь собственную гардеробную, оснащенную шкафом для раздевалок, изготовленным по индивидуальному заказу, очень удобно. Мебель, произведенная по эксклюзивным чертежам, полностью соответствует запросам владельца. В ней нужное число секций по количеству раздевающихся, секции могут быть оборудованы различным наполнением — внутренними полками, ящиками, вешалками, оптимизирующими хранение.
Давайте рассмотрим, какие модификации существуют, и выберем оптимальную для вас!
Конструкционные особенности железной мебели для раздевалок:
По способу изготовления шкафы подразделяются на сварные, модульные, сборные.
Сварные изготавливаются с применением точечной сварки. В результате заказчик получает полностью готовую конструкцию, цельную, не нуждающуюся в сборке. Эта модификация характеризуется высокой прочностью, практичностью, длительным эксплуатационным сроком.
Сборные поставляются заказчику в разобранном виде. Они при транспортировке занимают меньше места, чем цельносварные конструкции. Их монтаж не затруднителен — не нужны особые инструменты. Крепежные элементы — саморезы, клепки - входят в комплект. Их можно оперативно собрать и незамедлительно использовать, при необходимости — разобрать, оттранспортировать и собрать в другом месте.
Модульная мебель — сборная конструкция из шкафчиков, выстроенных последовательно в единую линию. Перевозятся эти системы разобранными. Сборка не затруднительна. Модульная конструкция собирается поэтапно — после сборки первого шкафа к нему подсоединяют второй, и так до конца. Наиболее востребован этот вариант в командных спортивных раздевалках, которые используют много спортсменов одновременно.
Как классифицируется мебель для раздевалок по числу створок:
Шкафы для раздевалок конструируются с различным числом створок, исходя из потребностей. Возможны одно-, двух-, трех-, многостворчатые конструкции. Каждая дверца оснащается индивидуальным ключом. Наверняка, все помнят шкафы для раздевалки в детском саду? Это типичная модульная конструкция с 1 дверцей, закрытой на индивидуальный ключ.
Классификация по типу замков:
В зависимости от различных уровней необходимой безопасности, оснащаются замками разных видов и уровней секретности и взломоустойчивости: врезными, навесными, электронными.
Наиболее востребованный в этих конструкциях вариант замка — ригельный. Это модификация засова: ключ в этом устройстве задвигает и выдвигает металлическую планку за противоположную панель в шкафчике, тем самым образуя преграду для открывания, или убирая ее.
Навесной замок используется нечасто — его применяют, если створку нужно запереть на длительный срок.
Электронный замок обладает высокой степенью секретности, можно хранить ценные вещи. Открывается посредством специального ключа-карты, действующего от аккумуляторов или батареек. Обеспечивает секции высокую степень защиты.
Из каких материалов изготавливается мебель для раздевалок?
ДСП, Натуральное дерево, металл — вот самые востребованные материалы. Вариации древесно-стружечных плит относят к эконом-вариантам, цена продукции из этих материалов невысока. Их недостаток — зависимость от влажности, устанавливать в помещениях с перепадами влажности нецелесообразно, сокращается эксплуатационный срок. Тем не менее, такая мебель удобна, выглядит вполне презентабельно.
В помещениях с перепадами влажности часто устанавливают пластиковые шкафы, индифферентные к конденсату и агрессивной внешней среде. Однако, высокой прочностью такие изделия «похвастаться» не могут.
Универсальный вариант, обладающий массой преимуществ — шкафы из металла. Они прочны, взломоустойчивы, могут дольше противостоять возгоранию, чем деревянные конструкции, не ржавеют, легки в гигиеническом уходе, стоят относительно недорого и имеют самый длительный эксплуатационный ресурс
Оптимальный вариант для хранения одежды и формы в спортивных раздевалках.
Как выбрать подходящий шкаф для раздевалок по цене
Металлические шкафы для раздевалок в сравнении с другими альтернативами имеют ряд полезных качеств. За такой мебелью не нужно особого ухода. Шкафы, сделанные из металла, служат десятки лет, так как крепкий материал не даст быстро износиться мебели. Большое разнообразие комплектаций дает возможность сделать подходящий выбор. Основными преимуществами металлических шкафов являются:
Прочность. Металл обеспечивает высокую защиту от различных видов повреждений. Можно смело не бояться транспортировать мебель, а внутренние удары не нанесут большого вреда полкам шкафчиков. Поэтому не придется тратить большую сумму денег на ремонт, а время будет сэкономлено в разы.
Устойчивость к внешним факторам. Изделия из металла устойчивы к влаге, поэтому их часто устанавливают в помещениях с повышенной влажностью. Помимо этого, прочный материал противостоит химическим веществам, перепадам температур и другим негативным воздействиям.
Безопасность. Наличие персонального места в шкафу создает безопасное хранение предметов. Персонал и посетители могут спокойно оставить свои личные вещи, и при этом не переживать за их сохранность. Металлические шкафы для раздевалок оснащаются замками, что обеспечивает высокий уровень безопасности.
Огнеупорность. В любое время может произойти непредвиденно чрезвычайное происшествие, например пожар. Внутреннее оснащение раздевалок должно всегда быть готовым к таким ситуациям. Следует акцентировать внимание на выборе мебели из металла, так как он не дает возможность распространяться огню.
Простой уход. В раздевалках всегда нужно проводить тщательную уборку. Металлическую мебель совершенно удобно и легко очищать. Понадобится только обычное очищающее средство и губка. За металлом не требуется особого ухода.
Экономичность. Металлические шкафы дороже пластиковых, но в плане краткосрочных затрат. Долговечность металла не приведет к дальнейшим затратам на ремонт в отличие от мебели, сделанной из других материалов. Следовательно, металлические шкафы более экономичны.
Какие дополнительные функции могут быть полезны в шкафах для раздевалок
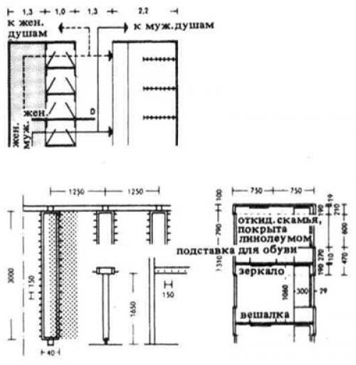
Проектирование раздевален и гардеробных. Расположение кабин. Требуемая площадь при хранении одежды на вешалках с крючками.
1.Индивидуальные кабины(рис. 2): на одного посетителя 1 кабина размером от 1 х 1 до 1 х 1,2 м.
Площадь раздевальни на 1 кабину 3 — 4,5 м2. Предпочтительное число индивидуальных кабин — до 7% общего числа мест в раздевальне (иначе неэкономично).
2.Кабины для переодевания:
а) с отдельно стоящими шкафчиками (рис, 1 и 3), по 3 — 4 шкафчика на 1 кабину;
б) с общим гардеробом (рис. 4 и 5).
Размеры кабин и площадь раздевальни — по данным для индивидуальных кабин.
Желательное число мест в кабинах — около 53% общего числа мест в раздевальне (такое решение экономично: при небольшом числе посетителей кабины могут быть использованы в качестве индивидуальных).
3.Общие раздевальни:
а) с общим гардеробом (рис. 5). Площадь на 1 место 0,5 — 0,8 м2;
б) со шкафчиками для одежды (рис. 7). Площадь на 1 место 0,5 — 0,8 м2 с добавлением площади на шкафчики; на каждое место — 3 — 4 шкафчика. Размеры шкафчиков — от 30x50 до 40 х 60 см; желательное число мест около 26% общего;
в) без шкафчиков, только с крючками (рис. 6). Применяется для групп постоянных посетителей, требует охраны. Площадь на 1 место 0,5 — 0,8 м2; желательное число мест около 14% общего. Высота раздевальных ≥ 2,8 м.
![]() | ![]() |
1. Кабины для переодевания со шкафчиками. 2. Индивидуальные кабины. Проходы для обутых и босых общие. 3. Кабины для переодевания со шкафчиками для одежды. | 4. Кабины для переодевания с общим гардеробом. 5. Кабины для переодевания и групповая раздевальня с общим гардеробом. |
![]() | 6. Групповая раздевальня с крючками для одежды. 7. Групповая раздевальня со шкафчиками. 8. Групповая раздевальня с делением на две части: для обутых и босых. |
Общие гардеробы.
Устройство общих гардеробов экономично, сокращает строительные затраты и число обслуживающего персонала. Разделение кабины для переодевания на мужские и женские осуществляется при помощи передвижных перегородок или указателей (рис. 1) в соответствии с контингентом посетителей.
Состав посетителей в среднем: 60 — 70% мужчин, 30 — 40% женщин.
Старый тип кабин для переодевания со сдачей одежды в общий гардероб через окошко в стене кабины больше не применяется. Для обслуживания без задержек при неожиданном наплыве посетителей должна быть обеспечена удобная сдача и получение одежды.
Требуемая площадь при хранении одежды на вешалках с крючками (рис. 2): на 1 крючок 0,14 — 0,2 м3 (включая проходы для персонала и посетителей) при расстоянии между крючками 15 см.
В открытых бассейнах — 1 место в раздевальне на 40 посетителей; на каждую кабину или место в раздевальне — 20 крючков, т.е. 30 м вешалки; площадь гардероба 1,72 м2 на одну кабину.
Кабины и вешалки — деревянные или из оцинкованных стальных уголков с заполнением древесностружечными плитами (рис. 3).
![]() | ![]() |
1. Кабины для переодевания с общим гардеробом. Число мужских и женских кабин может меняться путем перестановки указателя. 2. Вешалки в раздевалках. 3. Кабины из древесных плит бассейна в Нордерней. | 4. Плечики и обувная корзина для кабин.
|
Как правильно организовать пространство в раздевалке с помощью шкафов и шкафчиков
Одним из ключевых элементов раздевалок являются шкафы, которые играют важную роль в обеспечении комфортных условий для хранения личных вещей. Существует несколько типов шкафов, каждый из которых имеет свои особенности и преимущества.
Первый тип - шкафы с открытыми полками. Они представляют собой конструкцию с несколькими полками без дверей или с открытыми дверцами. Такие шкафы обладают простым и доступным дизайном, что делает их популярными в спортивных клубах или фитнес-центрах. Открытые полки удобны для быстрого доступа к вещам и облегчают проветривание.
Второй тип - шкафы со стандартными дверцами. Это наиболее распространенный вид шкафов для раздевалок. Они имеют закрытую конструкцию с вертикально расположенными дверями, за которыми находятся полки или перекладины для одежды. Шкафы со стандартными дверцами обеспечивают надежное хранение личных вещей, защищая их от пыли и посторонних глаз.
Третий тип - шкафы со специальными замками. Эти шкафы оборудованы индивидуальными замками или кодовыми блокировками, что позволяет каждому пользователю иметь доступ только к своим вещам. Такие шкафы особенно полезны в раздевалках спортивных клубов или общественных местах, где сохранность личных вещей является приоритетом.
Четвертый тип - шкафы с сушилкой для одежды. Они представляют собой комбинированную конструкцию, которая помимо основного хранения включает также специальное приспособление для сушки одежды. Это особенно важно для людей, занимающихся активными видами спорта или работающих на открытом воздухе.
В завершение, следует отметить, что выбор типа шкафа зависит от конкретных потребностей и условий использования. Важно учитывать размер раздевалки, количество пользователей и необходимость дополнительных функций. Независимо от выбранного типа шкафа, его основная задача - обеспечить безопасное и удобное хранение личных вещей, создавая комфортную обстановку для пользователей.
Какие типы шкафов наиболее функциональны для раздевалок

Шкафы для раздевалки позволяют оптимизировать пространство, удовлетворяя потребности пользователей. Правильно подобранные шкафы отличаются функциональностью, удобством и эстетикой.
В каталоге https://simple-pro.com/catalog/razdevalki/ представлено несколько видов шкафов с продуманными конструкциями. Изделия состоят из прочного металлического каркаса и современного HPL-пластика, который обладает высокой химической стойкостью. Предлагаемые раздевалки подойдут для лабораторий и производственных предприятий, медицинских учреждений и пищевой промышленности.
Что учитывать при выборе шкафов для раздевалки?
Размер помещения. Определите доступное пространство, чтобы учитывать его при выборе шкафов. Избегайте переполненности или недостатка места, чтобы рассчитывать на комфорт и удобство использования.
Количество людей, которые используют раздевалку. Определите нужное количество отделений в шкафах. Это поможет правильно организовать пространство и предоставить каждому пользователю достаточно места.
Защита и безопасность. Обратите внимание на наличие замков и прочих механизмов блокировки на шкафах. Это позволит предупредить случаи кражи личных вещей.
Материал шкафов. Часто раздевалки находятся в помещениях с повышенной влажностью, поэтому шкафы должны изготавливаться из влагостойких материалов. При этом они должны быть легкими в уходе и устойчивыми к внешнему воздействию.
Функциональность и организация внутреннего пространства. Разместите штанги, полки и другие дополнительные аксессуары для оптимального использования имеющегося места. Изучите потребности пользователей и выберите шкафы с требуемыми дополнительными опциями.
Не менее важный фактор – эстетический вид. Шкаф должен гармонично вписываются в интерьер раздевалки и соответствовать её стилю. Обратите внимание на цветовую гамму, дизайн и размеры шкафов. Оптимальное сочетание функционала и внешнего вида создаст привлекательную атмосферу.
Правильно подобранные шкафы оптимизируют использование пространства раздевалки, удовлетворят пользовательские потребности в функциональности и эстетике.




