Как сделать из двухкомнатной квартиры трехкомнатную. Пример удачной перепланировки двухкомнатной квартиры в трехкомнатную
- Как сделать из двухкомнатной квартиры трехкомнатную. Пример удачной перепланировки двухкомнатной квартиры в трехкомнатную
- Проект из двушки в трешку. Перепланировка недели: как из двушки сделать трёшку
- Перепланировка 2-х комнатной квартиры в панельном доме. Двухкомнатная хрущевка: переделка
- Перепланировка двухкомнатной квартиры со смежными комнатами. Разделение смежных комнат
- Перепланировка двухкомнатной хрущевки. Перепланировка хрущевки (2 комнаты смежные): варианты подготовки
- Видео как из "двушки" сделать "трешку"?
Как сделать из двухкомнатной квартиры трехкомнатную. Пример удачной перепланировки двухкомнатной квартиры в трехкомнатную

Если ваша квартира состоит из двух, довольно просторных комнат — это уже большая удача, но еще лучше, когда из них получается сделать три функциональных помещения. Сегодня продолжаем тему целесообразных перепланировок пространства двухкомнатных квартир.
Предположим, вас повысили в должности, появилось больше обязанностей, и необходим личный домашний кабинет; или, возможно, — ожидается пополнение в семье, а быть может, совсем другая, не менее весомая причина, заставляющая обыграть функцию комнат по-другому.
Мы представляем вашему вниманию три варианта перепланировок для двухкомнатных квартир, у которых есть все шансы стать трехкомнатными.
Элементарно — используем пространство лоджии или балкона
Например, пространство квартиры составляют две отдельных комнаты, одна из которых совмещена с кухней-столовой. Не рекомендуем, в этом случае, возводить стену между ними, так как лучше кухня-гостиная, нежели два отдельных, но тесных и нелепых помещения.
Если разрушать старые или возводить новые стены вы не готовы, предлагаем более тщательно организовать пространство лоджии, которая объединена с гостиной. Здесь можно расположить рабочий стол, стеллаж и даже мини-диван, — все, что необходимо для того, чтобы чувствовать себя комфортно, при этом, работать в отделенном от основной комнаты пространстве.
Два в одном — разделяем спальню и детскую
На плане, представленном ниже, — планировка двухкомнатной квартиры, где прихожая объединена с гостиной, откуда ведут двери в спальню.
Организовать еще одну комнату за счет перемещения одной из стен спальни в сторону кухни неудобно, — последняя станет совсем тесной, и количество посадочных мест за столом сократится.
Как вариант, третью комнату (например, детскую малыша) можно сделать, если возвести стационарную перегородку в спальне, тем самым, поделив ее пространство. Естественно, образованные комнаты будут довольно небольшого размера, но все, что нужно для отдыха родителей и развития ребенка, в них поместится.
Очень хорошо, если в комнате, к тому же, есть выход на лоджию: со стороны родительской спальни можно демонтировать двери, и наоборот, — установить их в детской, чтобы обеспечить тепло и звукоизоляцию.
Совет : в возведенной стене следует установить двустворчатые двери для того, чтобы родителям можно было быстро и удобно заходить к ребенку.
Тихо и светло — разделяем спальню и кабинет
Еще один способ сделать пространство квартиры более функциональным, чтобы в нем появилась комната под кабинет или гардеробную, — это реорганизация пространства с двумя окнами.
Если в квартире две комнаты, одна из которых длиннее в плане, да еще и с двумя окнами, — можно в ней использовать перегородку с раздвижными дверями. Полупрозрачные стеклянные полотна сберегут ощущение объема и уровень освещенности обеих зон, в целом.
Так, за раздвижными створками можно оформить пространство домашнего офиса, комфортной гардеробной или комнату для занятий музыкой (творчеством).
Совет: Не рекомендуем возводить подобную перегородку в гостиной, так как в ней чаще собирается много людей, а значит, работать в тишине можно будет довольно редко. Спальня – это более подходящее пространство для зонирования, потому как в ней тихо и спокойно.
Проект из двушки в трешку. Перепланировка недели: как из двушки сделать трёшку
Сегодня мы решили рассмотреть серию И-522А, которая является типичным представителем городской застройки конца 70-х — начала 80-х годов прошлого столетия. Ни один из новых микрорайонов, которые активно строились вокруг крупных городов, не обходится без домов этой серии.
Отличительной чертой серии является узнаваемый вид и возможности перепланировки: внутри квартир не проходят капитальные стены, а это позволяет применить самые смелые планировочные решения. Именно поэтому сегодня мы на примере двухкомнатной квартиры попробуем организовать трёх- и даже четырёхкомнатную.
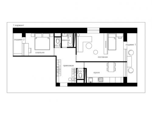
Квартира общей площадью 53,3 кв. метра состоит из двух жилых комнат, кухни, двух санузлов, прихожей и двух лоджий. В квартире четыре окна, которые выходят на три стороны света. Квартира не газифицирована (редко встречаются четырёхэтажные дома серии И-522а, которые газифицированы), в ней проходят две вентиляционные шахты, которые категорически недопустимо демонтировать.
Первый вариант: без перепланировки
В этой квартире можно и без перепланировки организовать второе спальное место. Для этого потребуется большую комнату разделить на две зоны с помощью открытого стеллажа, который разграничит пространство и позволит создать гостиную и спальню. Во второй комнате мы организовали спальню с большой двуспальной кроватью и поместили рабочий стол, столешница которого заменила подоконник, увеличив полезную площадь.
В каждом санузле мы добавили небольшие рукомойники. Пространство большой прихожей позволило организовать в нём места для хранения и шкафы для одежды.
Оборудование кухни, размещённое вдоль стены, позволило найти место и для холодильника, и для посудомоечной машины. Также в кухне нашлось место для обеденного стола на четыре персоны.
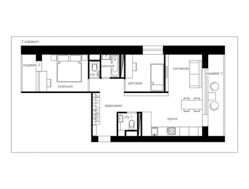
Второй вариант: третья комната
Когда квартира не газифицирована, то можно смело объединять кухню с жилой комнатой. А если нет капитальных внутриквартирных стен, то такое решение напрашивается само собой.
Во втором варианте мы демонтировали перегородки и возвели новые, которые позволили организовать отдельную комнату, обозначенную как "детская". Также важно обратить внимание на то, что по жилищному законодательству жилая комната должна быть с окном, и в нашем случае это правило соблюдено.
Объединённое пространство кухни и гостиной получилось светлым. Вход в лоджию ради удобства использования был перенесён в зону кухни. На лоджии можно организовать зону для отдыха. Для этого можно разместить там пару кресел и столик или повесить гамак — выбирайте сами. Конфигурация новых стен позволила вписать мебель, которая не будет мешать при передвижении.
Санузел, что возле кухни, был увеличен за счёт прихожей, что допустимо. Расширять санузел за счёт кухни или жилой комнаты незаконно, а вот за счёт коридора — расширение допустимо, и эту перепланировку можно легко согласовать.
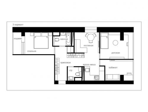
Третий вариант: четырёхкомнатная вместо двушки
Третий вариант — это как раз доказательство того, что мы можем превратить двухкомнатную в четырёхкомнатную, и при этом квартира не превратится в "уплотнённую коммуналку". Делимся секретом волшебства.
Во-первых, нужно знать своды правил и отлично разбираться в строительном регламенте, а также обладать талантом проектировщика. Однако если нет времени на изучение всего вышеперечисленного, то можете смело воспользоваться нашим вариантом, поскольку он абсолютно допустим и не нарушает жилищного законодательства.
Теперь подробнее. Для того чтобы увеличить площадь комнат, мы объединили лоджию с комнатой и бывшей кухней. Комната, организованная на месте кухни, не может быть жилой (поскольку в многоквартирных домах запрещено размещать жилые комнаты под мокрыми зонами). Однако если на экспликации обозначить её как нежилую, например, как кабинет или гардеробную, то такую перепланировку согласуют. В кабинете можно расположить раскладной диван, который выполнит функцию места для сна припозднившихся гостей.
Вместо привычной кухни мы организовали удобную кухню-нишу. Оборудование же не переносили за пределы площади прежней кухни.
Санузел увеличен за счёт прихожей, что допустимо. Также мы организовали небольшую постирочную в бывшем коридоре. В ней можно разместить стиральную машину, а сверху — сушильный шкаф. Теперь проблема размещения оборудования для стирки решена, а подключить стиральную машинку к воде и канализации можно от смежной ванной комнаты.
Любая переделка и перепланировка квартиры должна улучшать качество жизни, и на примере квартиры в серии И-522а мы доказали, что нет предела совершенству и можно изменять квартиру в зависимости от условий: если ваша семья растёт, то данная квартира тоже способна расти.
Перепланировка 2-х комнатной квартиры в панельном доме. Двухкомнатная хрущевка: переделка
В постройках тех лет двухкомнатных квартир гораздо больше, чем однокомнатных, но проблемы у них одни и те же: малые площади и не продуманное расположение комнат, с наличием проходных помещений. Если заняться перемещением стен, то большинство проблем оказываются решаемыми. Например, имеется возможность разделения смежных комнат, после чего можно из двухкомнатной квартиры сделать и трехкомнатную. Для этого достаточно смонтировать еще одну перегородку, которая отделит комнату от коридора. В результате появляется дополнительная полезная площадь, где можно разместить гардеробную и кладовку. Полученное таким образом второе помещение более длинное и более узкое, разделяется на две части, посредством перегородки из гипсокартона.

На фото ниже представлен второй вариант неудачного планирования жилого пространства тех времен. Здесь, чтобы попасть во вторую комнату, необходимо пройти через первую. Планировка настолько неудачная, что, мало того, что малые площади, еще и появляются и мертвые зоны, что искажает функциональность комнат. Иногда, в торце второй комнаты располагают кладовку, которая не может быть использована в полной мере.

После переделки по этому варианту, ванна приобрела квадратную форму, а прихожая соединилась с первой комнатой. В данном случае, она выполняет роль гостиной, из которой сформирован вход в кухню. Следующее, более дальнее помещение разделено на две спальни. Перегородка между двумя спальнями смонтирована таким образом, чтобы осталось место для небольших гардеробных одной и другой спален.

Обычную двухкомнатную хрущевку в панельном доме, возможно превратить в квартиру студию, объединив гостиную и кухню. Основная задача подобной переделки состоит в том, чтобы сместить входные двери. За счет этого большая прихожая послужит в качестве гардеробной. При этом, объединяются туалет и ванна, а кухня и гостиная объединяются за счет частично разобранной перегородки.
Если имеется желание, то вторая комната может быть разделена на две части, за счет перегородки из гипсокартона, что позволит разделить рабочую и спальную зоны. Чтобы в спальню проникал свет, перегородку достаточно поднять на высоту не больше 1,5 метра.

Достаточно интересный вариант переделки 2-х комнатной квартиры в 3-х комнатную. Здесь прихожая немного скошена, что дало возможность увеличить площадь санузла, а перегородка, которая установлена между кухней и комнатой, частично удаляется. Вторая комната разделяется на 2 части, площадь которой увеличивается за счет кладовки и стенного шкафа. В результате образовались 2 спальни, а так как квартира угловая, то в каждой из спален имеется свое окно.
Коридор принял интересную форму, так как его стены располагаются по диагонали. В результате получается неплохой вариант, хотя функциональность коридора значительно снижена.
Перепланировка двухкомнатной квартиры со смежными комнатами. Разделение смежных комнат
Как показывает практика, смежные комнаты в таких домах доставляют много неудобств для проживающих здесь людей. Но выход из такой ситуации есть. Можно разделить две комнаты, несколько уменьшив в одной из них полезную площадь. При этом возможны следующие варианты.
| Характер планировки | Что можно переделать |
| Если комнаты расположены одна за другой | Во многих случаях владельцы неудобных квартир стараются расширить площадь проходной комнаты за счет переноса простенка вглубь меньшей комнаты. Затем в этом уменьшенном помещении они организуют спальню, где в итоге помещается кровать, прикроватная тумбочка и шкаф, как на фото ниже. Но если проявить дизайнерские таланты, и такое маленькое пространство можно сделать очень уютным. Зато, когда ремонт закончен, в гостиной можно собираться огромной семьей |
| Если комнаты расположены одна вдоль другой | Многие просто сносят перегородку между комнатами, заменяя ее колоннами или ширмой. Сложно сказать, что такая переделка предназначена для семьи с детьми. Скорее подобную планировку предпочтут молодожены. А вот глава большой семьи, проводя ремонт, скорее оставит простенок между этими помещениями, заложив дверной проход между ними. Затем потребуется уменьшить площадь обеих комнат за счет переноса меньшей стены вглубь. А на образовавшемся простенке можно установить по одной двери на комнату. Таким образом, коридор в квартире удлинится, но комнаты станут раздельными, как на фото ниже. |
Перепланировка двухкомнатной хрущевки. Перепланировка хрущевки (2 комнаты смежные): варианты подготовки
Гипсокартонная перегородка для разделения помещения на две комнаты
Перепланировка хрущевки на 2 смежные комнаты – это не косметический ремонт, а серьезный процесс, который требует ответственного подхода. Прежде чем приступать непосредственно к самому изменению конфигурации квартиры, важно позаботиться о согласовании перепланировки. Необходимо составить точный план с указанием всех деталей.
Перед началом работ по перепланировке квартиры необходимо позаботиться о ее согласовании
Работы по перепланировке лучше доверить опытным специалистам
Совет! Многие жители небольших квартир , решившись на перепланировку, считают ненужным ее узаконивание. Это большая ошибка, поскольку без утверждения документации на какие-либо изменения планировки в квартире помимо обоснованных жалоб соседей можно столкнуться с проблемами во время продажи квартиры.
Также стоит отметить, что без предварительной экспертизы даже опытные строители не смогут точно различить несущие стены, которые удерживают вес перекрытий, и самонесущие. Именно потому, затеяв серьезные изменения в структуре квартиры, стоит пригласить для экспертизы профессионалов, которые проведут оценку и предложат выгодные варианты перепроектировки.
Двухкомнатная хрущевка до и после перепланировки
Варианты перепланировки двухкомнатной хрущевки
Перенос кухни в комнату
План перепланировки двушки
Перепланировка хрущевки на 2 комнаты, фото которой выглядят весьма привлекательно, все-таки включает в себя больше, чем обычное изменение визуального облика квартиры. Необходимо собрать следующий пакет документов:
- В бюро технической инвентаризации оформляется план этажей здания, непосредственно план квартиры и детальная экспликация помещений.
- Жилищную контору стоит посетить для того, чтобы узаконить свои права на перепланировку и на квартиру в целом, также заверить эскиз будущего плана.
- Если работы будут проводиться с учетом частичной или полной замены трубопроводов или электропроводки, необходимо обратиться за разрешением в газовую службу, санэпидстанцию, пожарный отдел.
Разработку дизайна будущей квартиры можете доверить специалистам или же сделать это своими руками, воплотив в реальность все свои творческие фантазии
В зависимости от сложности проводимых работ, количество документов может существенно возрасти.


