Дизайн кухни с гостиной в частном доме. Интерьер кухни-гостиной 20 кв.м
- Дизайн кухни с гостиной в частном доме. Интерьер кухни-гостиной 20 кв.м
- Интерьер кухни-гостиной в деревянном доме. Гостиная в деревянном доме — неповторимость текстур и цвета, как основа дизайна (88 фото + видео)
- Дизайн гостинной совмещенной с кухней в частном доме с камином. Гостиная с камином в частном доме
- Кухня гостиная 40 метров в частном доме. Дизайн современной кухни-гостиной 40 кв м с фасадами из стекла и пеналами с техникой
- Дизайн кухни в частном доме своими руками. Подсветка и декор: дизайн своими руками
Дизайн кухни с гостиной в частном доме. Интерьер кухни-гостиной 20 кв.м
Дизайн гостиной с кухней должен быть хорошо продуман, а пространство эргономично спланировано. Почему? Потому что данная зона, помимо стилистической отделки, должна быть функциональной и удобной в использовании. Гостиная — очень важная комната в каждом доме. Это место отдыха и релаксации для семейных и общественных мероприятий. Поэтому стоит иметь зону с достаточным пространством для стола, дивана или уголка с журнальным столиком, чтобы не только хозяевам, но и гостям было комфортно. Кухня в свою очередь, — это сердце каждой квартиры. Здесь готовят еду и часто едят. Комната должна быть хорошо продумана, с достаточным количеством места для хранения и планирования. Стоит выбрать мебель по размеру, которую изготовит плотник, как правило, под точные параметры индивидуального интерьера. 
Интерьер кухни гостиной 20 кв.м может разграничить эти две комнаты, разделив их, например, столом со стульями, кухонным островком или барной стойкой. Вы также можете выделить зону, используя разные стеллажи или многоуровневый потолок с подсветкой. Стоит организовать нейтральные цвета в качестве основы. Сильные цветовые акценты используются в виде дополнения. Простым и недорогим способом будет легко изменить расположение гостиной с кухней без замены мебели или покраски всего помещения. Все, что вам нужно сделать, это поменять аксессуары, перекрасить одну стену, чтобы интерьер приобрел новый облик.
Интересным решением для тех, кто не проводит слишком много времени на кухне и не нуждается в большом пространстве для нее, а также хочет получить дополнительное место отдыха, например, для спальни в маленькой квартире, является дизайн гостиной с мини-кухней. В этом случае перемещаете кухню в гостиную, а на пустом месте оформляете спальню. Это также может быть детская комната или офис — все зависит от личных потребностей.



Интерьер кухни-гостиной в деревянном доме. Гостиная в деревянном доме — неповторимость текстур и цвета, как основа дизайна (88 фото + видео)

Обустраивая деревянный дом, необходимо помнить о том, что подобная отделка внутри помещения задает определенный стиль, следовать ему необходимо, чтобы предметы интерьера не выпадали из общего фона.
Если гостиная в доме отделана натуральным деревом, необходимо вносить классические элементы, создать, к примеру, стиль хай-тек, будет неправильно.
Деревянная отделка внутри помещения позволяет дизайнерам экспериментировать, вносить что-то новое. Стены из бруса, натуральный пол, будут являться главным акцентом в комнате.
Отделка из дерева в гостиной может быть не только классических натуральных тонов, материал можно выкрасить в белый, серый или другой цвет.
Стены в комнате, часто заменяют на узкую вагонку, она смотрится легко, современно.
Расстановка мебели в гостиной зависит от того, в какой цвет окрашены деревянные стены, пол, в какой формы деревянные полотна в интерьере.
Варианты отделки гостиной из дерева
Стены небольшой гостиной из дерева рекомендуется выкрасить в белый или светло-серый цвет, таким образом можно значительно расширить пространство, сделать комнату светлой, уютной.
Гостиная из дерева может быть в стиле охотничьего домика, при этом рекомендуется проводить отделку всего интерьера в подобном стиле, чтобы комната не выпадала из общей картины вашего дома.
Идеальным решением при отделке пола является укладка паркета, ламината или палубной доски, цвет покрытия должен быть натуральным или совпадать с цветом стен.
Эконом вариантом в отделке комнаты деревом, является использование вагонки или панелей МДФ.
Если в гостиной имеется камин, отделывать его снаружи лучше натуральными материалами, к примеру, кирпичом или плиткой мраморной текстуры.
Окна должны быть деревянными, пластиковые пакеты не станут дополнением интерьера.
Мебель – главный атрибут гостиной
Для того чтобы гостиная стала по-настоящему уютной, полноценной, пребывание в ней было комфортным, необходимо грамотно расставить мебель, правильно подобрать ее по стилю.
Если в комнате главным акцентом является камин, дизайнеры настоятельно рекомендуют ставить мебель вокруг него.
Интересно будет смотреться современная мебель естественного цвета, фактуры, расставленная вокруг кирпичного камина.
Кроме таких предметов приветствуется наличие и классических элементов, например, деревянный резной столик ручной работы. Его можно просто покрыть сверху несколькими слоями лака, чтобы соединить стиль.
Если в гостиной с деревянной отделкой предполагается наличие большого стола, уместно сделать его также из дерева, а вот стулья могут быть мягкие с обшивкой любого тона.
Интересные акценты в гостиной с деревянной отделкой
В гостиной с серым цветом стен, светлой мебелью, дизайнеры рекомендуют использовать цветной текстиль на окнах, на мебели, также яркие предметы декора.
На светлых диванах интересно смотрятся разноцветные подушки, при этом, текстиль на окнах должен быть похожего цвета.
Материал обивки мебели, штор в таком интерьере, должен быть жаккард или бархат. В качестве освещения, лучше выбирать светильники из металла классической ковки.
Создавая гостиную из дерева, можно фантазировать до бесконечности, необязательно строго соблюдать все принципы создания подобного интерьера, возможно вы сами разработаете интересный проект, который станет примером для дизайнеров.
Дизайн гостинной совмещенной с кухней в частном доме с камином. Гостиная с камином в частном доме
Дизайн гостиной с камином в частном доме имеет свои особенности. Во-первых, в абсолютном большинстве случаев речь идет о настоящем стационарном дровяном очаге. Во-вторых, планировка гостиной в своем доме заметно отличается даже от самой большой гостиной с камином в квартире.

Особенности очага
В своем доме камин можно обустроить как самый основательный, так и самый простой.
- На даче гостиная не отличается большими размерами . Очаг здесь обустраивают самый простой, порой даже оборудуют металлическим дымоходом. Иногда, если здание уж построено и нет возможности усилить фундамент, устанавливают печь-камин с остекленной дверцей топочной камеры.
- Очаг в жилом коттедже обустраивается более солидный и почти всегда обкладывается камнем . Более красиво выглядит гостиная с камином, в котором дымоходная труба встроена в стену. Такой вариант более современен.
- В частном жилище можно устроить и печь-камин в гостиной . Такой вариант служит и для украшения интерьера, и для отопления, так как настоящая русская печь и сейчас лучший способ обогрева этого дома.

В столовой-гостиной такой вариант может еще и выполнять функцию плиты для готовки. Для этого печь со стороны гостиной оборудуют открытым очагом, а со стороны кухни или столовой – варочной поверхностью.
Оформление гостиной с камином
Зал в жилом здании может иметь самую разную конфигурацию, оформляться в разном стиле, объединяться с другими по назначению помещениями и прочее. Соответствующим образом в этом доме изменяется и планировка, и расположение камина, и его дизайн.
- Гостиная с камином и лестницей – классический вариант в частном доме . Большая комната, занимающая едва ли не всю площадь первого этажа, выполняет роль и холла, и столовой, и зоны отдыха, и танцпола. Размещение в ней очага определяется основным назначением комнаты и расположением лестницы.

Камин сам по себе может образовать собственную зону – каминную. В просторной гостиной такой вариант лучше, чем объединение зоны телевизора и очага.
Каминная зона в гостиной оформляется особым образом. Смысловым центром такой композиции выступает очаг, но физический центр обычно свободен. Возле очага располагают каминные кресла для уютной гостиной, между ними устанавливают низкий журнальный или кофейный столик. Это классическое оформление каминной зоны в гостиной можно видеть на фото.

Иногда устанавливают диван в каминной зоне . Угловая или П-образная модель удобнее, эффектней смотрится и заодно выполняет роль границы зоны. Здесь журнальный столик особенно уместен.
Между зоной камина и лестницей также должно сохраняться определенное соответствие. Так, не рекомендуется размещать очаг под лестницей. А вот под лестничной площадкой второго этажа установить печь можно.
- Если столовая и гостиная объединены, камин может служить центром гостиной зоны . Его физическое расположение в этом случае определяется общей планировкой. Так, очаг может обустраиваться традиционно – в углу или по центру стены, а может представлять собой часть перегородки между столовой и залом.

Последний вариант особенно эффектен, когда речь идет о камине с печью в гостиной. Такое сооружение отличается большими размерами и служит превосходным разделителем между гостиной, столовой и кухней.
- Гостиная с эркером и камином представляет собой очень сложное по конфигурации помещение . Лучшее решение – размещение каминной зоны напротив эркера. Если же зал не так уж велик по площади, то очаг располагают к любой примыкающей к эркеру стены. В этом случае рекомендуется установить каминный угловой диван так, чтобы он частично выходил в зону эркера. Такой прием объединяет оба сектора.
Оформление портала выполняется в соответствии со стилем комнаты.
Кухня гостиная 40 метров в частном доме. Дизайн современной кухни-гостиной 40 кв м с фасадами из стекла и пеналами с техникой
- Цена гарнитура: 3000$
- Площадь: —
- Планировка: Угловая
- Цвет мебели: Под дерево
- Фасады: Стекло
- Стиль: Современный
- Объединение: С гостиной
- Пол: Плитка
- Фартук: Плитка
- Потолок: —
Ваш репост изменит интернет :)
Рассказ Игоря, Надежды из Минска:

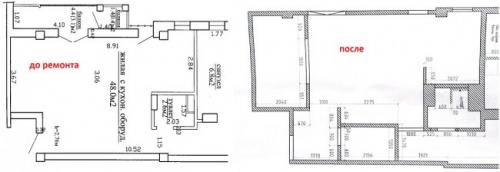
И вот — мы счастливые обладатели собственного жилья! Хорошо, что квартиру купили почти без отделки. От прежних владельцев остался линолеум, который даже не был приклеен, на бетонных стенах красовались бумажные обои и яркие акценты в интерьере — чугунные радиаторы кораллового цвета.
До ремонта
Сразу твердо знали, чего хотим от новой квартиры и кухни в частности, поэтому уже можно сказать с порога приступили к ремонту.

Произвели демонтаж всей отделки — самостоятельно, в кратчайшие сроки и с минимальными нервными потерями.

Монтаж перегородок и гипсокартонных ниш на потолке, выравнивание потолка, укладка плитки — дело рук строителей-отделочников.
Чугунные радиаторы кораллового цвета на белые стальные заменил сантехник.
Все остальные работы с удовольствием и энтузиазмом проводили самостоятельно.
Очень хотелось сделать яркие и одновременно нежные акценты. Одним из них стал кухонный фартук — его. В гостиной повесили занавески в тон одной из полосок на фартуке.

Как вам такой интерьер? Современная кухня 18 кв м с островом и подсветкой
На пол в рабочей зоне уложили плитку «Керамин», в гостиной и во всей квартире — ламинат EGGER с четырехсторонней фаской. Между плиткой и ламинатом вместо накладных порожков сделали полосу из белой мозаики в одной плоскости с напольными покрытиями.
Так как кухня совмещена с гостиной, необходимо было достаточно внимания уделить вентиляции, чтобы ароматы от котлет не разгуливали по всей квартире, а быстренько улетучивались куда следует. Для этого установили достаточно мощную по заверению продавца, вытяжку, а в гипсокартонной потолочной нише в правом углу вмонтировали принудительную вентиляцию.
Гарнитур изготовил индивидуальный предприниматель по нашим эскизам. Материалы фасадов — белое стекло и ламинированная ДСП, фурнитура — BLUM. Уже в процессе эксплуатации выяснилось, что стеклянные фасады гораздо практичнее ламинированных: на них не видны пятна, очень легко удаляется пыль и грязь даже без моющих средств. Просто находка для хозяйки, которая не получает большого удовольствия от уборки!

Вся бытовая техника — встраиваемая, фирмы BOSCH. Удовлетворяет всем нашим требованиям. В начале только огорчил. Как-то заранее не подумали о том, что встраиваемые холодильники менее вместительны. Но ничего, привыкли. Стали есть меньше!

Смеситель — китайского производства Gappo. Но очень даже порадовал: плавный ход ручки, легко отмываются известковые пятна, есть функция «дождик». Его даже полуторагодовалая дочка оценила. В восторге были все, когда она принимала душ прямо в раковине!

Справа от раковины получился очень удобный, скрытый от посторонних глаз уголок. Можно поставить все кухонные предметы первой необходимости, и их не будет видно. А еще этот угол просто незаменим при наведении супер-быстрой уборки. Если гости на пороге, а хозяйка у плиты, вокруг грязная посуда, быстренько убираем все лишнее в уголок от посторонних глаз и, вуаля — порядок!
Левый угол столешницы временно занимает домашнее растение, но оно с радостью уступит это место кофе-машине, которая, надеемся, в ближайшее время появится в нашей семье.

Место для обеденной зоны отвели в гостиной. Стену возле стола оформили небольшими деревянными брусочками разного размера, которые с помощью столярного клея закрепили на лист фанеры, заранее прикрученный к стене. Работа повышенной сложности, скажу я вам! Нарезка лобзиком брусочков из деревянных реек, обработка каждого брусочка наждачной бумагой и приклеивание на стену заняли два месяца. Трудилась вся семья, включая бабушек! Такая вот семейная стенка получилась!
Стол делали на заказ. Он из массива сосны, шпонирован дубом. Стулья — от польского производителя Signal. Вот только накладка вышла: вместо четырех стульев привезли три. В ближайшее время, по заверению продавца, недостающий стул довезут.

Освещение организовали так, чтобы можно было отдельно включать свет в обеденной зоне и рабочей. Очень удобной оказалась. Она не только справляется со своей основной задачей, но и еще дает приятный, нежный свет вечерней гостиной комнате во время просмотра телевизора или позднего чаепития.
Теперь о расходах (в долларах):
Работа отделочников и сантехника — 400.Радиаторы (кухня, гостиная) — 200.Плитка на фартук (Испания) — 300.Плитка на пол («Керамин») — 50.Смеситель — 120.Раковина — 80.Мебель — 3 тысячи.Стол — 400.Стулья — 300.Рольшторы (кухня и два окна в гостиной) — 170.Занавески в гостиной (ткань и пошив) — 240.Техника (варочная панель, духовой шкаф, холодильник, посудомоечная машина, вытяжка) — 2 тысячи 100 (покупали в Москве).Разные мелочи (потолочные светильники, клей плиточный, краска, трубы вентиляционные и прочее) — 300.
Итого: 7 тысяч 660 долларов.
Дизайн кухни в частном доме своими руками. Подсветка и декор: дизайн своими руками
Вариантов сделать кухню неординарной и уютной – множество. Чем меньше оттенков скомбинировано в мебельных фасадах, чем проще текстуры и оформление стен – тем больше простора для декорирования.

Бесплатный декор: поролоновые подушки для табуретов
К примеру, контрастная лестница-полка: полезный аксессуар. Обязательно сделайте невысокие бортики, чтобы ступеньки превратились в настоящие полки.

Стильный стеллаж: старая лестница
Декоративное панно с ярким орнаментом отлично выглядит в белой маленькой кухне.
