Дизайн интерьера квартиры студии 40 кв м. Особенности дизайна небольших квартир
- Дизайн интерьера квартиры студии 40 кв м. Особенности дизайна небольших квартир
- Студия 40 кв м планировка. Распространенные решения перепланировки квартиры 40 кв. м.
- Дизайн кухни студии 40 кв м. Дизайн современной кухни-гостиной 40 кв м с фасадами из стекла и пеналами с техникой
- Дизайн квартиры студии. Цветовые решения маленькой квартиры
- Дизайн евродвушки 40 кв м. Идеи дизайна однокомнатной квартиры 40 кв. м с разделением на зоны
- 1. Спальня-гостиная на подиуме
- 2. Диван, отделяющий гостиную от кухни
- 3. Гостиная-спальня и кабинет в комнате с балконом
- 4. Небольшая столовая зона, отделенная барной стойкой от кухни
- 5. Стеклянная прозрачная перегородка между гостиной и кухней
- 6. Как выделить столовую зону
- 7. Компактная столовая зона на границе кухни-гостиной
- Видео недорогая, но СТИЛЬНАЯ ОДНУШКА 40 кв.м. Крутой дизайн однокомнатной квартиры
Дизайн интерьера квартиры студии 40 кв м. Особенности дизайна небольших квартир
Малогабаритное жилье требует особого подхода при разработке концепции ремонта и проекта будущего дизайна. В первую очередь, определите, сколько жильцов будет находиться в квартире.

Для одного человека или молодой пары без детей вполне подойдет пространство с открытой планировкой, где в общей зоне можно расположить кухню и гостиную или спальню с гостиной.
Если же речь идет о многодетной семье или проживании нескольких поколений под одной крышей, то без зонирования пространства никак не обойтись.

В таком случае придется использовать различные перегородки, раздвижные шторки или специальную многофункциональную мебель. Многоуровневая система освещения придаст интерьеру разнообразия и наполнит его простором.

Затем необходимо определиться со стилистикой помещения. При выборе варианта лучше обратить внимание на стиль, не требующий излишнего количества мебели и декорирования. Такой прием оформления украдет лишние метры и без того маленькой комнатки.

Например, классика или прованс совсем не придутся к месту, а вот лофт или минимализм не только гармонично впишутся в пространство, но и дополнительно его расширят.

В сегодняшнем дизайне квартиры 40 кв. м. придуманы различные приемы, позволяющие оптически увеличивать небольшие пространства. Например, зеркальные мебельные фасады раздвигают границы, зрительно добавляя помещению площади.

Не лишним будет рассмотреть оформление стен и мебели в светлой цветовой гамме. От темных тонов лучше отказаться, они уменьшат объем жилплощади.

Большие оконные проемы сыграют на руку обладателям небольшой квартиры. Естественный дневной свет, льющийся из окна, добавит интерьеру легкости и воздушности.

Разумеется, такой прием не сработает, если вы загромоздите комнату множеством вещей. Поэтому, при ремонте квартиры и покупке мебели остановитесь на самом необходимом. Все лишнее стоит исключить из помещения.

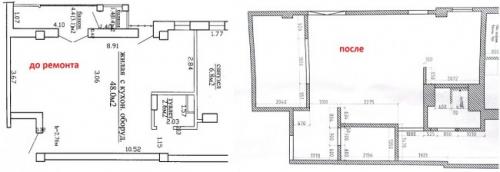
Студия 40 кв м планировка. Распространенные решения перепланировки квартиры 40 кв. м.
Любой вариант дизайна однокомнатной квартиры 40 кв. м. разрабатывается с учётом индивидуальных пожеланий. Кто-то отдаёт предпочтение целостному помещению без стен. Некоторым достаточно условное разделение на зоны с помощью цветовых и осветительных приёмов. Кому то необходимо личностное пространство для уединения с дополнительными перегородками.

Существует ряд наиболее востребованных решений для перепланировки квартиры:
- Совмещение балкона с основной территорией квартиры;
- Оформление студии за счет демонтажа стены между кухней и комнатой;
- Устройство подиумов, выбор двухуровневой мебели;
- Монтаж дополнительных гипсокартонных стен;
- Зонирование помещений с помощью элементов мебели: высокими книжными стеллажами, барными стойками, ширмами, раздвижными дверьми.
Воплощение подобных идей в реальность сложностей не вызывает. Большой ассортимент строительных материалов, всевозможного текстиля, разнообразной мебели может изначально привести в замешательство, однако огромный выбор фото дизайна квартиры 40 кв. м. помогут определиться с выбором.

Огромная популярность таких решений привела к одному единственному недостатку. Квартиры стали похожи одна на другую. Всё сложнее создать проект, который бы разительно отличался от остальных. В этом случае вместо архитектурных изменений помещения лучше искать необычные решения, применяя стандартные материалы.

Далее акцентируем внимание на вариантах, которые редко используют для зонирования пространства.

Дизайн кухни студии 40 кв м. Дизайн современной кухни-гостиной 40 кв м с фасадами из стекла и пеналами с техникой
- Цена гарнитура: 3000$
- Площадь: —
- Планировка: Угловая
- Цвет мебели: Под дерево
- Фасады: Стекло
- Стиль: Современный
- Объединение: С гостиной
- Пол: Плитка
- Фартук: Плитка
- Потолок: —
Ваш репост изменит интернет :)
Рассказ Игоря, Надежды из Минска:

И вот — мы счастливые обладатели собственного жилья! Хорошо, что квартиру купили почти без отделки. От прежних владельцев остался линолеум, который даже не был приклеен, на бетонных стенах красовались бумажные обои и яркие акценты в интерьере — чугунные радиаторы кораллового цвета.
До ремонта
Сразу твердо знали, чего хотим от новой квартиры и кухни в частности, поэтому уже можно сказать с порога приступили к ремонту.

Произвели демонтаж всей отделки — самостоятельно, в кратчайшие сроки и с минимальными нервными потерями.

Монтаж перегородок и гипсокартонных ниш на потолке, выравнивание потолка, укладка плитки — дело рук строителей-отделочников.
Чугунные радиаторы кораллового цвета на белые стальные заменил сантехник.
Все остальные работы с удовольствием и энтузиазмом проводили самостоятельно.
Очень хотелось сделать яркие и одновременно нежные акценты. Одним из них стал кухонный фартук — его. В гостиной повесили занавески в тон одной из полосок на фартуке.

Как вам такой интерьер? Современная кухня 18 кв м с островом и подсветкой
На пол в рабочей зоне уложили плитку «Керамин», в гостиной и во всей квартире — ламинат EGGER с четырехсторонней фаской. Между плиткой и ламинатом вместо накладных порожков сделали полосу из белой мозаики в одной плоскости с напольными покрытиями.
Так как кухня совмещена с гостиной, необходимо было достаточно внимания уделить вентиляции, чтобы ароматы от котлет не разгуливали по всей квартире, а быстренько улетучивались куда следует. Для этого установили достаточно мощную по заверению продавца, вытяжку, а в гипсокартонной потолочной нише в правом углу вмонтировали принудительную вентиляцию.
Гарнитур изготовил индивидуальный предприниматель по нашим эскизам. Материалы фасадов — белое стекло и ламинированная ДСП, фурнитура — BLUM. Уже в процессе эксплуатации выяснилось, что стеклянные фасады гораздо практичнее ламинированных: на них не видны пятна, очень легко удаляется пыль и грязь даже без моющих средств. Просто находка для хозяйки, которая не получает большого удовольствия от уборки!

Вся бытовая техника — встраиваемая, фирмы BOSCH. Удовлетворяет всем нашим требованиям. В начале только огорчил. Как-то заранее не подумали о том, что встраиваемые холодильники менее вместительны. Но ничего, привыкли. Стали есть меньше!

Смеситель — китайского производства Gappo. Но очень даже порадовал: плавный ход ручки, легко отмываются известковые пятна, есть функция «дождик». Его даже полуторагодовалая дочка оценила. В восторге были все, когда она принимала душ прямо в раковине!

Справа от раковины получился очень удобный, скрытый от посторонних глаз уголок. Можно поставить все кухонные предметы первой необходимости, и их не будет видно. А еще этот угол просто незаменим при наведении супер-быстрой уборки. Если гости на пороге, а хозяйка у плиты, вокруг грязная посуда, быстренько убираем все лишнее в уголок от посторонних глаз и, вуаля — порядок!
Левый угол столешницы временно занимает домашнее растение, но оно с радостью уступит это место кофе-машине, которая, надеемся, в ближайшее время появится в нашей семье.

Место для обеденной зоны отвели в гостиной. Стену возле стола оформили небольшими деревянными брусочками разного размера, которые с помощью столярного клея закрепили на лист фанеры, заранее прикрученный к стене. Работа повышенной сложности, скажу я вам! Нарезка лобзиком брусочков из деревянных реек, обработка каждого брусочка наждачной бумагой и приклеивание на стену заняли два месяца. Трудилась вся семья, включая бабушек! Такая вот семейная стенка получилась!
Стол делали на заказ. Он из массива сосны, шпонирован дубом. Стулья — от польского производителя Signal. Вот только накладка вышла: вместо четырех стульев привезли три. В ближайшее время, по заверению продавца, недостающий стул довезут.

Освещение организовали так, чтобы можно было отдельно включать свет в обеденной зоне и рабочей. Очень удобной оказалась. Она не только справляется со своей основной задачей, но и еще дает приятный, нежный свет вечерней гостиной комнате во время просмотра телевизора или позднего чаепития.
Теперь о расходах (в долларах):
Работа отделочников и сантехника — 400.Радиаторы (кухня, гостиная) — 200.Плитка на фартук (Испания) — 300.Плитка на пол («Керамин») — 50.Смеситель — 120.Раковина — 80.Мебель — 3 тысячи.Стол — 400.Стулья — 300.Рольшторы (кухня и два окна в гостиной) — 170.Занавески в гостиной (ткань и пошив) — 240.Техника (варочная панель, духовой шкаф, холодильник, посудомоечная машина, вытяжка) — 2 тысячи 100 (покупали в Москве).Разные мелочи (потолочные светильники, клей плиточный, краска, трубы вентиляционные и прочее) — 300.
Итого: 7 тысяч 660 долларов.
Дизайн квартиры студии. Цветовые решения маленькой квартиры
Какую роль несет цветовая палитра и сочетание оттенков в интерьере? Наверное — главную, если не сказать решающую. Ведь не даром говорят, что оттенки цвета способны по-разному влиять на одно и тоже помещение.
Правильный выбор цветовой палитры для оформления интерьера поможет добиться многих поставленных задач, например: светлые и постельные оттенки способны зрительно расширить пространство и границы помещения, яркие и сочные – подарят тепло и хорошее настроение, а вот с темным цветом нужно быть крайне осторожными, его переизбыток может приводить к неврозу и быстрой утомляемости.

Дизайн интерьера смотрится скучно без пестрых аксессуаров

Разбавить нейтральные оттенки стен лучше всего при помощи ярких красок

Дизайн квартиры-студии выполнен в одной тональной целостности во всех предметах интерьера

Комод вдоль стены вместо массивных шкафов

С добавлением темных красок в интерьер не забудьте увеличить количество света

Современная и яркая квартира студия
Темные стены выглядят эффектно и стильно, но только в больших и просторных комнатах, в нашем случае они будут мрачные и грустные, к тому же темные оттенки способны скрадывать и так недостающее нам пространство.
Основной цвет в интерьере квартиры-студии определяют ее квадратные метры, то есть чем меньше площадь вашей квартиры – тем светлее она должна быть.

Контрастные цвета выглядят дорого и стильно

Преимущество квартиры с высокими потолками — это возможность использования глубоких темных тонов без ущерба для площади помещения

Достаточно смелое, но оправданное решение в выборе дизайна квартиры

Яркий желтый столик делает акцент на себя и добавляет изюминку интерьеру
Оптимальным вариантом цветового решения станут нейтральные и спокойные оттенки белого, бежевого или серого, а вот 10-15% стен можно отдать под оформление яркого акцента и привлечения зрительного внимания.


Дизайн евродвушки 40 кв м. Идеи дизайна однокомнатной квартиры 40 кв. м с разделением на зоны
На фото: Дизайн кухни-гостиной и вид на спальню в однокомнатной квартире 42 кв. м
На фото: Дизайн спальни в однокомнатной квартире 42 кв. м
Прежде всего, в однокомнатной квартире 40 кв. м нужно выделить необходимые функциональные зоны: гостиную, спальню , кухню. При недостатке площади нередко все эти зоны «встречаются» в одном помещении, что является, к тому же, одной из модных и актуальных современных идей дизайна гостиной .
1. Спальня-гостиная на подиуме
На фото: Раскладной диван-кровать на подиуме в однокомнатной квартире 48 кв. м
Иногда недостаток жилой площади вынуждает обладателей однокомнатной квартиры отказаться от той или иной функциональной зоны. Профессиональные дизайнеры интерьера смогут задействовать весь «потенциал» помещения таким образом, чтобы члены семьи не испытывали ни малейшего дискомфорта. Для зонирования единого студийного пространства однокомнатной квартиры можно использовать подиум со встроенными ящиками для хранения. Раскладной диван, расположенный здесь, образует зону гостиной, а также выполняет функции спального места.
2. Диван, отделяющий гостиную от кухни
На фото: Дизайн кухни-гостиной в однокомнатной квартире 40 кв. м
Разделить зоны гостиной и кухни можно с помощью большого комфортного дивана. Спинка дивана служит одновременно перегородкой, при этом не нарушается концепция единого студийного пространства.
3. Гостиная-спальня и кабинет в комнате с балконом
На фото: Дизайн гостиной в однокомнатной квартире 40 кв. м
Дизайн помещений однокомнатной квартиры требует повышенного внимания к функциональности. Нередко необходимо, чтобы одна комната выполняла функции и гостиной, и спальни , и кабинета. Используя возможности модульной мебели, реализовать задуманное будет не так сложно. У окна лучше всего поставить письменный стол с удобными стеллажами для книг.
4. Небольшая столовая зона, отделенная барной стойкой от кухни
На фото: Дизайн столовой в однокомнатной квартире 40 кв. м
В студийном пространстве однокомнатной квартиры найдется место и для небольшой столовой зоны, которая служит элементом дизайна гостиной и в то же время удобно расположена рядом с кухней, отделенной от основного помещения барной стойкой.
5. Стеклянная прозрачная перегородка между гостиной и кухней
На фото: Дизайн гостиной в однокомнатной квартире со стеклянной перегородкой
Если кухня 9 кв. м и гостиная занимают смежные отдельные помещения, как при стандартной планировке, то установка стеклянной перегородки или дверей между ними будет оригинальным дизайнерским решением.
6. Как выделить столовую зону
На фото: Дизайн столовой зоны между кухней и гостиной в однокомнатной квартире 45 кв. мБлагодаря стеклянной части стены между кухней-столовой и гостиной, создается ощущение единого пространства, но в то же время острее чувствуется отдельность каждого помещения. Сходная цветовая гамма, акценты лимонного цвета задают особый тон всему интерьеру.
7. Компактная столовая зона на границе кухни-гостиной
На фото: Дизайн компактной столовой зоны в квартире-студии
Столовая зона может быть совсем компактной, как в данном дизайн-проекте. Небольшой минималистичный стол со стульями ар-деко расположен на границе между кухней и гостиной в студийном пространстве красивой квартиры , интерьер которой представляет собой эффектный микс стилей неоклассика, минимализм и помпезная классика.