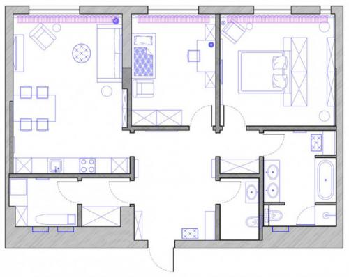
План квартиры 3 комнаты. С чего начать
- План квартиры 3 комнаты. С чего начать
- Перепланировка 3 комнатной квартиры 60м2. Планируйте с осторожностью
- Планировка трехкомнатной квартиры в панельном доме. Планировка трехкомнатной квартиры: вчера и сегодня
- Планировка 3-х комнатной квартиры 65 м2. 2-комнатные квартиры
- Планировка 3 х комнатной квартиры брежневка. Преимущества и недостатки
- Удачные планировки 3 комнатных квартир. Дизайн 3-х комнатной квартиры в панельном доме
План квартиры 3 комнаты. С чего начать
Разумеется, прежде чем начинать чертить чертежи самостоятельно или прибегать к помощи специалистов, стоит определиться с тем, что же вы хотите получить в результате.
Расширить кухню? Изменить внешний вид коридора? Получить дополнительную спальню, которую можно было бы выделить подрастающему ребёнку или пожилым родителям, решившим переехать к вам? Тщательно продумайте, а нужно ли вам вообще начинать ремонт в своей квартире? Ведь начав, бросить дело на полпути уже не получится. И работа может растянуться на многие недели и даже месяцы; это будет действительно тяжелое испытание и для ваших нервов, и для семейного бюджета.

Когда решение окончательно принято, можно начинать составлять план. Конечно, если вы можете себе это позволить, то лучше доверить работу специалистам. Ведь зачастую перепланировка квартиры сопровождается переносом или даже сносом стен.

первоначальный план 3-комнатной квартиры

вариант перепланировки трехкомнатной квартиры со сносом стен коридора
Только опытные специалисты смогут учесть все нюансы, гарантируя, что в результате вы получите совершенно безопасное и уютное жилье. Они учтут, какие стены в квартире являются несущими (а значит, с ними стоит работать только в крайнем случае), а какие – самонесущие. Учтут и материал, из которого построен дом.
Разумеется, у них есть планы различных домов со всеми характеристиками: толщиной стен, постоянными нагрузками, несущими конструкциями и так далее. Поэтому они смогут выполнить всю работу максимально качественно, независимо от того, в каком доме находится ваша квартира – 83 серии или 137 серии.
планировка трехкомнатной квартиры в домах 137 серии
Перенос или снос капитальных стен – очень важный процесс. И выполнять его можно только после получения разрешения в соответствующих органах.

Эту работу точно лучше доверить специалистам. Да, придется заплатить за их помощь. Зато в результате нужные документы будут собраны за считанные дни. В противном случае процесс их сбора вполне может затянуться на несколько недель или даже месяцев. Служащие контор будут отправлять вас из одного кабинета в другой, требовать всё новые и новые справки и разрешения. Тем, кто проходил эту процедуру, она вспоминается только в страшных снах.
Вы можете сами выбрать подходящий для вас проект:
- Стандартный проект. Он имеет относительно невысокую цену. Но не всегда может полностью удовлетворить требования владельца квартиры, так как был разработан по желанию другого заказчика.
- Уникальный проект. Обойдется вам довольно дорого, зато здесь вы будете вольны в своих фантазиях. Ваша квартира может быть преображена до полной неузнаваемости. Стандартная 3-хкомнатная квартира в панельной пятиэтажке может превратиться в роскошные апартаменты, отвечающие всем вашим требованиям.
Какой вариант выбрать? Решайте сами!
Как правильно снести стену в квартире.
Перепланировка 3 комнатной квартиры 60м2. Планируйте с осторожностью
Наиболее частой проблемой «хрущёвок» являются очень маленькие санузлы, потому при тотальном ремонте хозяева зачастую планируют расширение этих зон. Однако при этом не стоит забывать о санитарных нормах, которые гласят, что расширять туалет и ванную нельзя за счёт пространства кухни и жилых комнат.
Внимание! Увеличение этой зоны должно производиться лишь за счёт коридора, кладовки и других свободных пространств.

Увеличить площадь туалета и ванной можно только за счет коридора
Хозяйкам квартир в «хрущёвках» особое неудобство доставляет маленькая площадь кухни. Поэтому расширение её площади часто выходит на первый план при реализации масштабного ремонта.

Чаще всего при перепланировке встает вопрос увеличения кухонного пространства
И в этом вопросе вас могут ждать «подводные камни», ведь в большинстве квартир предусмотрена газопроводная система, что не позволит расширить пространство кухни за счёт санузла или жилых комнат. Чтобы реализовать свои идеи, можно пойти следующими путями:
- заменить газовую плиту электрической;
- совершить отделение кухонной зоны от жилой при помощи раздвижной перегородки;
- сократить площадь коридора либо кладовки.

Объединение кухни с жилой комнатой
Перепланировка помещений 3-комнатной «хрущёвки» даёт гораздо больше простора, нежели квартиры с меньшим количеством жилого пространства. Чтобы совершить удачную перепланировку «хрущёвки» 3 на комнаты, ознакомьтесь с фото готовых проектов.
Планировка трехкомнатной квартиры в панельном доме. Планировка трехкомнатной квартиры: вчера и сегодня
Трехкомнатные квартиры остаются на продолжении нескольких лет самыми востребованными. Независимо от площади конструктивных особенностей дома, планировка трехкомнатной квартиры позволяют правильно распределить имеющуюся площадь, обеспечив каждому члену семьи личное пространство и организовать место для семейного общения. Планировка трехкомнатной квартиры фото дают представление об общих тенденциях массового жилищного строительства.
Трехкомнатные квартиры вторичного рынка
Трехкомнатные квартиры в сталинках
Жилье в домах постройки времен сталинской эпохи отличаются многообразием планировочных решений, так как понятия «типовое строительство» еще не существовало. Планировка трехкомнатной квартиры отражала социальный статус жильцов: можно встретить как жилье большой площади порядка 80 м2 в жилье для элиты, так и маленькие комнатушки с кухнями-пеналами в рядовом жилье. Общим будет только большая высота потолка от 2,8 до 3,6 м.
Планировка трехкомнатной квартиры в «сталинке» представляет собой большой широкий коридор — ось, ведущая к просторной кухне, на ось «нанизаны» отдельные комнаты. Ближайшая к выходу комната — самая большая по площади — зал, к ней примыкает спальня. Еще одна спальня находится в конце коридора напротив кухни. Кухня и спальня разделены блоком санитарных помещений: ванной и туалетом, иногда там же может находиться кладовая.
Как вариант, иногда кухню располагали рядом со входом.
Жилье в домах сталинской постройки пользуются спросом из-за расположения в центре городов, высоких потолков, качественного строительства, хотя зачастую перекрытия в них выполнены по деревянным балкам, а перегородки из фанеры со штукатуркой по дранке.
Планировка 3-х комнатной квартиры 65 м2. 2-комнатные квартиры
В первую очередь здесь стоит выделить 2-комнатные квартиры в серии П44Т. Важно отметить, что в этой серии два типа планировок двухкомнатных квартир и мы здесь поговорим о так называемой "распашонке".

2- комн квартира, стоимость которой часто выше, чем у некоторых серий 3-комн квартир
1 - жилая комната 17,5м2, 1а-лоджия 3,8м2, 2- жилая комната 13,5м2, 2а - лоджия 4,5м2, 3 - кухня 12,5м2, 4 - саунзел 4м2, 5 - коридор 9,7 м2
из просторного коридора вы попадаете в две комнаты
Площадь квартиры 65м2 и поверьте нет ни одного беполезного сантиметра в этой квартире!
Это идеальная квартира для семьи 2+2.
Эркер на 12-метровой кухне-столовой дает ощущение простора. Площадь кухни позволяет разметить всю семью за просторным столом.
просторная кухня с эркером - много света и возможностей для расстановки мебели
В меньшей комнате часто присоединяют одну из лоджий, создавая там место для учебы детей или небольшого кабинета.
из-за высокого спроса часто собственники сильно "задирают цены" на такие варианты планировок. а застройщики строят такие варианты планировок даже в монолитных домах.
Еще один вариант 2-комнатные квартиры в серии П55м
Квартира общей площадью 66м2 с двумя просторными спальными комнатами.
Одна из комнат имеет площадь 21,4м2 идеальная для размещения двух детей. Эркерное окно дает больше света.

две лоджии дают возможность увеличить площадь комнаты за счет переноса оконного блока
Серия П55М строилась только в Москве: в районе Марьинский Парк, Южное Бутово, Жулебино, Кунцево, Академический, Сокол, Богородское, Бескудниково, Перово, Очаково.
Планировка 3 х комнатной квартиры брежневка. Преимущества и недостатки
«Брежневки» представляют собой улучшенный вариант «хрущевки». Квартиры стали больше по площади. Если минимальная площадь «хрущевок» была 31 кв. м, то в «брежневках» она увеличилась до 33 кв. м. Максимальная площадь в 4-х комнатных квартирах могла достигать 76 кв. м.
В многоэтажных постройках в них появились лифты и мусоропроводы, что заметно увеличило комфорт проживания в данных домах. В то же время засорение мусоропроводов могло стать причиной появления неприятного запаха, насекомых и грызунов.
Если говорить о конструкции, то в «брежневках» несущими стали не только внешние стены дома (как было в «хрущевках»), но и стены между квартирами, что, с одной стороны, придало постройке большую устойчивость, а с другой – затруднило возможность перепланировки, так как несущие стены сносить запрещено.
Еще одним достоинством было то, что санузел стал раздельным. Совмещенным он остался только в некоторых однокомнатных квартирах. Несомненно, это стало большим плюсом. Высота потолков в «хрущевках» составляла примерно 2.4 метра, в «брежневках» стала 2.7 метра. Площадь лестничных пролетов тоже стала немного больше.
Если в «хрущевках» одна из комнат была проходной, то в «брежневках» все комнаты стали изолированными и могли выходить на разные стороны . Вместо балконов иногда появились лоджии. Несомненно, это стало большим плюсом.
Однако кухни, если и увеличились по размерам, то не намного. В среднем, как и в «хрущевках», их площадь составляла 6-7 кв. м. Дворы также остались довольно благоустроенными и уютными.
Если говорить о недостатках «брежневки», то можно сказать о том, что в домах этого типа, построенных из тонких панелей, зимой было холодно, а летом жарко. Кроме того, эти панели обладали плохими шумоизоляционными свойствами. Также в «хрущевках» были встроенные шкафы и кладовки, а в «брежневках» они остались только в коридорах.
Удачные планировки 3 комнатных квартир. Дизайн 3-х комнатной квартиры в панельном доме
Жилье в панельных домах отличается не только небольшой площадью, но и рядом ограничений, которые предстоит учитывать во время ремонта. Главное из них – невозможность масштабной перепланировки, поскольку стены и перекрытия монолитны и демонтировать или существенно их изменить очень сложно.
Высота потолков и площадь функциональных помещений (прежде всего кухни и санузла) также диктуют условия будущего дизайна. Увеличить площадь кухни возможно за счет коридора, ведущего к ней, и кладовой. Для хранения полезных или лишних на кухне предметов лучше выделить отдельную нишу в кухонной зоне.

Убрав, казалось бы, небольшую кладовую, вы получите дополнительные сантиметры площади, которых раньше не хватало для размещения более удобного мягкого уголка, шкафчиков или широкого холодильника.

Если кладовая находится в одной из жилых комнат, то оборудовать в ней гардеробную или расположить вместительный встроенный шкаф будет отличной идеей. Так площадь комнаты не пострадает, а спальня станет более удобной и практичной.

Дизайн от Екатерины Нечаевой и Ирины Маркман
Если у вас подрастает несколько детей, каждому из которых необходимо создать собственное личное пространство, а комната для этого одна, стоит использовать полную или частичную перегородку для разделения комнаты на две зоны. Аналогичный прием можно использовать для разделения комнаты на спальню и кабинет или рабочую зону. Для увеличения площади, можно присоединить балкон или лоджию к жилой комнате, оформив там домашний офис или дополнительную зону для отдыха.

Интерьер от студии Ariana Ahmad Interior Design
Проект квартиры № 1 (100 кв. м)
Трехкомнатная квартира принадлежит молодой паре с ребенком.








Трехкомнатные квартиры в сталинках