Однокомнатная квартира с ребенком планировка. Однушка 35 кв. м для семьи с двумя детьми
- Однокомнатная квартира с ребенком планировка. Однушка 35 кв. м для семьи с двумя детьми
- Дизайн однокомнатной квартиры 30 кв.м для семьи с ребенком. Дизайн однокомнатной квартиры для семьи с двумя детьми
- Дизайн однокомнатной квартиры 36 кв.м с ребенком. Общие правила обустройства квартиры с детской
- Дизайн комнаты 16 кв м для семьи с ребенком. Основные способы зонирования
- Дизайн однокомнатной квартиры для семьи с ребенком подростком. Общие принципы разделения
- Видео жизнь с ребёнком в однушке 30 кв м Рум Тур по однушке
Однокомнатная квартира с ребенком планировка. Однушка 35 кв. м для семьи с двумя детьми
Изолированную комнату отдали под детскую, а в кухне-гостиной установили удобный диван-кровать и вместительную систему хранения.

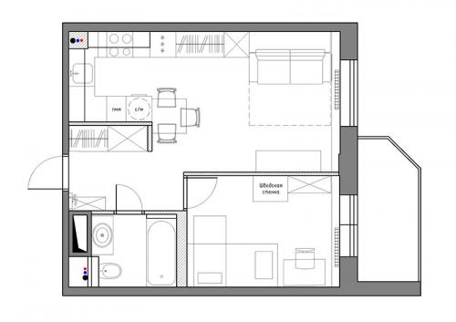
Площадь однокомнатной квартиры в ЖК «Юнион» в Санкт-Петербурге, которую оформили специалисты бюро Cubiq Studio, составляет всего 35 м2. Жить в ней планирует семья с двумя детьми. Им могло бы быть тесно на скромной площади, если бы не главное преимущество квартиры. Коммуникации подведены в более глубокой и темной части большой комнаты. Благодаря этому удалось превратить её в кухню-гостиную, а маленькую изолированную спальню превратить в детскую.

Поскольку родителям предстоит спать в гостиной, дизайнеры выбрали диван-трансформер, который превращается в полноценную двуспальную кровать. Напротив неё установили комод под телевизор и пару открытых полок для книг.

Зону прихожей отделили от основного пространства нишей со встроенным шкафом для верхней одежды. А чтобы помещение не казалось тесным, в холле установили большое зеркало в белой раме, а проем оставили широким. Благодаря этому комната будто продолжается за пределы прихожей.

Кухонный гарнитур встроили в небольшую отведённую для него нишу. Выбрали максимально вместительную П-образную модель с минималистичными белыми матовыми фасадами. Верхние шкафы чуть уже, а нижние – вровень со шкафом, который как будто их продолжает. На самом деле это система хранения для всех вещей, которые необходимы большой семье.

Поскольку зона кухни уж очень тесная, одну из стен освободили от верхних шкафов. Вместо них предусмотрели открытые полки для зелени и специй. В качестве кухонного фартука здесь использовали грифельную краску.

В детской комнате появилась двухъярусная кровать, причём спальные места расположены перпендикулярно друг другу. Это позволило внизу обустроить дополнительные полочки и зону отдыха с пуфом-игрушкой. Рядом – письменный стол со всеми необходимыми принадлежностями.

Шкаф выбрали с открыто-закрытой системой хранения. Это позволяет хранить в нём и повседневную одежду, и игрушки с книжками. Предусмотрели и компактную шведскую стенку, которая занимает минимум места.


Хотите видеть больше подобного в своей ленте – ставьте лайк.
Чтобы регулярно смотреть свежие подборки интерьеров со всего мира, подпишитесь на канал .
Дизайн однокомнатной квартиры 30 кв.м для семьи с ребенком. Дизайн однокомнатной квартиры для семьи с двумя детьми
Процесс создания уютного жилища заметно усложняется, если в семье подрастают двое детей. Особенно если они разного пола и возраста.
Спасительным решением станет двухъярусная кровать. Помимо двух мест для сна, конструкция может иметь выдвижные ящики. Если для обоих детей необходимы столы для занятий, присмотритесь к длинным столешницам, за которыми поместятся сразу двое. Если же они разного возраста, лучше обустроить два отдельных места.
Скромные квадратные метры — еще не повод огорчаться и ставить крест на перспективах уютного и гармоничного совместного проживания. В качестве примера предлагаем рум-тур по квартире любимого нами блогера Марины Ведровой, в которой она проживает с мужем и двумя мальчуганами. Как ей удалось организовать пространство, вы узнаете из


Дизайн от студии Однушечка

Дизайнер Вера Василенко
Дизайн однокомнатной квартиры с нишей для семьи с ребенком
Такая планировка отчасти упрощает выбор места для кровати или дивана. Логичным кажется разместить их именно в нише, поскольку отделять перегородкой придется только одну сторону. Это самый простой и очевидный способ организации родительской зоны. Но далеко не единственный. Потолок разного уровня, фактура и цвета отделки послужат дополнительными средствами зонирования пространства.

Планируя интерьер однокомнатной квартиры для семьи с ребенком, не упустите из виду освещение. Тем более что в одной комнате придется совместить столько функций. Здесь должно быть достаточно света для чтения, каких-то домашних дел, но при этом было бы неплохо иметь возможность регулировать интенсивность света, чтобы в вечернее время можно было создать более мягкую атмосферу.
Нужен ли ночник, если вы встаете ночью, чтобы покормить и успокоить малыша? Или настольная лампа на письменном столе школьника? Торшер или напольная лампа возле кровати родителей, возможно, хватит и компактных прикроватных светильников? Отвечая на эти вопросы, вы поймете, что является необходимостью.
Если у вас низкие потолки, обратите внимание на точечные светильники, они дают много света и при этом очень компактны. Подсоединив их к разным выключателям, можно будет регулировать количество света в разных частях комнаты. Если же высота позволяет, подберите красивую люстру под стиль интерьера.




Дизайн однокомнатной квартиры 36 кв.м с ребенком. Общие правила обустройства квартиры с детской
К детской, гостиной, спальне предъявляются разные требования. При оборудовании одной комнаты их придется учитывать. Разумеется, все нюансы в такой ситуации реализовать невозможно, следует ориентироваться только на общие, обязательные моменты. Перед тем, как выполнить ремонт однокомнатной квартиры с детской, необходимо заняться разработкой проекта, по которому будет приобретаться отделочный материал, мебель.
В выборе дизайна учитывается:
- количество жильцов;
- возраст ребенка;
- размеры помещения.
Если в квартире проживают два человека одного пола, можно не выполнять полноценного зонирования. Достаточно условного разделения комнаты. При необходимости оборудовать в однокомнатной квартире детскую для ребенка с родителями, нужно найти вариант, позволяющий частично ограничить доступность, просмотр, обеспечить определенную приватность.
Возраст ребенка имеет значение. Есть большая разница между обустройством детского угла в однокомнатной квартире для новорожденного или для школьника.
В стандартном жилье площадь комнаты обычно не превышает 30 м2. В таком помещении придется ограничивать применение конструкций, мебели для зонирования. Это поможет исключить перегруженность, неудобства в перемещениях. Площадь студий в новостройках может быть около 60 м2
При планировании нужно учесть, что ремонт в однокомнатной квартире с детской придется делать регулярно. По мере роста, взросления ребенка будут меняться его интересы, зона будет меняться, увеличиваться в размерах.
Дизайн комнаты 16 кв м для семьи с ребенком. Основные способы зонирования
Все виды зонирования сводятся к двум основным:
- С использованием реальных отделяющих предметов.
- «Невидимое» зонирование.
Первый вариант – это всевозможные перегородки, фальшстены или просто мебель, выполняющая функцию разграничения.

Дизайн однокомнатной квартиры для семьи с ребенком необходимо продумать основательно.
В горизонтальном пространстве зонировать комнату таким образом выгодно в случае немалых кв м. Но, если позволяет высота потолков, такой тип зонирования отлично подойдет для создания дополнительного яруса.
«Невидимое» зонирование – это разделение пространства за счет разных цветов напольного и настенного покрытия. В случае небольшой однокомнатной квартиры – самое оно.

Учитывается все до мелочей, мебель располагается наиболее рациональным способом.
Особенности выбора стиля квартиры для семьи с ребенком
Справедливо, что для семьи с ребенком приоритетнее практичность, нежели стиль. Но разве стоит себе отказывать в эстетическом наслаждении? Предлагаем рассмотреть стиль интерьера, гармонично соединяющий в себе красоту с не меньшей степенью практичности.

С появлением в семье маленького ребенка еще больше увеличивается потребность в правильной планировке жилого пространства и увеличении его функциональности.
Стиль «Контемпорари»
Общие черты. Сочетание несочетаемого, да так, чтобы это было действительно красиво и удобно – в этом вся суть контемпорари.

В основу этого стиля легли скандинавский, конструктивизм и минимализм.
Это бюджетный вариант, в котором вы можете смело себе позволить недорогую мебель, простую однотонную отделку стен и полов.
Подойдет вариант даже с бабушкиной стенкой вместо новомодного шкафа-купе. Главное, чтобы мебель была удобной, вместительной и многофункциональной. Ведь красота в простоте и обилии свободного места. Так что забудьте о привычке складировать ненужные вещи. А увеличить пространство можно за счет максимальной функциональности, используя:
- Раскладной стол-трансформер.
- Модульную мебель.
- Раскладные формы диванов.
- Мебельную стенку.

Однокомнатное жилье, как правило, имеет небольшую площадь. Поэтому главным его недостатком является нехватка места.
Дизайн однокомнатной квартиры для семьи с ребенком подростком. Общие принципы разделения
Маленькая жилплощадь предполагает наличие обязательных функциональных зон – кухни, ванной комнаты, санузла, зоны сна и отдыха, рабочего места. Найти в таком ограниченном пространстве уголок для детской – задача не из легких.

Осуществить задуманное помогут основные правила планировки жилья и идеальные помощники зонирования:
- Расширение пространства. Единственным способом физического увеличения метража квартиры является снос межкомнатных перегородок. Задумав ремонт с демонтажем стен, следует позаботиться о законности такой перепланировки и утверждении проекта в соответствующих службах. Наиболее популярно объединение жилой комнаты с помещением балкона, лоджии, коридора или кухни (студия). Визуально же расширить пространство помогут панорамные окна, зеркала, светлые стены.
- Освещение. Квартира, в которой будет расти и развиваться ребенок, априори должна быть хорошо освещена. Тем более что правильный рассеянный свет добавляет помещению легкости и создает оптическую иллюзию простора.
- Лаконичный интерьер. Дизайн однокомнатной квартиры для семьи с ребенком должен обеспечивать комфорт, не перегружая и без того небольшое помещение массивной мебелью. Уютный эко-стиль, семейный прованс, лаконичный минимализм и многофункциональный хай-тек – идеальные варианты оформления интерьера малогабаритной квартиры.
- Цветовая гамма. Выделение разных зон помещения при помощи цвета и различных отделочных материалов – еще одна хитрость дизайнеров. В детской зоне будут уместны такие элементы, как яркий ковер, цветное покрывало, разноцветные подушки.
- Трансформация и многофункциональность мебели. Функциональная и эргономичная мебель – залог удачного зонирования. Чудеса мебельной трансформации позволяют не только экономить ценные жилые метры и моделировать пространство. Одно движение – и спальня превращается в кабинет, кровать – в уютный диван, часть шкафа – в рабочий стол.