Как из однушки 40 кв м сделать двушку. Из однушки получилась двушка, перепланировка
- Как из однушки 40 кв м сделать двушку. Из однушки получилась двушка, перепланировка
- Перепланировка однокомнатной квартиры 40 кв.м в двухкомнатную. Однушку в двушку: популярные варианты перепланировки
- Перепланировка однушки в двушку с детской. Готовые схемы проектов переделки однокомнатной квартиры в двухкомнатную разной площади
- Из однушки двушка 40 кв м. Из однушки в двушку (40 кв. М): современная классика
- Видео как переделать ОДНУШКУ В ДВУШКУ | Дизайн интерьера однокомнатной квартиры 48 кв.м.
Как из однушки 40 кв м сделать двушку. Из однушки получилась двушка, перепланировка
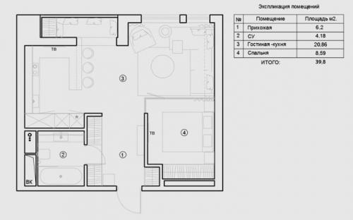
При покупке заказчиками эта уютная квартирка площадью 44 кв.м была со свободной планировкой — то есть с возможностью расставить стены и перегородки, как душе угодно. Перед нами стояла задача сделать из однушки двушку: вместить сюда спальню и гостиную-гостевую. Смотрите ниже, что получилось!
— Кухня с панорамным видом — просто мечта!
— Мы объединили лоджию с кухней, чтобы максимально увеличить площадь. Получилось и правда круто! Здесь чуть более 15 кв. м, есть телевизор и уютный диванчик, чтобы посидеть с друзьями или посмотреть за ужином кино в одиночестве.
— Обычно вы стараетесь оттенить чем-то белые фасады — ярким фартуком или стенами. Почему тут решили сделать всю кухню белой?
— Хотелось подчеркнуть воздушность интерьера, добавить простора. Светлая кухня не выглядит скучной и блёклой, потому что глазу есть за что зацепиться. Тут притягивают внимание молдинги на кухонных шкафчиках и стенах, золотистая фурнитура, плитка на полу, цветные мягкие стулья и цветочные принты в рамах в столовой зоне — пусть все эти детали не яркие, но они в совокупности делают интерьер кухни очень интересным и насыщенным.
— Какого размера получилась эта гостиная?
— Маленького, всего 8 кв.м :) Что поделать, перепланировка однушки в двушку крадёт место. Если разложить диван, то останется проход вдоль стены с телевизором. Но и цель достигнута: нам нужно было сделать изолированную комнату, в которой можно посидеть вечером с книгой или перед теликом, и где могли бы при случае переночевать родственники или друзья.
За дверью слева находится миниатюрная спальня – чтобы в неё хоть немного проникал дневной свет, мы сделали межкомнатные двери с матовыми стеклянными вставками.
— Ой, это что, вся спальня? Размером с кровать?
— Такая малютка, да. Зато отдельная. :) Чтобы расширить визуально пространство, мы сделали одну стену зеркальной — ту, что за туалетным столиком. Я знаю, есть люди, которым не понравилось бы спать напротив зеркала, но у заказчицы, к счастью, на этот счёт предубеждений нет. Слева, за шторкой, находится большая гардеробная.
Совет дизайнера
Очень маленькую комнатку лучше сделать максимально светлой, с однотонными стенами без крупных рисунков и картин. Визуально можно увеличить пространство с помощью крупных зеркал и глянцевой мебели. Чтобы комната без окна не превратилась в мрачную каморку, выбирайте дверь с большими стеклянными вставками, через которые хоть немного будет попадать дневной свет.
— Сантехника золотого цвета выглядит очень необычно.
— Да, и как всё необычное, стоит дороже. :) Санузел редко входит в дизайн-проект, однако в этом случае заказчица решила не экономить на визуализации. Здесь нет каких-то невероятных дизайнерских решений, могу только обратить внимание на идею с тем, как можно изящно вписать стиральную машину под столешницу с умывальником. Главный секрет в том, чтобы стиралка и мебель были одинакового цвета.
Перепланировка однокомнатной квартиры 40 кв.м в двухкомнатную. Однушку в двушку: популярные варианты перепланировки
«Затевать перепланировку однушки в двушку можно и нужно, если общая площадь квартиры насчитывает хотя бы 40 квадратов»
Перекроить однокомнатную квартиру, передвинуть в ней стены, адекватно отделать – даже при наличии утвержденного плана – будет делом нелегким. Малогабаритное жилье в прямом смысле не дает развернуться. Затевать перепланировку однушки в двушку допустимо и нужно, если общая площадь квартиры насчитывает хотя бы 40 квадратов. В меньших пространствах сделать из однушки действительно уютную двушку будет архисложно.
Идей по изменению внутреннего пространства жилья предлагается много, но в основном они отличаются дизайнерским решением. В основу перепланировки заложены стандартные решения. Какое из них будет выбрано – зависит от исходных параметров видоизменяемого жилья.
Вариант 1
Наиболее популярным видом трансформации однушки в двушку является создание квартиры-студии. Особенно нравится подобный подход молодежи, симпатизирующей современным направлениям оформления интерьеров.
Планировка такого жилья предполагает выделение в отдельную комнату спальни и объединение в единое пространство площадей гостиной и кухни. Разделение последней, при перепланировке однушки в двушку, чисто символическое. Без использования раздвижных перегородок и штор. Зоны принято разграничивать: разной фактуры отделкой, игрой цветов, архитектурными элементами. Например, в кухонной части может быть приподнят пол и на входе в нее образована ступенька.
Создавая из однушки уютную двушку-студию, важно использовать только модерновую отделку. В интерьере должна появляться исключительно современная мебель, желательно привлекающая нестандартностью своей конструкции или дизайна.
В такой квартире должен царить абсолютный порядок. Обилие декора и просто бардак лишит интерьер свежести, украдет пространство и вообще сведет его эффектность на нет.
Нужно учитывать, что используя этот вариант преобразования однушки в двушку, жильцам придется терпеть определенные неудобства, а именно – разносящиеся по гостиной запахи кухни. Но если никого из квартирантов это не смущает, то в остальном – решение вполне комфортно.
Вариант 2
Он предлагает из однушки сделать двушку посредством передела комнаты гипсокартонной стеной, с последующим переносом межкомнатных дверей. Об использовании кирпичной кладки речь в квартирах обычно не ведется. Такая стена будет тяжела и усилит нагрузку на межэтажное перекрытие.
Эта идея перепланировки онушки в двушку может и должна быть взята за основу, если комната крупногабаритна и в ней предусмотрено два окна. В этом случае есть шанс получить два полноценных, возможно даже изолированных пространства, площадь которых можно задействовать по своему усмотрению.
В малогабаритных комнатах также можно поставить перегородку, но не гипсокартонную, а преобразовать однушку в двушку при помощи стекла. За стеной из стеклоблоков можно обустроить кабинет или миленькую спальню.
Вместо стационарного перестенка можно установить раздвижные панели из стекла. Удачным дизайнерским ходом будет использование витража.
Наиболее сложна перепланировка квадратной однушки в двушку. Единственное окно и пропорциональные стены очень ограничивают варианты дизайна и организации пространства.
Вариант 3
Менее популярный, но все же пользующийся спросом способ преобразования однушки в двушку – задействование штор. Используя данный прием, можно получить две комнаты без крушения стен и кучи согласований. За плотной тканевой перегородкой можно организовать уютный спальный уголок или комфортную рабочую зону. Текстильная ширма не крадет пространство, зато высоко функциональна и при необходимости может быть убрана одним движением руки.
Вариант 4
К делу получения из однушки уютной двушки привлекается мебель. Роль разграничителей пространства берут на себя высокие стеллажи, шкаф и прочие предметы обстановки. Главное, чтобы они не были громоздкими, и их присутствие было оправдано потребностью дизайна интерьера.
В общем, из однушки сделать двушку вполне реально. Главное иметь желание, не бояться подключать фантазию и использовать качественные отделочные материалы. Оригинальный план и его грамотное воплощение позволит обжить даже столь скромную квартиру с максимальным комфортом.
Перепланировка однушки в двушку с детской. Готовые схемы проектов переделки однокомнатной квартиры в двухкомнатную разной площади
При перепланировке в 38 кв м учитывается все до мелочей. Для такой квартиры лучше всего подойдут такие стили, как хай-тек, скандинавский или кантри. При использовании одного из стилей в квартире будет уютно и просторно. Важно заранее все распланировать, как из однушки сделать двушку и постепенно начать перестройку. Главное, выбрать подходящий вариант и тем самым можно преобразить свою жилплощадь.

Спальная зона выделена в небольшую, но отдельную комнату. Большая часть пространства досталась кухне-гостиной, в которой раскладной диван служит дополнительным местом для сна
При 40 кв м комнаты могут быть открытыми, что придаст квартире неповторимый вид. При перепланировке в любой интерьер можно внести “изюминку” и тогда все будет смотреться изящно и красиво. Каждому хозяину квартиры можно создать индивидуальный проект и решить как из однушки сделать двушку 40 кв. Разграничивая помещения в квартире нужно сделать так, что все было компактно расставлено.

Приватное место для ночного отдыха размещено за стеклянной перегородкой, что позволило сохранить в спальне естественное освещение
При 43 кв м будет уютно, если разграничить основную комнату перегородкой. У тех, у кого есть дети сделать для них игровую комнату. Если владелец проживает один, то ему можно создать уютное офисное помещение. Все гармонично сочетаться в соответствие с установленными правилами.

Комната с двумя окнами разделена на спальную и гостиную зоны, последняя отделена от кухни барной стойкой
При 45 кв м в одной комнате можно установить кровать и диван без потери основного стиля. Вторая половина может быть занята кухней в американском стиле. Здесь можно все разграничить так, чтобы уместились:
- напольные вешалки;
- небольшие шкафчики;
- напольный торшер;
- столик;
- диван и т.д.

Благодаря перепланировки удалось организовать просторную кухню-гостиную и уютную спальную зону с небольшим гардеробом
При 50 кв м может получиться в одной половине уютная спальня, а в другой отдельный уголок отдыха. В качестве перегородки можно поставить прозрачные. Это придаст помещению современный, презентабельный вид. В квартире может быть объединена кухня с гостиной и отдельная спальня. Все это может быть удобным вариантом для семейной пары.

Функциональный интерьер с достаточно большой спальной комнатой, кухне-гостиной и рабочим кабинетом на утепленной лоджии
При перепланировке 55 кв м можно сделать интерьер в швейцарском стиле, использовав светлые оттенки. Интерьер лучше не перегружать лишними деталями, а повесить украшения на стены и потолок. Если даже дизайн простой, то интерьер может получиться стильный и современный.

Из однушки двушка 40 кв м. Из однушки в двушку (40 кв. М): современная классика
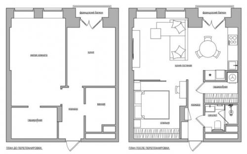
До ремонта квартира представляла собой кухню и одну прямоугольную длинную комнату, которую владелец захотел разделить на гостиную и спальную зону.
Превратить однушку в двушку удалось за счет стеллажа с открытыми и закрытыми полками, помогли в этом и разные обои, используемые в этих зонах.
Кровать отправилась к окну, так как в противоположном конце расположены двери. Итак, давайте по порядку!
Перепланировка однушки в двушку: внимание к деталям
1. Разные обои
Геометрию комнаты получилось визуально исказить благодаря использованию разных обоев. Было решено остановиться на трех видах, отличающихся и цветом, и рисунком. Плюс ко всему с их помощью была выделена гостиная зона.
2. Правильная мебель
Разделить пространство помог не только стеллаж, но и угловой диван, который отлично там вписался. В гостиной и спальне использованы разные напольные тумбы, причем граница разделения проходит не по линии диван-стеллаж, а чуть глубже в зоне гостиной. И это правильное решение, так как строгое разграничение создаст дисбаланс в дизайне.
Журнальный столик из той же коллекции, что и тумба напротив него. Всегда подбирайте мебель в одном стиле, и целостность интерьера будет обеспечена.
3. Декор
Объединяющим звеном между спальней и гостиной стали изображения балерин на стенах. И дабы комната выглядела интересней, рамы подобраны в двух цветах: черном и белом.
4. Освещение
Вдоль всей комнаты по одной линии установлены потолочные встраиваемые светильники, благодаря чему в вечернее время интерьер наполняется светом. В гостиной решающую роль в освещение играет подвесная люстра, которая плюс ко всему стала дополнительным привлекательным акцентом, а в спальне вполне достаточно лаконичной настольной лампы.
Небольшая, на первый взгляд, кухня, кажется очень уютной и функциональной. Здесь нашлось место даже для мягкого дивана. Классический стиль в интерьере прослеживается во всем: сам кухонный гарнитур, обеденный стол на толстой ножке, стулья с мягкой обивкой и узорами, похожими на те, которые украшают фартук, обивка дивана, шторы. Нотки современности вносят лишь картины и красивая люстра.
Стена за обеденным столом, как и обод балконного выхода, оформлена в темном цвете, за счет чего дизайн кухни кажется более интересным.
Ванная комната оформлена в похожей цветовой гамме, как и кухня. Использована бежевая и коричневая плитка, на границе которых уложена мозаика таких же оттенков. Она же использована для отделки самой ванной.