50 вариантов расстановки мебели в однокомнатной квартире. По какому принципу нужно размещать мебель в однокомнатной квартире
- 50 вариантов расстановки мебели в однокомнатной квартире. По какому принципу нужно размещать мебель в однокомнатной квартире
- Расстановка мебели в квартире 32 кв м. Особенности планировки 1 комнатных квартир 32 м кв
- Расстановка мебели в однокомнатной квартире с ребенком. Особенности планировки
- Как расставить мебель в однокомнатной квартире с двумя детьми. Как распределить пространство однокомнатной квартиры семье с двумя детьми
- Расстановка мебели в маленькой квартире. Дизайн маленьких комнат (200 фото): примеры идеального оформления, выбор цвета и стиля, планировка и зонирование
- Как расставить мебель в однокомнатной квартире с балконом. Варианты расстановки мебели в однокомнатной квартире, советы дизайнеров
50 вариантов расстановки мебели в однокомнатной квартире. По какому принципу нужно размещать мебель в однокомнатной квартире
Во время планирования расположения мебельного гарнитура следует учитывать число проживающих людей, их вкусы и предпочтения. К основным принципам размещения относится:
- Зрительные эффекты увеличение пространства – правильно подобранные рисунок и цвет стен, использование зеркал, идеальное освещение и фотообои.
- Функциональный мебельный гарнитур – применение складывающихся предметов, которые можно спрятать в нишу или шкаф, ширмы на колесах, шкафы-купе, подвесные гардеробные.
- Правильное использование площади – такой вариант возможен благодаря объединению комнаты и кухни. Перепланировка включает в себя избавление от перегородок или наоборот их добавление за счет шкафов или кровати (эти предметы станут отличным вариантом для зонирования).
Перед тем, как расставить мебель в однокомнатной квартире, тщательно измерьте свое жилище, уже имеющиеся предметы интерьера и составьте подробный план на бумаге.Выбирать лучше компактную мебель, которая не будет слишком загружать помещение. Также отличным вариантом станет дележка комнаты на зоны. Идеальный вид расстановки заключается в том, чтобы мебель стояла максимально близко друг к другу и под стенами, а не в центре.
Ваша задача – создание свободного пространства, но не в ущерб удобствам.
Также новыми местами для сохранности предметов могут стать:
- Стена – навесные полки могут гармонично вписаться в дизайн, при этом добавят свободного пространства, предназначенного для хранения самых разнообразных вещей.
- Углы – можно установить угловой шкаф, трюмо или комод.
- Подоконник – на нем можно просто сидеть, поставить какие-то предметы или под ним организовать тумбочку.
- Прихожая – под потолком всегда найдется немного места для монтажа полок.
При правильном подходе позволяет визуально расширить пространство и снизить влияние неудачных особенностей конфигурации помещения.В небольших квартирах лучше использовать светлые тона. Комфортное проживание полностью зависит от планировки. Даже самая мелкая смена перегородок может подарить желаемый результат.
Хорошо подумайте и решите, какую мебель вы хотите поставить.
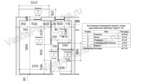
Расстановка мебели в квартире 32 кв м. Особенности планировки 1 комнатных квартир 32 м кв
Планировка квартиры 1 комнатной 32 м2 зависит от проекта дома в котором построена квартира, от наличия несущих стен или колон, расположения их в помещении , от присутствия на планировке балкона или лоджии. от расположения дверных и оконных проемов на стенах. Все эти моменты вызывает у жильцов и дизайнеров интерьера много сложностей, поскольку нужно в таком малогабаритном помещении вместить много бытовых предметов используемых в жизни, а за частую проекты настолько на проработанные проектировщиками, что приходится делать перепланировку.
(Чертеж) 1 комнатная квартира планировка 32 кв м с размерами без балкона (лоджии)
В зависимости от времени постройки дома 1-комнатное жилье бывают 2 видов:
- тесное жилье в старых панельных, блочных или кирпичных зданиях;
- квартиры однушки в современных высотных новостройках.
Планировка однокомнатной квартиры отличается от планировки студии отсутствием у второй перегородки между комнатой и кухней.
Типичными особенностями планировки 1 комнатных квартир 32 м кв являются низкие потолки, маленькие кухни и ванные, узкие коридоры, частое отсутствие балконов, иногда наличие гардеробных в которых при необходимости устраивают прачечную.
Чертеж однокомнатной квартиры 32 кв. м. с размерами Серия дома: II-18(II-18-01/09)
Но за таким жильем проще ухаживать, расходуется меньше денег на обстановку мебелью и ремонт квартиры. Кроме того, в подобном жилье гораздо теплее, потому что они чаще располагаются во внутренней части дома, между другими жилищами.
Расстановка мебели в однокомнатной квартире с ребенком. Особенности планировки
Самым проблемным местом в дизайне однокомнатной квартиры является то, что у вас есть всего одна комната, в которой необходимо уместить гостиную, спальное место для взрослых, детскую зону, пространство для работы или учебы.
Определяющие факторы при выборе планировки однокомнатной квартиры:
- Количество детей. Для одного ребенка нужно меньше места, чем для двоих или троих.
- Возраст детей. У вас груднички, дошкольники или школьники?
- Количество взрослых членов семьи. Дети проживают с мамой, с обоими родителями, с бабушкой, дедушкой?
Ответы на эти простые вопросы позволят вам определиться с количеством функциональных зон, их габаритами, мебелью, которая нужна в каждой.

На фото пример планировки узкой однокомнатной квартиры
В просторных студиях со свободной планировкой, когда площадь однокомнатной квартиры превышает 45 квадратных метров, можно возвести стену, выделить малышу отдельную детскую комнату. Спальню взрослых в этом случае объединяют гостиной или также отделяют стенкой или перегородкой, если позволяет свободное место.
В стандартной однушке почему бы не обустроить детскую на кухне или на балконе? В первом случае основная сложность в переносе коммуникаций. В однокомнатной квартире, оборудованной газом, производить такие манипуляции строго запрещено. Во второй ситуации придется потратиться на утепление балкона, зато в результате получится уютное и светлое, хоть маленькое, место для ребенка с большими окнами.
Если детей двое , то в квартире для семьи с ребенком придется идти на хитрости: использовать все пространство от пола до потолка. В этом помогут двухъярусные кровати или спальные места, расположенные под подиумом, скрытые в дневное время. На подиуме возможно расположение письменного стола, игровой, зоны для хранения вещей.

Как расставить мебель в однокомнатной квартире с двумя детьми. Как распределить пространство однокомнатной квартиры семье с двумя детьми
«Разграничить спальные места родителей и детей можно, установив складные ширмы или занавески – они практически не занимают места, зато ограждают детский и взрослый уголки от основного помещения»
С комфортом устроиться на 35–40 квадратных метрах, конечно, непросто, однако при грамотном планировании и умелом зонировании даже эта задача вполне осуществима.
Определяя оптимальное местоположение всех необходимых для жизни вещей и предметов обстановки, нужно четко понимать, что даже в небольшой квартире должны быть отдельные зоны для каждой задачи: спальные места для всех членов семьи, место для приема гостей, рабочая зона с компьютером и письменным столом,для семейных обедов, ужинов, приема гостей.
Взрослая зона
После обустройства предназначенной для детей зоны можно переходить к созданию уголка для взрослых. Оптимальное решение – размещение этой зоны таким образом, чтобы она была расположена как можно дальше от детской. Таким образом у каждого члена семьи будет собственное место, дети и родители не будут мешать друг другу.
Отделочные материалы и предметы обстановки для этого участка комнаты должны быть выдержаны в светлых спокойных тонах, чересчур яркие и навязчивые элементы декора здесь будут неуместны. Для внесения в оформление взрослой зоны изюминки можно воспользоваться какой-то одной оригинальной деталью: например, красочного принта в виде цветов мака на дверце шкафа-купе.
Для отделки лучше использовать не обычные бумажные обои, добиться современного и практичного оформления зоны можно, выбрав обои из бамбука, тоном гармонирующие с напольным покрытием комнаты.
Основные предметы обстановки зоны для родителей:
раскладной диван – для
журнальный столик
телевизор – стоит потратиться и приобрести современный плоский телевизор, который можно разместить на стене.
Расстановка мебели в маленькой квартире. Дизайн маленьких комнат (200 фото): примеры идеального оформления, выбор цвета и стиля, планировка и зонирование
Если исходить из современных взглядов на жилые комнаты, то почти все помещения в сталинках, хрущевках и пятиэтажках можно считать маленькими. Да и в более современных многоэтажках — тоже.

Большинство спален в таких домах имеют площадь 10, 12, 9 и даже 7,5 кв. м. Гостиные сплошь и рядом не превышают 17-18 кв. м. А между тем в этих квартирах проживает большая часть населения России. В современном бюджетном жилье также имеется тенденция к проектированию крохотных спален и небольших кухонь-гостиных.

Так что информация о правильном дизайне комнаты маленьких размеров не теряет своей актуальности.

Идеи дизайна маленькой комнаты
Самое главное, чем нужно руководствоваться при оформлении интерьера маленькой комнаты – максимальное визуальное увеличение пространства и создание комфортной гармоничной обстановки.

Для зрительного увеличения комнаты используют специальные дизайнерские приемы.
Варианты оформления небольших помещений
В небольшой комнате необходимо очень рационально использовать каждый квадратный сантиметр площади помещения и не загромождать ее громоздкой мебелью. Перед тем, как обустроить маленькую комнату, необходимо тщательно продумать размещение мебели, цветовую гамму, материалы для отделки стен.

Выбор стиля
От выбора стилистики помещения зависит выбор его дизайна, цветовой гаммы, мебели и декора. Для дизайна маленьких комнат в квартире больше подходят лаконичные стили:
- минимализм;
- современный;
- скандинавский;
- контемпорари;
- хай-тек;
- стилизация под восточные стили – китайский, японский и т.д.

В частных домах уместны будут деревенские стили – русский, прованс, кантри.

Выбор стиля сразу определяет цветовую гамму стен и потолка, мебели, текстиля, особенности декора. Именно с выбора стиля начинается разработка дизайна помещения. Легче выбрать свой идеальный стиль, рассматривая фото дизайна маленькой комнаты в разных стилях в фотогалерее.
Способы визуального увеличения пространства
При ремонте в маленькой комнате необходимо приложить максимум усилий для визуального расширения пространства. Основные приемы:
- использование белого и очень светлых цветов для стен и потолка, не слишком темных – для пола;
- гладкие стены без фактурной отделки;
- максимальное увеличение остекления. Например, установка полностью застекленной балконной двери;
- отсутствие пышных многослойных штор;
- использование прозрачного тюля;
- использование глянцевых фасадов мебели, натяжного потолка;
- использование больших зеркал, стеклянных дверец шкафов;
- минимальное количество громоздкой мебели.

Выбор цветовой гаммы
Основной прием визуального увеличения пространства – использование светлых холодных оттенков и белого цвета. Чем ближе цвет к белому, тем просторнее кажется комната. Черный и яркие насыщенные оттенки при дизайне маленьких комнат 10 кв. м – табу.

Для комнат с окнами, выходящими на восток и юг, лучше выбирать прохладные светлые оттенки: голубой, сиреневый, светло-серый, салатный. Для помещений с северными окнами: пастельные светлые тона теплых оттенков: беж, персиковый, лимонный, золотистый, розовый, молочный.

Неуместно использовать и популярные насыщенные оттенки: оливковый, фиолетовый, насыщенный лиловый, красный, оранжевый, терракотовый, грязно-розовый, грязно-синий, темно-серый и т.д.

Дополнительный цвет также должен быть не слишком ярким или насыщенным. Яркие цвета допустимы только в акцентах – подушки, вазы, картины, декор.
Отделка стен в маленькой комнате
Очень сильно уменьшают помещение и делают его неуютным фактурные отделки: штукатурка, кирпичная кладка, плитка, изразцы и т.д. Поэтому выбирают гладкую отделку: штукатурку с покраской, обои. Нежелательно использовать панели, пробку, ткани и тем более дерево. Исключение: деревянные дома. Там отделка стен натуральной древесиной – характерный стиль дома из бруса или бревен.

Обои не должны иметь ярких крупных рисунков. Лучше выбирать однотонные или с тиснением. Допускается мелкий неконтрастный рисунок.

Флизелиновые обои не стоит красить «под панели» – темный низ и светлый верх. Такая окраска дробит стену и визуально уменьшает пространство. В совсем маленьких комнатах стоит отказаться от выделения акцентной стены.

Как расставить мебель в однокомнатной квартире с балконом. Варианты расстановки мебели в однокомнатной квартире, советы дизайнеров
Однокомнатная квартира ассоциируется с нехваткой пространства. В жилых домах эконом-класса минимальная жилая площадь таких квартир – 14 квадратных метров. В элитных новостройках эта цифра увеличена как минимум в два раза. Однако в квартире, состоящей из одной комнаты, всегда непросто с меблировкой. Но и в малогабаритной квартире может быть удобно и психологически комфортно каждому члену семьи, если правильно организовать интерьер. Выясним, как правильно расставить все нужные предметы обихода.
Основные принципы
Самое важное при меблировке однокомнатной квартиры минимальной площади (28 квадратных метров) – учитывать количество жильцов на данной территории, их возраст, вкусы, предпочтения.
Стандартными принципами практичной и эстетической организации обстановки, стали следующие:
- Грамотное использование пространства – создание максимально открытой площади путем объединения жилой зоны с кухней, прихожей. Перепланировка – устранение перегородок между жилым и бытовыми помещениями, сочетание в одном пространстве близких по функционалу мебели, оборудования; устройство внутренних перегородок, окон, проемов, арок, подиумов; ликвидация дверей, их замена на раздвижные либо изменение направления их открывания; вертикальная организация интерьера (доступна даже при стандартной высоте потолка в 260 – 270 см!);
- Функциональная мебель – использование нестандартной, складной мебели, которую можно встраивать в стенные ниши, альковы, иные места (такую можно купить в магазине или сделать на заказ), кровать с подъемным механизмом, кровать, трансформирующаяся в стену с диваном, полками и шкафом; диван-кровать, раскладная софа, тахта, диван-кровать, раскладная софа, тахта. Применение мобильных предметов мебели – трансформеров: складные стулья, раздвижной стол, тканевые подвесные гардеробы, ширмы на колесиках;
- Визуальные эффекты увеличения помещения – активное использование зеркал, зеркальных поверхностей, грамотный выбор цвета и рисунка обоев, применение подходящих фотообоев, безупречное освещение.
Важно в маленькой квартире выбирать светлые стены, потолок, пол, сочетающиеся с цветом мебели. Уровень комфортности жилья напрямую зависит от выбранного способа перепланировки интерьера. Самая незначительная смена внутренних перегородок способна привести к желаемому результату.





Правила размещения
Как любое ответственное дело, выбор и расстановка мебели не терпит суеты. Нельзя идти на поводу у своих желаний и покупать «эту чудесную кровать» или «восхитительный шкаф» только потому, что они вам понравились. Мебель – это важная часть интерьера, выбирать ее нужно, исходя из технических возможностей помещения. Иначе вся эта красота обернется нелепым нагромождением. Но вам же требуется комфортное место обитания, а не склад? Поэтому, прежде чем обставить однокомнатную квартиру мебелью, постарайтесь оценить возможности помещения, способы его перепланировки при необходимости:
- Не спешите вносить предметы обихода и декора, если помещение пустое, или вынесите их, если вы задумались о реорганизации пространства;
- Выполните замеры комнаты, прихожей, кухни, сделайте план квартиры на бумаге или с помощью графической компьютерной программы, в которой работают дизайнеры интерьеров;
- Создайте несколько вариантов меблировки от руки в заготовленном плане или на компьютере;
- Проанализируйте фотографии обстановки квартиры, подобной вашей. Это поможет сориентироваться в организации пространства, выбрать подходящие интерьерные решения;
- Полезными окажутся дизайнерские советы о зонировании пространства. В этом случае в середине каждой зоны расставляются в однушке основные предметы мебели, а вокруг них расставляются дополнительные;
- Остановите свой выбор на компактной мебели, не загромождающей пространство;
- Если мебели необходимо много, то поставить ее лучше ближе друг к другу, чтобы было удобно передвигаться по квартире;
- Все свои предпочтения и пути перемещения по жилью отразите в плане.
Если вы не единственный обитатель квартиры, согласуйте с другими членами семьи несколько вариантов планов, совместно утвердите наиболее удачный.





Зал
Однокомнатная квартира – это гостиная, спальня и кабинет сразу, поэтому мебель вносим только необходимую и негромоздкую, которая обладает максимальными функциональными возможностями. Если в вашем распоряжении квартира, построенная в годы правления Хрущева, первым шагом на пути к обстановке зала станет отказ от расположения мебели вдоль стен. Это уподобляет узкую прямоугольную комнату коридору или вагону, что никак не назовешь уютным гнездышком.
Современные дизайнерские решения базируются на квадратной форме, поскольку она наиболее удобна при создании интерьера. Какая же мебель нужна и как она должна быть расставлена в однокомнатной хрущевке в том числе?




