Современный дизайн однокомнатной квартиры. Планировки однокомнатной квартиры
- Современный дизайн однокомнатной квартиры. Планировки однокомнатной квартиры
- Дизайн однокомнатной квартиры 40 кв.м с отдельной кухней. Есть несколько замечательных способов справиться с проблемой нехватки площади в «однушке»
- Дизайн однокомнатной квартиры с отдельной кухней. Популярные планировки и идеи для перепланировки однокомнатной квартиры
- Бюджетный дизайн однокомнатной квартиры. Светлая квартира для студентки
- Дизайн однокомнатной квартиры с отдельной кухней 30 кв. Проекты однокомнатных квартир с отдельной кухней - 3 проекта с примерами планировок
Современный дизайн однокомнатной квартиры. Планировки однокомнатной квартиры
Чтобы при ремонте однокомнатной квартиры подобрать оптимальный дизайн, нужно учитывать и ее тип. На данный момент распространено несколько основных разновидностей, каждая из которых имеет свои характерные особенности:
- Хрущевка. Квартиры советской постройки, которым уже несколько десятков лет. Их отличительная особенность – крошечная площадь, часто она не превышает 30 квадратов. Небольшая кухня и комната, совмещенный санузел и прихожая в несколько квадратных метров. Тут очень важно продумать все до мелочей, использовать каждый доступный уголок для систем хранения. Планировка стандартная, каждое помещение нужно оформлять отдельно.

- Студия. Более современные решения с объединенным пространством, которые строятся не так давно, площадь на несколько метров больше, чем в хрущевках. Планировка более свободная, кухонная и жилая зоны чаще всего разделяются мебелью, чтобы не занимать пространство. Что касается расстановки, тут есть свобода выбора: проще всего посмотреть фото дизайна однокомнатных квартир-студий.

- Среднегабаритная квартира. Обычно площадь составляет около 40 квадратов, что обеспечивает намного больше возможностей при оформлении. Планировка чаще всего стандартная – прихожая, из которой двери идут в комнату, кухню, ванную и туалет. Нередко есть и достаточно большая ниша, в которой можно оборудовать гардероб или даже сделать спальное место. Расположение и компоновка помещения при этом могут быть разными.

- «Распашонка». Название обусловлено особенностями планировки. Обычно после входа есть коридор среднего размера, из которого в одну сторону расположена дверь в комнату, в другую – кухня, а спереди – туалет и ванна. Ширина помещений обычно не очень большая, что также является особенностью этого типа. Помещения длинные, что требует использования приемов по визуальному расширению пространства.

Есть квартиры в новостройках с площадью более 45 кв м. Это самые лучшие варианты, в которых места достаточно для воплощения любого замысла.
Дизайн однокомнатной квартиры 40 кв.м с отдельной кухней. Есть несколько замечательных способов справиться с проблемой нехватки площади в «однушке»
Главная трудность в маленькой однокомнатной квартире — это организация пространства. Его нужно разделить таким образом, чтобы каждая из частей была самостоятельной и выглядела полноценно. Конечно, в разных семьях потребности могут отличаться, но, не делая серьезный ремонт, выделить в небольшой квартире место для приема гостей, сна и работы требуется всем. Предлагаем несколько способов, как сделать удобный и комфортный дизайн однокомнатной квартиры 40 кв.м.
Max Kasymov Interior/Design Сохранить фото
Для экономии места лучший дизайн однокомнатной квартиры 40 кв.м (на фото) — разделить пространство на две зоны: гостевую и приватную
Corynne Pless Сохранить фото
Четко разделите комнату на зоны
С помощью мебели вы можете создать удобные зоны для встречи гостей, работы и сна. Для таких целей отлично подходят стеллажи (ширмы лишь занимают место), секретеры (а не письменные столы), а также комоды: в некоторые из них вещей входит больше, чем в средних размеров шкаф — проверено.
Мария Дадиани Сохранить фото
Правильная планировка однокомнатной квартиры 40 кв.м (как на фото) визуально увеличит небольшое пространство
Откажитесь от того, что не нужно
Некоторые традиционные предметы мебели, такие как диван (помимо спального места), кресла или «стенка» могут быть обременительны для интерьера квартиры 40 кв.м, стесняя и без того небольшое пространство.
Откажитесь от габаритных и не всегда нужных вещей. Если вы любите смотреть телевизор на диване, избавьтесь от лишних кресел. Место для сидения гостей найдется всегда, к примеру, на удобных подушках, которые потом можно сложить и убрать в шкаф.
А уж если вы предпочитаете работать с ноутбуком на кухне, поближе к холодильнику, вам точно не нужен отдельный рабочий стол.
BAM Design Lab Сохранить фото
Поставьте диван спинкой к кровати
Таким образом вы сможете сэкономить место в интерьере, а заодно организовать отдельный спальный уголок, какой бы ни была планировка квартиры 40 кв.м. Эти предметы мебели можно как разнести по комнате, так и поставить спина к спине, вплотную.
Сохранить фото
Разные цвета совмещайте на небольших элементах
Если вы хотите оживить комнату яркими оттенками, следует воздержаться от злоупотребления цветами в больших масштабах. Лучше выплесните творческий порыв на дизайн мелких предметов декора, текстиль иди малогабаритную мебель — прикроватные тумбы, изголовье кровати, панно (хорошая идея красивого цветного панно — на фото) или постеры.
Nichole Loiacono Design Сохранить фото
Дизайн однокомнатной квартиры 40 кв.м (на фото) в стиле фьюжн позволил «спрятать» обеденную зону в зоне гостиной
Перенесите столовую в комнату
Если на кухне совсем не хватает места, подумайте об организации столовой в единственной комнате. Место для стола можно найти либо у окна, либо у самого входа в комнату. Заодно он может сыграть и роль письменного стола.
Совет: Круглый стол в маленьком помещении будет смотреться более изящно, чем квадратный или прямоугольный.
OlgaL Сохранить фото
Делая ремонт в однокомнатной квартире 40 кв.м, заранее продумайте нестандартные места для хранения мелочей, например, как на фото этого интерьера
Используйте стену с окном
Если удлинить подоконник и сделать одну столешницу-полку над радиаторами, под ней еще найдется место для хранения разных предметов (книг, документов или пары коробок с мелкими вещами)
Совет: При покупке мебели, сделанной на заказ, вы сможете использовать каждый полезный сантиметр комнаты. Типовые предметы мебели часто не слишком удобны в маленьких пространствах.
Tommy Chambers Interiors, Inc. Сохранить фото
Оформите кровать
Хорошо декорированная кровать в единственной жилой комнате, к примеру, студии — мечта многих владельцев однокомнатной квартиры. Легче всего реализовать такой вариант при угловом размещении, создав изголовье из двух стенок, а также украсив кровать разнообразным текстилем — несколькими видами подушек разных размеров.
Black and Milk | Interior Design | London Сохранить фото
Используйте мебель-трансформер
Вместо того, чтобы спать на диване, купите откидную кровать, которая будет днем превращаться в небольшой стеллаж у стены. И к тому же такой вариант визуально разгрузит интерьер квартиры 40 кв.м (на фото) и освободит столь необходимое место в центре комнаты.
ARCHIFORMS studio Сохранить фото
Используйте пространство над кроватью
Для организации хранения можно повесить здесь несколько открытых или закрытых полок, небольших шкафчиков. Но не каждый будет способен психологически выдержать данный вариант: сначала следует проверить свою реакцию, повесив на время небольшую полку.
ВАША ОЧЕРЕДЬ…
С какими трудностями вы сталкивались, создавая дизайн интерьера однокомнатной квартиры 40 кв.м? Какие решения принимали? Поделитесь вашим опытом в разделе комментариев!
Дизайн однокомнатной квартиры с отдельной кухней. Популярные планировки и идеи для перепланировки однокомнатной квартиры
Обустраивая свою маленькую квартиру, каждый владелец рано или поздно задумывается о перепланировке, так как архитектурный замысел вашего дома не всегда соответствует образу идеальной квартиры.
Представляем вашему вниманию самые оптимальные варианты перепланировок для однокомнатных квартир площадью от 23 до 40 кв. метров.
- Планировка однокомнатной квартиры 23 квадратных метра
В дизайне этой малогабаритной квартиры площадью всего лишь 23 квадратных метра планировка просто восхищает своей рациональностью. Кухня расположилась в прихожей, гостиная – в зоне бывшей кухни, а спальня – на месте жилой комнаты. Ванная комната была тоже увеличена за счет жилой комнаты. - Планировка квартиры-студии в 30 квадратных метров
Планировка квартиры-студии обычно вмещает только диван или только кровать, но при достаточной квадратуре (например, 30 кв. метров) вы можете позволить себе и то, и другое.
Посмотрите, как удачно на планировке выше ванная комната перенесена из зоны с прихожей вбок, чтобы кухня расположилась наиболее удачным образом. - Планировка однушки 38 квадратных метров
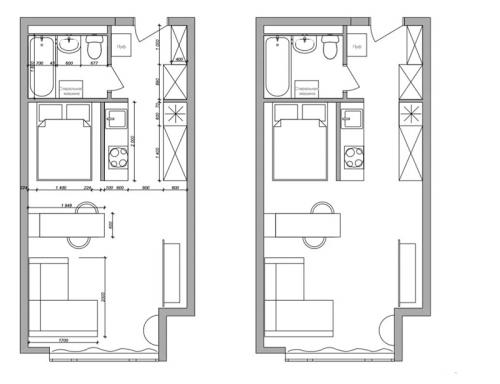
Когда ваша однокомнатная квартира имеет площадь 38 квадратных метров (без учета лоджии), то вы можете позволить себе даже отдельную гардеробную. В данном случае дизайнер решил оставить кухню отдельной комнатой, но в гостиной есть и диван, и раскладное кресло, а на лоджии обустроен кабинет. - Планировка однокомнатной квартиры 40 квадратных метров
Дизайн квартиры площадью 40 квадратных метров может быть достаточно труден. С одной стороны, площади достаточно для жизни двоих человек, но с другой стороны – здесь всего лишь два окна. Как быть?
На плане квартиры выше вы увидите, что не стоит жертвовать ни кухней, ни столовой, ни гостиной при оформлении квартиры в 40 кв. метров. - Планировка однокомнатной квартиры с отдельной спальней
Если вы решаетесь на перепланировку однокомнатной квартиры, чтобы получить отдельную спальню, посмотрите на эту прекрасную планировку.
Здесь на месте кухни расположилась спальня, на месте жилой комнаты образовалась гостиная, а в коридоре – кухня открытой планировки.
Бюджетный дизайн однокомнатной квартиры. Светлая квартира для студентки
Начинаем со светлой и уютной однушки площадью 33 квадрата. Этот проект — отличный пример функционального дизайна для 1-2 человек. При этом, учитывая пожелания хозяйки, дизайнеры продумали планировку так, чтобы обустроить даже на такой небольшой площади место для приема гостей.
Входная зона получилась достаточно большой — почти 7 квадратов, но при этом узкой. Пространство условно разделили на две части: входная группа, состоящая из открытой вешалки, пуфика и лаконичного белого комода, и большая система хранения. Для этого выбрали вместительный шкаф, в котором удалось спрятать целый
Кухня площадью всего 5 квадратов оформлена в скандинавском стиле: светлый гарнитур, отделка в тон и деревянные элементы. Белая обеденная группа выделена светло-голубой настенной панелью, чтобы не сливаться с остальной отделкой. Из техники удалось разместить все необходимое, кроме посудомоечной машины — от нее было решено отказаться. Дом газифицирован, поэтому можно взять на вооружение такой дизайн однокомнатной квартиры 30 кв. м для хрущевки.
Идея на заметку: при входе на кухню на стене сделаны крепления, на которых держатся складные стулья для гостей. Очень интересное решение — одновременно практичное и эстетичное, поскольку красные стулья в собранном состоянии воспринимаются как элемент декора и яркий акцент.
Жилая комната играет роль и гостиной, и спальни одновременно. Центральная точка интерьера — и яркая картина над ним. По левой стене расположен большой шкаф во всю высоту помещения для хранения одежды. Напротив разместили телевизор и консоль, а у окна выделили пространство под полноценное рабочее место.
Санузел — всего 3 метра площадью. Чтобы помещение казалось просторнее, его оформили в белом цвете. В углу установили душевую кабину, по бокам от нее — туалет и раковину с глубокими ящиками и зеркалом.
Дизайн однокомнатной квартиры с отдельной кухней 30 кв. Проекты однокомнатных квартир с отдельной кухней - 3 проекта с примерами планировок
Всего двадцать лет назад все мы считали очевидным, что кухня в квартире – это то помещение, которое обязательно должно быть отделено и изолировано. Однако, в последние годы идеи объединения кухни и гостиной в общее пространство или размещать все зоны маленькой квартиры в рамках общего студийного пространства стала настолько популярной, что отдельная кухня встала редкостью.
На данной странице мы собрали несколько проектов «однушек», планировка которых предполагает отделение кухни в отдельную комнату. Причём в каждом конкретном проекте – эта задача реализована по-своему.
1. Однокомнатная квартира 38 кв. м, кухня отделена глухой перегородкой
В этой квартире поместилось очень много функций: прихожая, кухня, столовая, спальня, гостиная, рабочая зона для двоих, санузел и даже гардеробная комната.
Цветовая гама очень сдержанная., на стенах мы использовали декоративную штукатурку, которая приятно бликует на свету. Обилие природных фактур, таких как дерево и камень, в сочетании с синими акцентными элементами гармонично дополняют и подчеркивают друг друга, а тёмные детали придают графичности пространству.
.
В дизайне этой малогабаритной квартиры площадью всего лишь 23 квадратных метра планировка просто восхищает своей рациональностью. Кухня расположилась в прихожей, гостиная – в зоне бывшей кухни, а спальня – на месте жилой комнаты. Ванная комната была тоже увеличена за счет жилой комнаты.
Планировка квартиры-студии обычно вмещает только диван или только кровать, но при достаточной квадратуре (например, 30 кв. метров) вы можете позволить себе и то, и другое.
Когда ваша однокомнатная квартира имеет площадь 38 квадратных метров (без учета лоджии), то вы можете позволить себе даже отдельную гардеробную. В данном случае дизайнер решил оставить кухню отдельной комнатой, но в гостиной есть и диван, и раскладное кресло, а на лоджии обустроен кабинет.
Дизайн квартиры площадью 40 квадратных метров может быть достаточно труден. С одной стороны, площади достаточно для жизни двоих человек, но с другой стороны – здесь всего лишь два окна. Как быть?
Если вы решаетесь на перепланировку однокомнатной квартиры, чтобы получить отдельную спальню, посмотрите на эту прекрасную планировку.