Как сделать из однушки двушку. Из однушки получилась двушка, перепланировка
- Как сделать из однушки двушку. Из однушки получилась двушка, перепланировка
- Перепланировка однушки в двушку с детской. Готовые схемы проектов переделки однокомнатной квартиры в двухкомнатную разной площади
- Двушка из однушки в хрущевке. «Двушка» из «однушки» в Перово (Москва)
- Как из однокомнатной квартиры сделать двухкомнатную с детской. Как разделить комнату на две зоны, варианты и способы зонирования
- Из однушки двушка 40 кв м. Однушку в двушку: популярные варианты перепланировки
- Видео рум тур: как из однушки сделать двушку? Дизайн интерьера 37 кв м
Как сделать из однушки двушку. Из однушки получилась двушка, перепланировка
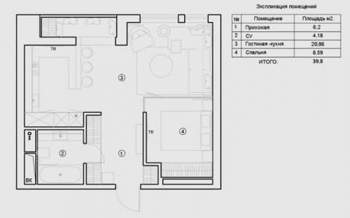
При покупке заказчиками эта уютная квартирка площадью 44 кв.м была со свободной планировкой — то есть с возможностью расставить стены и перегородки, как душе угодно. Перед нами стояла задача сделать из однушки двушку: вместить сюда спальню и гостиную-гостевую. Смотрите ниже, что получилось!
— Кухня с панорамным видом — просто мечта!
— Мы объединили лоджию с кухней, чтобы максимально увеличить площадь. Получилось и правда круто! Здесь чуть более 15 кв. м, есть телевизор и уютный диванчик, чтобы посидеть с друзьями или посмотреть за ужином кино в одиночестве.
— Обычно вы стараетесь оттенить чем-то белые фасады — ярким фартуком или стенами. Почему тут решили сделать всю кухню белой?
— Хотелось подчеркнуть воздушность интерьера, добавить простора. Светлая кухня не выглядит скучной и блёклой, потому что глазу есть за что зацепиться. Тут притягивают внимание молдинги на кухонных шкафчиках и стенах, золотистая фурнитура, плитка на полу, цветные мягкие стулья и цветочные принты в рамах в столовой зоне — пусть все эти детали не яркие, но они в совокупности делают интерьер кухни очень интересным и насыщенным.
— Какого размера получилась эта гостиная?
— Маленького, всего 8 кв.м :) Что поделать, перепланировка однушки в двушку крадёт место. Если разложить диван, то останется проход вдоль стены с телевизором. Но и цель достигнута: нам нужно было сделать изолированную комнату, в которой можно посидеть вечером с книгой или перед теликом, и где могли бы при случае переночевать родственники или друзья.
За дверью слева находится миниатюрная спальня – чтобы в неё хоть немного проникал дневной свет, мы сделали межкомнатные двери с матовыми стеклянными вставками.
— Ой, это что, вся спальня? Размером с кровать?
— Такая малютка, да. Зато отдельная. :) Чтобы расширить визуально пространство, мы сделали одну стену зеркальной — ту, что за туалетным столиком. Я знаю, есть люди, которым не понравилось бы спать напротив зеркала, но у заказчицы, к счастью, на этот счёт предубеждений нет. Слева, за шторкой, находится большая гардеробная.
Совет дизайнера
Очень маленькую комнатку лучше сделать максимально светлой, с однотонными стенами без крупных рисунков и картин. Визуально можно увеличить пространство с помощью крупных зеркал и глянцевой мебели. Чтобы комната без окна не превратилась в мрачную каморку, выбирайте дверь с большими стеклянными вставками, через которые хоть немного будет попадать дневной свет.
— Сантехника золотого цвета выглядит очень необычно.
— Да, и как всё необычное, стоит дороже. :) Санузел редко входит в дизайн-проект, однако в этом случае заказчица решила не экономить на визуализации. Здесь нет каких-то невероятных дизайнерских решений, могу только обратить внимание на идею с тем, как можно изящно вписать стиральную машину под столешницу с умывальником. Главный секрет в том, чтобы стиралка и мебель были одинакового цвета.
Перепланировка однушки в двушку с детской. Готовые схемы проектов переделки однокомнатной квартиры в двухкомнатную разной площади
При перепланировке в 38 кв м учитывается все до мелочей. Для такой квартиры лучше всего подойдут такие стили, как хай-тек, скандинавский или кантри. При использовании одного из стилей в квартире будет уютно и просторно. Важно заранее все распланировать, как из однушки сделать двушку и постепенно начать перестройку. Главное, выбрать подходящий вариант и тем самым можно преобразить свою жилплощадь.

Спальная зона выделена в небольшую, но отдельную комнату. Большая часть пространства досталась кухне-гостиной, в которой раскладной диван служит дополнительным местом для сна
При 40 кв м комнаты могут быть открытыми, что придаст квартире неповторимый вид. При перепланировке в любой интерьер можно внести “изюминку” и тогда все будет смотреться изящно и красиво. Каждому хозяину квартиры можно создать индивидуальный проект и решить как из однушки сделать двушку 40 кв. Разграничивая помещения в квартире нужно сделать так, что все было компактно расставлено.

Приватное место для ночного отдыха размещено за стеклянной перегородкой, что позволило сохранить в спальне естественное освещение
При 43 кв м будет уютно, если разграничить основную комнату перегородкой. У тех, у кого есть дети сделать для них игровую комнату. Если владелец проживает один, то ему можно создать уютное офисное помещение. Все гармонично сочетаться в соответствие с установленными правилами.

Комната с двумя окнами разделена на спальную и гостиную зоны, последняя отделена от кухни барной стойкой
При 45 кв м в одной комнате можно установить кровать и диван без потери основного стиля. Вторая половина может быть занята кухней в американском стиле. Здесь можно все разграничить так, чтобы уместились:
- напольные вешалки;
- небольшие шкафчики;
- напольный торшер;
- столик;
- диван и т.д.

Благодаря перепланировки удалось организовать просторную кухню-гостиную и уютную спальную зону с небольшим гардеробом
При 50 кв м может получиться в одной половине уютная спальня, а в другой отдельный уголок отдыха. В качестве перегородки можно поставить прозрачные. Это придаст помещению современный, презентабельный вид. В квартире может быть объединена кухня с гостиной и отдельная спальня. Все это может быть удобным вариантом для семейной пары.

Функциональный интерьер с достаточно большой спальной комнатой, кухне-гостиной и рабочим кабинетом на утепленной лоджии
При перепланировке 55 кв м можно сделать интерьер в швейцарском стиле, использовав светлые оттенки. Интерьер лучше не перегружать лишними деталями, а повесить украшения на стены и потолок. Если даже дизайн простой, то интерьер может получиться стильный и современный.

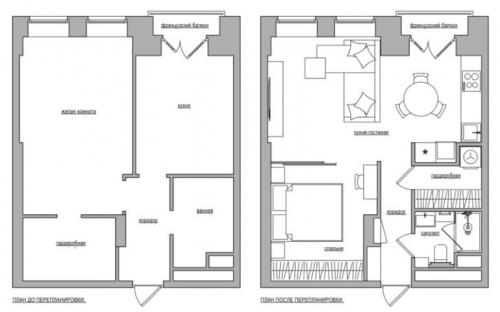
Двушка из однушки в хрущевке. «Двушка» из «однушки» в Перово (Москва)
Площадь квартиры: 31 кв. м
Еще одна угловая квартира, но организованная совершенно иначе, чем предыдущая. Однокомнатная квартира в хрущевке на фото — пример нехарактерного дизайна для наших времен. В то время как другие хозяева маленьких квартир массово стирают границы между комнатой и кухней, молодая пара из Москвы решила ничего не убирать, а еще и добавить перегородок в планировку. «Однушка» на пятом этаже дома серии I-515 в итоге превратилась в «двушку».
Планировка. Хозяева квартиры — Анна и Алексей — обошлись без помощи дизайнера. Комфорт в их понимании подразумевал изолированную спальню и отдельную гостиную. Поэтому комнату разделили на две — угловая планировка позволяла выделить по окну в каждой комнатке. Спальня получилась 7 кв. м, гостиная — чуть больше. Границы кухни остались нетронутыми. И Анне, и Алексею требовались рабочие места: одно устроили в гостиной, второе — в спальне.
Спальня. Здесь два спальных места: полноценная кровать в спальне и раскладывающийся диван в гостиной.
Кухня. Гарнитур подобрали в соответствии с дизайном квартиры 30 кв. м: белый глянцевый. Плитка на фартуке — травянистого оттенка, летом она составляет единый ансамбль с зеленью за окном. Окно между кухней и ванной пришлось заложить, чтобы повесить шкафчик в угол.
Хранение. Мест для хранения довольно много. Это и большой угловой шкаф в гостиной, и красный сундук, в котором хранятся гостевые подушки и одеяла, и внутренние ящики кровати, предназначенный для картин хозяев.
Чтобы зрительно увеличить площадь квартиры, стены отделали белой штукатуркой, а окна не стали закрывать шторами. Это японская практика: деревья за окном играют роль визуального акцента, улица становится декоративным элементом интерьера.
Рабочий стол Алексея в гостиной — на колесах. Когда приходят гости, он превращается в обеденный.
Как из однокомнатной квартиры сделать двухкомнатную с детской. Как разделить комнату на две зоны, варианты и способы зонирования
Самыми популярными способами сделать двухкомнатную квартиру из однокомнатной являются разделение комнаты на гостиную и спальню.

Гостиная и спальня
Вы можете отделить одну комнату от другой кирпичной, гипсокартонной стеной , стеклоблоками или при помощи мебели (см фото). Первый вариант вынудит вас столкнуться с государственными органами, которые следят за тем, чтобы владелец жилища ненароком не снёс несущие стены.
Попросту говоря, при условии возведения капитальной стены, вам необходимо будет пройти процедуру узаконивания перепланировки . Поэтому наименее конфликтными являются три последних варианта.

Переделка однокомнатной квартиры на две комнаты при помощи:
- Гипсокартона
Перегородка из гипсокартона позволяет сделать одну из комнат глухой, то есть без естественного освещения. Такое помещение с точки зрения уединённости и отсутствия раздражителей в виде дневного света, будет оптимальным решением для спальни (примеры на фото). Ввиду отсутствия естественного света, следует максимально обеспечить искусственное освещение. Лучшим решением для такой комнаты будут не люстры, а точеные светильники, установленные по периметру потолка, а также бра и торшеры.

- Стеклоблоков
Этот вариант оформления перепланировки достаточно выигрышен, так как позволяет сохранить естественное освещение в отделяемом помещении. Ввиду высокой прочности данного материала, он рассматривается дизайнерами как наиболее вероятный вариант.
- С помощью мебели
Данный способ как из однокомнатной квартиры сделать двухкомнатную, является декоративным, так как в этом случае вам не удастся добиться полного эффекта создания автономных комнат. Кроме того, уровень звукоизоляции не позволяет называть комнату, отделённую методом установки мебели, отдельной (см фото). Преимуществом в этом случае является то, что вентиляция отделяемого помещения будет более естественной, циркуляция воздуха в обоих помещениях не будет нарушаться.

Кроме того, в случае разделения комнаты методом установки стены из гипсокартона и стеклоблоков вам следует задуматься о том, чтобы дверной проём был достаточно большим, так вентиляция в такой комнате тоже отсутствует.
Территория детства
Если высота потолков в вашем жилище выше 2,5 м, в однокомнатной квартире можно соорудить второй этаж, предоставив его в качестве комнаты детям. Такая импровизация позволит разделить её на зоны игрового пространства и спального места ребёнка. Кроме того, в целях экономии пространства, лестницу, ведущую на верхний этаж, можно сделать небольшими тумбами-ступеньками для хранения игрушек, книг или белья фото. Такое оформление комнаты позволит вам сделать как спальное, так и игровое (рабочее) место для ребёнка.
Сделать из однокомнатной квартиры две комнаты также будет актуальна для семей с разнополыми или разновозрастными детьми . Вы можете оформить жилое пространство для каждого ребёнка индивидуально, в зависимости от его пола и возраста. Так в детской комнате мальчикам подходит трек с машинками и зона для игры с конструктором, девочке необходимо место для кукольного домика и стоянка для волшебных пони.

Если малышам дошкольного возраста хватит детского столика для рисования с упаковкой карандашей и фломастеров, то школьникам понадобится серьёзное рабочее место. Эти и другие особенности можно учесть при переделке комнаты в квартире под детскую комнату для мальчика и девочки либо для детей разных возрастов.
Кроме того, если у вас нет других вариантов, как жить с детьми в одной комнате, можно оформить зонирование таким образом, что в одной комнате будет заключено и взрослое, и детское жизненное пространство.
Из однушки двушка 40 кв м. Однушку в двушку: популярные варианты перепланировки
«Затевать перепланировку однушки в двушку можно и нужно, если общая площадь квартиры насчитывает хотя бы 40 квадратов»
Перекроить однокомнатную квартиру, передвинуть в ней стены, адекватно отделать – даже при наличии утвержденного плана – будет делом нелегким. Малогабаритное жилье в прямом смысле не дает развернуться. Затевать перепланировку однушки в двушку допустимо и нужно, если общая площадь квартиры насчитывает хотя бы 40 квадратов. В меньших пространствах сделать из однушки действительно уютную двушку будет архисложно.
Идей по изменению внутреннего пространства жилья предлагается много, но в основном они отличаются дизайнерским решением. В основу перепланировки заложены стандартные решения. Какое из них будет выбрано – зависит от исходных параметров видоизменяемого жилья.
Вариант 1
Наиболее популярным видом трансформации однушки в двушку является создание квартиры-студии. Особенно нравится подобный подход молодежи, симпатизирующей современным направлениям оформления интерьеров.
Планировка такого жилья предполагает выделение в отдельную комнату спальни и объединение в единое пространство площадей гостиной и кухни. Разделение последней, при перепланировке однушки в двушку, чисто символическое. Без использования раздвижных перегородок и штор. Зоны принято разграничивать: разной фактуры отделкой, игрой цветов, архитектурными элементами. Например, в кухонной части может быть приподнят пол и на входе в нее образована ступенька.
Создавая из однушки уютную двушку-студию, важно использовать только модерновую отделку. В интерьере должна появляться исключительно современная мебель, желательно привлекающая нестандартностью своей конструкции или дизайна.
В такой квартире должен царить абсолютный порядок. Обилие декора и просто бардак лишит интерьер свежести, украдет пространство и вообще сведет его эффектность на нет.
Нужно учитывать, что используя этот вариант преобразования однушки в двушку, жильцам придется терпеть определенные неудобства, а именно – разносящиеся по гостиной запахи кухни. Но если никого из квартирантов это не смущает, то в остальном – решение вполне комфортно.
Вариант 2
Он предлагает из однушки сделать двушку посредством передела комнаты гипсокартонной стеной, с последующим переносом межкомнатных дверей. Об использовании кирпичной кладки речь в квартирах обычно не ведется. Такая стена будет тяжела и усилит нагрузку на межэтажное перекрытие.
Эта идея перепланировки онушки в двушку может и должна быть взята за основу, если комната крупногабаритна и в ней предусмотрено два окна. В этом случае есть шанс получить два полноценных, возможно даже изолированных пространства, площадь которых можно задействовать по своему усмотрению.
В малогабаритных комнатах также можно поставить перегородку, но не гипсокартонную, а преобразовать однушку в двушку при помощи стекла. За стеной из стеклоблоков можно обустроить кабинет или миленькую спальню.
Вместо стационарного перестенка можно установить раздвижные панели из стекла. Удачным дизайнерским ходом будет использование витража.
Наиболее сложна перепланировка квадратной однушки в двушку. Единственное окно и пропорциональные стены очень ограничивают варианты дизайна и организации пространства.
Вариант 3
Менее популярный, но все же пользующийся спросом способ преобразования однушки в двушку – задействование штор. Используя данный прием, можно получить две комнаты без крушения стен и кучи согласований. За плотной тканевой перегородкой можно организовать уютный спальный уголок или комфортную рабочую зону. Текстильная ширма не крадет пространство, зато высоко функциональна и при необходимости может быть убрана одним движением руки.
Вариант 4
К делу получения из однушки уютной двушки привлекается мебель. Роль разграничителей пространства берут на себя высокие стеллажи, шкаф и прочие предметы обстановки. Главное, чтобы они не были громоздкими, и их присутствие было оправдано потребностью дизайна интерьера.
В общем, из однушки сделать двушку вполне реально. Главное иметь желание, не бояться подключать фантазию и использовать качественные отделочные материалы. Оригинальный план и его грамотное воплощение позволит обжить даже столь скромную квартиру с максимальным комфортом.