Дизайн квартиры 43 кв м. Дизайн квартиры площадью 43 кв.м. в стиле лофт в Подмосковье
- Дизайн квартиры 43 кв м. Дизайн квартиры площадью 43 кв.м. в стиле лофт в Подмосковье
- Дизайн евродвушки 45 кв м. 4 секрета стильного дизайна квартир-евродвушек
- Двухкомнатная квартира 44 кв м дизайн. Планировка 2х комнатной хрущевки
- Дизайн однокомнатной квартиры студии. Минимализм
- Современный дизайн однокомнатной квартиры. Дизайн маленькой однокомнатной квартиры
- Видео обзор однокомнатной квартиры, 43 кв.м. Ремонт за 2 млн руб. Дизайн интерьера, рум тур
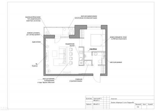
Дизайн квартиры 43 кв м. Дизайн квартиры площадью 43 кв.м. в стиле лофт в Подмосковье

Проект небольшой квартиры в стиле лофт разработан дизайнерами Алексеем Ивановым и Павлом Герасимовым из московской мастерской дизайна интерьеров Geometrium. Квартира, предназначенная для проживания одинокого мужчины, находится в Перхушково, Московская область, Россия. Ее площадь всего 43 квадратных метров. Однако, несмотря на такую маленькую площадь и невысокие (2.65 метров) потолки, авторам проекта удалось создать современное стильное жилье для постоянного проживания холостяка. Кроме того, в выходные дни здесь можно собраться целой компанией из 5-6 человек и интересно провести время.

Однокомнатная квартира полностью перепланирована. Кухня перенесена в гостиную, а в освободившемся помещении обустроена полноценная спальня с удобной кроватью на высоком подиуме. Квартира разделена на несколько функциональных зон – социальную, объединяющую гостиную, столовую и кухню, спальню, ванную комнату с душевой кабиной и прихожую. В оформлении сделана ставка на лофт. Грубая кирпичная кладка, натуральный камень - сланец и шпон дерева в отделке мебели, сланец и тиковая доска в оформлении санузла, осветительные приборы в индустриальном стиле – все это делает интерьер брутальным и динамичным. Доминирование темной цветовой палитры в интерьере не ощущается, благодаря светлым вкраплениям.

Гладкий белый потолок, белая дверь в прихожей, белый диван в гостиной и белая кровать в спальне, серый и кремовый текстиль эффектно смягчают коричневые и черные тона. Часть стены между спальней и душевой выложены полупрозрачными стеклоблоками, создающими ощущение легкости и элегантности интерьера. Учитывая габариты квартиры, дизайнеры постарались эффективно использовать каждый сантиметр пространства.

Раздвижные двери отделяют прихожую от санузла и прачечной. Барная стойка служит одновременно обеденным столом. Внутри нее есть специальная полка, в которой хранится комплект диджейского оборудования. На противоположной стене расположены телевизор и экран проектора. Экран проектора встроен в конструкцию на потолке и выдвигается по нажатию кнопки. Внизу находится встроенная тумба под технику, которая при необходимости может служить местом, где можно посадить гостей. По углам тумбы размещены два небольших радиатора для обогрева помещения.

Спальня размещена на подиуме, в котором имеется ниша, куда встраивается конструкция кровати. Стена за изголовьем отделана декоративной штукатуркой под бетон. Светодиодная лента, установленная сверху, подчеркивает фактуру материала. На подоконнике размещен уютный диванчик. Интересно оборудован балкон – это и зона отдыха, и место для хранения предметов домашнего обихода. Здесь находится комфортный диванчик, над которым установлена небольшая полка для хранения кальяна и принадлежностей к нему. Небольшой шкаф с обратной стороны балкона скрывает блок фильтрации воздуха. Благодаря интересным дизайнерским решениям, малогабаритная квартира превратилась в стильный современный лофт.







Дизайн евродвушки 45 кв м. 4 секрета стильного дизайна квартир-евродвушек
Квартиры европейского типа отличаются небольшой площадью, при этом проект планировки евродвушки включает полноценную спальню и кухню с гостиной. Такое жилье также называют двухкомнатной студией, и хотя помещение небольшое, оно нередко имеет просторную гардеробную.
Кухонная часть располагается в зоне без окна, а это приводит к недостатку естественного света. В связи с этим в проекте дизайна должно быть дополнительное освещение.
Выбор стиля

Планировка евродвушки компактная и не позволяет останавливаться на стиле с множеством предметов в интерьере. Также не приветствуется многообразие цветов в отделке. Лучше обратиться к современным направлениям.
Хорошим решением для квартиры-двушки будет хайтек. Квартира оформляется в монохромных тонах, крупногабаритная мебель в дизайне евродвушки не используется, на смену ей приходят скрытые выдвижные ящики. Преобладает техника и электроника. Все это позволяет визуально сделать помещение больше.
Любителям природного дизайна понравится проект интерьера в стиле прованс. Главным материалом считается древесина, поэтому деревянная столешница, разделяющая кухонную зону и гостиную, подойдет идеально. Стены обычно светлые, в дизайне евродвушки используется легкий текстиль, маленькие деревянные комоды и полочки.

Поскольку в двушке европейского типа мало свободной площади, стоит обратить внимание на минимализм. Тогда в пространстве для сна будет достаточно двухместной кровати и небольшой тумбочки со светильниками, а в интерьере гостиной – дивана, расположенного напротив телевизора.
Расстановка мебели
Из-за совмещенной планировки евродвушки требуется особая расстановка мебели на кухне. Поставить там остров практически невозможно, если площадь квартиры маленькая, поэтому оптимальным вариантом будет угловой гарнитур с барной стойкой, делящей пространство на 2 части.

Обычно евродвушки имеют длинный балкон с выходами в обе комнаты. Его можно использовать как кабинет, если в проекте места для рабочего стола не нашлось.

Во второй половине пространства можно поставить диван, а напротив узкий стеллаж или комод. Там же устанавливается или крепится к стене плазма. При необходимости диван можно разложить и получить дополнительное место для сна. Шкаф лучше поставить в гардеробной.
Дизайн гостиной и кухни
Кухня в евродвушке занимает очень мало места. Обычно она представляет собой только рабочую площадку. Желательно не оставлять на виду посуду и продукты, иначе эта часть квартиры-двушки будет казаться захламленной.

Приветствуется однотонная отделка стен натуральных или светлых оттенков, металлическая фурнитура и лаконичный дизайн предметов и техники. Крайне необходима подсветка всей зоны, можно установить точечные светильники.
Зона отдыха не должна сильно отличаться в стилевом отношении, но чтобы разграничить 2 части комнаты, можно сделать акценты на оформлении стен.
Обустройство спальни
Дизайн евродвушки особенно минималистичен в области спальни. Здесь можно поставить только самую нужную мебель: кровать, шкаф и небольшой столик. Рекомендуется выбирать узкие модели шкафов и стеллажей с раздвижными дверями, а также устанавливать выдвижные ящики под кроватью.

В спальне квартиры евродвушки хорошо смотрятся обои спокойной расцветки, уютные торшеры и небольшие картины или фотографии на стенах. От крупного декора в оформлении интерьера лучше отказаться, а вот комнатные цветы, наоборот, считаются хорошим решением.
Ставьте и подписывайтесь на канал, чтобы не пропустить новые публикации.
Больше информации по дизайну тут .
Двухкомнатная квартира 44 кв м дизайн. Планировка 2х комнатной хрущевки
Типовая хрущевка имеет очень маленькую кухню – 5-6 квадратов. Ещё одна особенность – невысокие потолки до 2,7 метров. Двушки без перепланировки зачастую бывают неудобны, особенно, если вторая комната проходная.
Стандартная площадь двухкомнатной хрущевки – около 43-44 кв метров. Дома пятиэтажные. В большинстве своем комнаты смежные, окна выходят на одну сторону (за исключением угловой квартиры с двумя окнами). В качестве достоинств хрущевки можно выделить наличие кладовки и балкона.
Рассмотрим самые распространенные типы планировок подробней.
Книжка
Такая планировка считается самой неудачной: проходная комната с широким дверным проемом играет роль столовой, а в семье с детьми – ещё и спальни. Уединенности в таком пространстве добиться трудно. Чтобы разделить помещения, придется пожертвовать частью комнаты. Без перегородок, на снос которых необходимо получить разрешение, хрущевку можно превратить в просторную студию.



На фото маленькая угловая кухня со встроенным холодильником и столом, вписанным в подоконник.
Трамвайчик
Такое народное название (также употребляется слово "паровозик") планировка получила за расположенные друг за другом комнаты, напоминающие вагоны. Гостиная с балконом является проходной, но переделка решает эту проблему: если отсечь часть комнаты и превратить ее в коридор с двумя входами, в получившейся нише можно организовать систему хранения.



На фото комната в кремовых тонах с акцентной стеной в телевизионной зоне.
На фото проект двухкомнатной хрущевки 44 кв. м.
Распашонка
Вполне удобная планировка, при которой комнаты разделены кухней и прихожей, но такой тип хрущевки встречается нечасто. Также ее называют "бабочкой" благодаря схожести комнат с симметричными крыльями.



На фото крошечная кухня, где глянцевые белые шкафчики-нивидимки занимают всё межпотолочное пространство.
Дизайн однокомнатной квартиры студии. Минимализм
Этот стиль считают наиболее удачным при оформлении небольших квартир. Его отличительной чертой является использование лаконичной и функциональной мебели, светлых, спокойных тонов, минимум отделки.
Материалы при таком дизайне должны быть максимально натуральными. На полу используют деревянное покрытие, стены покрывают штукатуркой или однотонными обоями.
Все пространство, а также мебель, должны быть выдержанны в четких геометрических формах: прямоугольник, квадрат, овал. Приветствуются стеклянные и зеркальные перегородки.
Ошибочно считать, что при дизайне 1-комнатной квартиры нужно отказаться от таких уютных, теплых и домашних стилей, как прованс, классика и этно. Просто при оформлении интерьера стоит уменьшить количество декоративных деталей, выбрать спокойные тона как основную цветовую гамму и использовать мебель-трансформер, подходящую к общей атмосфере помещения.
Общее правило при оформлении интерьера однокомнатной квартиры – не допускать перегрузки пространства. Это применимо и к цветовой палитре.
Универсальным можно считать выбор пастельных, светлых тонов. Яркими акцентами стоит выделять отдельные функциональные зоны. Этого можно добиться, окрасив часть стены, или добавив цветной текстиль. Но не стоит забывать, что обилие пледов, декоративных подушек может перегрузить интерьер.
Если кухонных гарнитур встроен в отдельную нишу, выбор ярких глянцевых фасадов станет интересным и оригинальным решением. В случае стандартного расположения лучше не акцентировать на нем внимание, и купить мебель неброских оттенков. В зоне приготовления пищи добавить цвета можно, купив яркую посуду и салфетки под приборы.
При оформлении коридора не рекомендуется использовать обои с частым, повторяющемся рисунком. Из-за того, что пространство узкое, от такого декора стен будет рябить в глазах.
В дизайне однокомнатной квартиры цветовые акценты могут выступать как один из способов зонирования пространства.
Современный дизайн однокомнатной квартиры. Дизайн маленькой однокомнатной квартиры
При грамотном оформлении и планировании маленькая однокомнатная квартира может превратиться в стильное и функциональное жилье. Многочисленные дизайнерские приемы позволят даже на 17 кв. м расположить все необходимые зоны. Конечно, на спортзал и библиотеку рассчитывать не приходится, а вот джентльменский набор точно поместится.
Есть общие правила, которых желательно придерживаться. Интерьер маленькой однокомнатной квартиры не терпит темных красок. Во всяком случае, в большом количестве. За основу лучше взять белый, нежно-бежевый, кремовый оттенки. Если хочется ярких цветов, можно сделать исключение из правил. Одна из комнат, например кухня, оформляется в глубокие цвета – синий, коричневый, зеленый. Но при этом мебель должна быть обязательно светлой, желательно белой.
Иногда встречаются планировки с узкими вытянутыми пространствами. Прямоугольная комната не лучший вариант для меблировки, но это решаемая проблема. Комнату можно сделать визуально шире при помощи нескольких приемов.
Противоположные стены окрашиваются в разные оттенки. Например, в белый и светлый беж. Или одна из них оформляется фотообоями с перспективой. Благодаря этому даже пространство в 20 кв. м приобретает совершенно другой вид. Пол украшают ковром с мелким узором. Также стоит продумать правильный световой сценарий. Вместо одного подвесного светильника используют несколько источников свет. Оконный проем не завешивают портьерами, а оставляют максимально открытым. Также подойдут жалюзи и римские шторы. Мебель используется лаконичная, в светлой обивке. Многое зависит и от отделки.

Фото: i.simpalsmedia.com

Фото: lakbermagazin.hu
Ремонт маленькой однокомнатной квартиры, скорее всего, не обойдется без перепланировки. В противном случае органично вписать все необходимые зоны и адаптировать их под сценарий жизни хозяев будет весьма затруднительно. Квартира студия чаще всего является наиболее удачным решением для скромной квадратуры.
Дизайн смарт квартиры
Для начала давай разберемся в терминологии. Смарт квартира – это небольшая жилая площадь. По сути, это обновленный вариант старых добрых гостинок. Минимальная квадратура стартует от 18 кв. м. Однако есть и существенное отличие. Smart в переводе с английского означает «умный». Умный интерьер умеет распорядиться каждым сантиметром полезной площади.
Обустроить смарт квартиру – непростая задача. Именно поэтому некоторые застройщики предлагают жилье с готовой меблировкой. Если хочется реализовать собственный проект, необходимо засесть за дизайн проект или обратиться к профессиональным дизайнерам.
Следует учесть, что смарт жилье – это вовсе не бюджетный вариант. Казалось бы, скромные габариты должны благотворно повлиять на общую смету. Ведь нужно меньше отделочных материалов. Это верно, однако есть одно «но». Всю мебель в идеале необходимо делать под заказ. Здесь на счету буквально каждый миллиметр. Конечно, можно найти и готовые решения с необходимыми параметрами. Однако это требует больших временных затрат.

Фото: idolza.com

Фото: casinhacolorida-simone.blogspot.rs

Фото: venidair.com
Ответом на вопрос «как обставить смарт квартиру?» станет мебель-трансформер. К ней тоже применимо слово «умная». Один гарнитур может включать в себя диван, трансформирующийся в двуспальную кровать, небольшой столик и шкаф со встроенной гладильной доской.
Кухня в смарт квартире должна быть максимально незаметной. Для «маскировки» используй белые фасады от пола до потолка с дверцами, которые открываются при помощи нажатия. Тут важно не экономить на фурнитуре, чтобы она прослужила как можно дольше. Интересная идея – мобильный стол на рельсе, встроенной в подоконник. Это не только позволит сэкономить 10-15 сантиметров, но и обеспечит свободу маневра. Так или иначе, зону подоконника непременно нужно использовать в качестве обеденного стола или дополнительной рабочей поверхности.
Дизайн смарт квартиры можно сравнить со съемкой короткометражного ролика, когда в несколько минут необходимо вложить колоссальный смысл. Однако это дает свои плоды. Пространство в 15 кв. м превращается в уютный и комфортный дом с уникальным характером. Этот тип квартиры хорошо подойдет в качестве первого самостоятельного жилья.