Квартира студия площадью 25, 5 кв.
м (комната 18 кв. м. ) в Санкт-петербурге, район мурино.
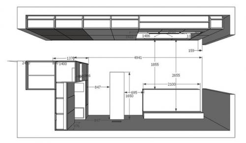
Зона гостиной и гардероб разместились в единой линии шкафов вдоль стены. Глубина шкафов всего 38 см., поэтому одежда на плечиках развешивается фронтально, но благодаря их большой ширине, места для хранения достаточно на два шкафа верхней одежды и шкафа для хранения платьев и рубашек на плечиках и прочей одежды.
Зону кухни от зоны гостиной отделяет пристенный стол с тремя выдвижными ящиками для столовых приборов и прочих мелочей, а также мини бара спрятанного в опоре стола.
За кухней нашлось место для большого хозяйственного шкафа почти в один квадратный метр, где расположилось высокое отделение для пылесоса, гладильной доски, сушилки для белья, а также много полок для хозинвентаря и прочего хранения.
Решение использовать мебель на всю высоту помещения позволило скрыть ощущение загроможденности студии, превратив мебель в стены. Для большего эффекта дверцы шкафов сделаны широкими, чтобы они визуально выглядели как декоративные стеновые панели.








