Как сварить крыльцо из металла своими руками. Металл: плюсы и минусы
- Как сварить крыльцо из металла своими руками. Металл: плюсы и минусы
- Как сварить крыльцо из металла своими руками под ступеньки из дпк. Размеры крыльца
- Как сварить крыльцо из металла своими руками схема и размеры. Технология строительства металлической конструкции своими руками
- Видео каркас крыльца из профильной трубы
Как сварить крыльцо из металла своими руками. Металл: плюсы и минусы

Вода и металл
Крыльцо из металла – это очень популярное решение, которое по праву считается одним из самых красивых. Сам по себе, металл является универсальным материалом, из которого можно соорудить конструкции любой сложности.
Для крыльца можно выбрать любой вариант от старинных классических стилей до модерновых ассиметричных решений – главное, чтобы ваше крыльцо гармонично вписывалось в общую стилистику строения, и акцентировало внимание наблюдателя на входном ансамбле.

Оригинальное крыльцо из металла
Помимо эстетической составляющей на крыльцо ложится большая функциональная нагрузка. Оно должно быть:
- Безопасным и удобным – крыльцом пользуются все жильцы и гости строения, в том числе маленькие дети и пожилые люди, поэтому важно соблюсти все основные параметры, позволяющие использовать конструкции с наибольшим комфортом.
- Если позволяет пространство, то крыльцо можно сделать большим и организовать на его территории место для вечерних посиделок. Такие сооружения уже принято называть верандами или террасами.
- Крыльцо может оборудоваться кровельной частью в виде легкого козырька или скатной массивной конструкции пристроенной к дому. Основное назначение – защита входной группы и зоны отдыха от атмосферных осадков. Данный элемент особенно важен, так как для строительства веранды используются материалы, так или иначе, реагирующие на окружающую влажность.
- Конструкция крыльца из металла может быть закрытого типа – по сути, это легкая пристройка в которой можно организовать что угодно, от оранжереи до зоны отдыха для тех, кто не любит посторонних взглядов, и предпочитает оставаться наедине с самим собой. Такое крыльцо обеспечивает защиту от ветров, дожей и прочих капризов погоды лучше остальных.
Как сварить крыльцо из металла своими руками под ступеньки из дпк. Размеры крыльца
Как выбрать материал для возведения крыльца?
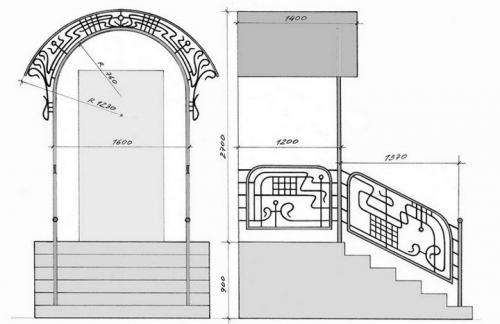
Почти основным элементом крыльца из металла является лестница и если речь идёт об её размерах, то они могут быть от 0,8 метра до 1 метра. Одним из главных деталей крыльца из металла является лестница . Если вы решили возвести крыльцо из металла в 80 см, то комфортно им может пользоваться только один член семьи. Если же вы выбрали лестницу размерами в один метр, то на ней вполне смогут разойтись два человека.
Очень важно учитывать количество ступеней располагающиеся на лестнице крыльца. Профессионалы настоятельно советуют делать количество ступеней нечётным, так как множеству людей удобно начинать и заканчивать движение по лестнице с одной ноги.
Так же важен угол наклона лестницы, оптимальным наклоном лестницы является, наклон не больше 45 градусов. А вот самый маленький наклон лестницы не должен быть ниже 26 градусов.
Размер ступеней крыльца должен быть примерно от двенадцати сантиметров до двадцати сантиметров, а ширина ступеней должна составлять не менее двадцати пяти сантиметров.
Чтобы сделать нужный уклон, ступени делают одинаковой высоты, но могут быть отклонения в обе стороны не более на пять миллиметров.
Ступеньки одна на другую находят на расстоянии не больше чем тридцать миллиметров. 
Измерение размеров площадки, расположенной сверху, должно быть тщательным, потому что они должны быть такими, чтобы, когда открывали дверь, не было ни каких препятствий.
Дверь должна располагаться так чтобы нижняя ее часть была на пять сантиметров выше площадки крыльца.
Как сварить крыльцо из металла своими руками схема и размеры. Технология строительства металлической конструкции своими руками
Как сделать металлическое крыльцо самостоятельно? Для этого необходимо знать все тонкости сооружения конструкции из железа. Полностью из металла крыльцо изготовляется редко, в большинстве случаев железо комбинируется с деревом, бетоном, кирпичом, коваными деталями, камнем и плиткой.
Разновидности крыльца железного, фото
Устройство конструкции
Основные составляющие элементы металлической конструкции:
- площадка;
- лестница с перилами;
- навес.
Схематическое устройство крыльца из металла
Самыми прочными являются заводские конструкции, но при желании можно соорудить сварное крыльцо своими руками. Из металла можно изготовить каркас полностью, или его отдельные элементы: ступени , перила , ограждающую конструкцию площадки, а также основание для козырька .
Каркас крыльца из металла может быть кованым, или сварным. Для придания изделию презентабельного вида в конце его покрывают краской или специальными полиролями.
Определяемся с материалом
Материал для изготовления приставного металлического крыльца подбирается под кровлю дома. Если она металлическая, то металлокаркас веранды может быть изготовлен:
- из железных труб и уголков;
- меди (материал со временем практически не теряет свой изначальный вид и блеск, поскольку покрывается специальной патиной, но является довольно дорогим);
- алюминиевых труб – легкий и недорогой материал практически не требующий дополнительной обработки;
- из профильной трубы, которая бывает различного сечения и является одним из видов современного металлопроката;
- из нержавейки – труб с нанесенным защитным покрытием, которые не нуждаются в покраске;
- из кованой стали.
Различные варианты изготовления каркаса крыльца металлического, фото
Учтите: профильные трубы способны выдерживать большие нагрузки, чем обычные.Несущая конструкция крылечка может быть изготовлена из труб квадратной или круглой формы. А вот навес представляет больше пространства для фантазии – он может плоским, покатым, или сферической формы. Для настилания кровли часто применяются металлопрофиля – специальные профилированные листы оцинкованные, либо с полимерным покрытием.
Совет: при сооружении веранды для деревянного дома можно использовать комбинацию деревянных балок с металлическим каркасом для крыльца.Бюджетный вариант каркаса веранды может быть выполнен из металлических труб и уголков, соединенных путем сварки. Для укрепления его можно дополнительно обварить арматурой.

Заводское крыльцо из профильной трубы
Подготовка
Прежде чем сварить крыльцо из металла, следует продумать дизайн конструкции и составить подробный проект пристройки. Это необходимо для того, чтобы создать целостную картину сооружения, посмотреть, как оно будет гармонировать с домом.
Для этого необходимо сделать замеры, определить размеры конструкции и сделать чертеж. Из материалов понадобиться:
- бетон;
- песок;
- щебень;
- арматура;
- доски и брусья для изготовления опалубки;
- металлопрокат;
- сварочный аппарат;
- молоток, гвозди, саморезы, шурупы;
- грунтовка, краска.
Определение размеров конструкции
К металлическому крыльцу, как правило, ведет лестница . Ее ширина для удобного использования должна составлять 80-100 см, наклон от 26 до 45 градусов, количество ступеней нечетное . Удобными будут ступени шириной 20-25 см с высотой подступенка 15-20 см.
Закладывание фундамента
Металлическое крыльцо, по сравнению с бетонным , имеет небольшой вес, но фундамент для него также заливают. Это необходимо для того, чтобы конструкцию не повело в процессе эксплуатации. Он должен быть глубиной свыше 1м.
Сначала вырывают котлован, куда засыпают песчано-щебеночную подушку (не менее 10 см). Далее устанавливается деревянная опалубка. Основание ступеней вяжется из арматуры. После производится заливка бетона. Также на этапе бетонирования устанавливаются трубы для формирования основы перил и опоры для козырька.
Залитая площадка полностью высыхает за 7-10 дней
Изготовление металлической лестницы
Лестницу можно сварить и из профтрубы. За основу конструкции берут два швеллера. Их крепят к фундаменту и основанию площадки крыльца. Далее производится разметка места положения ступеней. Крепежи для них нарезают из уголка 50 мм (равнополочного) и приваривают к швеллерам основы, образуя букву «Г».